1、旋挖钻孔灌注桩施工特点
(1)自动化程度高、成孔速度快、质量高。该钻机为全液压驱动,电脑控制,能精确定位钻孔、自动校正钻孔垂直度和自动量测钻孔深度,最大限度地保证钻孔质量。工效是循环钻机的20倍,尤其工程的质量和进度得到了充分的保证。
(2)伸缩钻杆不仅向钻头传递回转力矩和轴向压力,而且利用本身的伸缩性实现钻头的快速升降,快速卸土,以缩短钻孔辅助作业的时间,提高钻进效率。
(3)环保特点突出,施工现场干净。这是由于旋挖钻机通过钻头旋挖取土,再通过凯式伸缩钻杆将钻头提出孔内再卸土。旋挖钻机使用泥浆仅仅用来护壁,而不用于排碴,成孔所用泥浆基本上等于孔的体积,且泥浆经过沉淀和除砂还可以多次反复使用。目前很多城市在施工中的排污费用明显提高,使用旋挖钻机可以有效降低排污费用,并提高文明施工的水平。
(4)履带底盘承载,接地压力小,适合于各种工况,在施工场地内行走移位方便,机动灵活,对桩孔的定位非常准确、方便。旋挖钻机的地层适应能力强,旋挖钻机可以适用于淤泥质土、粘土、砂土、卵石层等地层。在孔壁上形成较明显的螺旋线。有助于提高桩的的摩阻力。
(5)吊放钢筋笼、灌注砼等施工场地较其他工艺容易布置。自带柴油动力,缓解施工现场电力不足的矛盾,并排除了动力电缆造成的安全隐患。
2、旋挖钻孔桩施工原理
主要是其成孔工艺与其它桩基不同,旋挖钻机的钻进工艺:旋挖钻机采用静态泥浆护壁钻斗取土的工艺,是一种无冲洗介质循环的钻进方法,但钻进时为保护孔壁稳定,孔内要注满优质泥浆(稳定液)。
旋挖钻机工作时能原地作整体回转运动。旋挖钻机钻孔取土时,依靠钻杆和钻头自重切入土层,斜向斗齿在钻斗回转时切下土块向斗内推进而完成钻取土;遇硬土时,自重力不足以使斗齿切入土层,此时可通过加压油缸对钻杆加压,强行将斗齿切入土中,完成钻孔取土。钻斗内装满土后,由起重机快速提升钻杆及钻斗至地面,拉动钻斗上的开关即打开底门,钻斗内的土依靠自重作用自动排出。钻杆向下放关好斗门,再回转到孔内进行下一斗的挖掘。旋挖钻机行走机动、灵活,终孔后能快速的移位或至下一桩位施工。
3、旋挖钻孔桩施工工艺

4、测量放线定桩位、标高
根据设计单位提供桩孔坐标,利用全站仪依次放出各桩位,并进行闭合校正。此法方便简捷,非常直观,而且具有可视化,我公司已在施工中多次应用,效率很高。
桩位经施工单位、监理单位、建设单位在开挖前检验合格,钉上木桩,并以桩上的铁钉作标记,放样完毕方可进行下一道工序。
(1)施工测量的准备
在进行测量放线前,首先必须熟悉施工图纸和施工方案,了解轴线柱网的布置特点和难点,核对施工图纸与其说明内容是否有矛盾,根据规划局所给的建筑红线坐标点,并对照设计图上的桩基坐标点和各控制点的距离和角度,作为工程测量放线的依据。
(2)仪器校准
所用的全站仪、水准仪、钢卷尺、线锤等测量工具均应经法定的计量检测站检定、校准,合格后方可使用。在使用过程中,应经常检查仪器的常用指标,一旦操作偏差超过允许范围,应及时校正来保证测量精度。
(3)测量复核
先根据规划局提供的坐标点,采用全站仪对坐标定位控制点,进行引测并同时复核前期施工的设点位置是否正确。复核无误后,利用计算机辅助计算出各区控制点的坐标,采用全站仪分别测放出建筑物的总体控制线,设 4个控制点,点的位置必须能够通视,形成闭合矩形,起到复核和检查的作用,并采用极坐标法验证复核。
(4)定位孔桩中心点
根据孔桩圆心坐标,测放出每一个孔桩中心点,并用卷尺和线按孔桩的直径放出孔桩桩位,并用白灰撒出桩外径边线,孔桩中心用短钢筋打入土中进行标识。
当孔桩桩位经自检合格后提请有关主管部门,业主和监理验线,在收到验线合格通知后,方可正式开挖。
(5)水准点的引测及标高控制测量
依据业主提供的水准点将高程引测到相邻轴线控制网点上,并将孔桩控制标高放到孔口部位,便于高程控制。
5、湿作业成孔施工方法
因F区地势较低,且桩深度较深,且地勘资料与现场实地不是很符合,根据F4、F5挖桩显示,极有可能遇到地下水,需采用湿作业成孔。
(1)施工准备
施工前应平整场地,清除杂物,换除表层耕植软土,保证钻机底座填土密实,以免产生不均匀沉陷;在施工范围内不妨碍桩基施工的场地挖好泥浆池和沉淀池,用钢管围护并安装安全网,设警示标志,同时做好作业场地排水工作,在施工范围内挖设好临时排水沟,确保施工场地不积水。
(2)桩位放样
正式钻孔前根据设计图纸和计算坐标用全站仪精确放出桩基中心并记录,自检合格后,及时向监理工程师报验。

(3)泥浆制备
泥浆采用优质粘土与水拌合而成并掺入一定比例的膨润土,制备的泥浆满足:含砂量≤4%,胶体率≥96%,泥浆比重≥1.2。钻孔施工时随着孔深的增加向孔内及时、连续地补浆,维持护筒内应有的水头,防止孔壁坍塌。桩孔砼灌注时,孔内溢出的泥浆引流至泥浆池内,用于下一根桩基钻孔护壁。


(4)埋设护筒
钻孔前设置坚固、不漏水的钢护筒,护筒高1.5m,直径比设计桩径大20cm,顶面高出施工平台约30cm。挖埋护筒时坑底应整平,然后通过定位的控制桩放样,把孔位中心位置标于坑底,再把护筒吊放进坑内,找出护筒的圆心位置,用十字线定在护筒顶部或底部,然后移动护筒使护筒中心与钻孔中心位置重合,同时用水平尺或锤球检查,使护筒竖直。此后即在护筒周围对称、均匀地回填粘土,并分层夯实,夯填时要防止护筒偏斜。
护筒顶面中心与设计桩位偏差不得大于5cm,倾斜度不得大于1%。为便于泥浆循环,在护筒顶端留有高30cm,宽20cm的出浆口。


(5)钻机成孔
钻机就位前应对钻机各项准备工作进行检查,钻机安装后的底座和顶端应平稳,就位核对好中心后,连接泥浆循环系统,开动泥浆泵使泥浆循环2~3min,然后开始钻孔,在护筒底处应低压慢速钻进,钻至护筒底下1.0m左右后开始正常钻进。
在钻进过程中钻机不能产生位移或沉陷,否则应及时处理。在钻孔排渣、提钻除土或因故停钻时,应保持孔内具有规定的水位和要求的泥浆相对密度和粘度。处理孔内事故或因故停钻时,必须将钻头提出孔外。钻孔进行前,司钻人员必须先熟悉地质状况,钻进过程中应定时测试泥浆指标,从而确定所处地层,调整钻进参数,钻孔作业应分班连续进行,填写的钻孔施工记录,交接班时应交待钻进情况及下一班应注意事项。
旋挖钻机一般采用筒式钻头,施工时在孔内将钻头下降到预定深度后,转钻头并加压,旋起的土挤入钻筒内,泥土挤满钻筒后,反转钻头,钻头底部封闭并提出孔外,然后自动开启钻头底部开关,倒出弃土成孔,在钻进过程中或将钻头提出钻孔外后,向孔内注浆,泥浆液面不得低于护筒底部。
(6)清孔
钻孔达到要求深度后,用检孔器进行检孔。孔径、孔垂直度、孔深检查合格后,立即填写终孔检查证,并经驻地监理工程师认可,方可进行孔底清理 ,否则重新进行扫孔。
清孔采用换浆法,钻孔达到设计标高后,停止进尺,将钻头提出,然后注入净化泥浆置换孔内含碴的泥浆,清孔时孔内水位需保持在地下水位以上1.5~2.0m。严禁用增加深度的方法代替清孔。当从孔内取出泥浆(孔底、孔中、孔口)测试的平均值与注入的净化泥浆相近,测量孔底沉碴厚度符合技术规范要求及设计要求,即停止清孔作业,放入经监理工程师检查合格后的钢筋笼。
清孔结束后,孔底沉碴厚度不得大于100mm。采用沉渣厚度的检测仪检测孔底沉渣厚度,该检测仪沉至桩底时,单向板(正常情况下只能向上滑动)受到沉渣的阻力停止下沉,探针在配重棒的作用下继续向下运动,直至遇到坚硬岩层,通过探针上的刻度尺可读出沉渣厚度的大小,如测出清孔的沉渣厚度不符合要求就可马上安排再次清孔,直至测出的沉渣厚度符合要求。
6、成孔验收
(1)孔深原则以设计要求开挖,如遇地层变化较大,取得监理、甲方、设计人员同意后进行调整。
(2)孔深验收应分两次验收,即开挖到持力层土时会同监理、甲方、设计验收土层厚度,成孔后验收全孔深度,并办理验收手续,成孔后,要立即下放钢筋笼,浇筑砼,不得留置过长。
7、钢筋笼制作与吊放
(1)按设计规格要求进料,钢材进场需有质保书,并经复验合格后方可使用。
(2)钢筋笼长度应按设计长度(或设计变更长度)确定,一般笼身长度允许误差为+100mm,主筋间距允许误差±10mm,钢筋笼直径允许误差±10mm。
(3)因大部分桩长较长,超过钢筋制作长度,纵筋为通长筋,纵向钢筋直径为14~25,详见第5页工程设计概况。为钢筋笼吊装时不发生变形、脱落,纵向钢筋均采用气压焊连接,箍筋采用螺旋箍,焊接长度不小于10D,加强箍采用焊接,并与纵筋焊牢;同一平面内接头不得超过总根数的50%。
(4)钢筋笼制作采用孔外制,然后用吊机吊装入孔的方法进行:
钢筋笼长度大约15-40m,为了节省下钢筋笼的时间,超过两节的可制作两段相同的钢筋笼。经估算,每段钢筋笼重量达3-10吨多,所以需用两台QY-35型吊车分段将钢筋笼起吊放入孔内。先吊放一段钢筋笼入孔,在孔口放两根16号的工字钢卡住钢筋笼,然后下放另一段钢筋笼,对位准确后进行搭接,搭接完毕后整体下放。吊放钢筋笼入孔时,不得碰撞孔壁。钢筋笼加工时将钢支撑腰梁预埋连接筋准确定位,安装牢固,并要设防止钢筋笼上浮的防爬钢筋。钢筋笼吊放时采用临空吊放,并应固定角度以确保预埋件标高和方向准确。
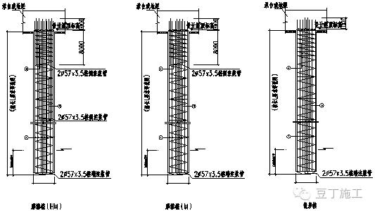
(5)注浆管及声测管设置
后压浆导管采用国际低压流体输送用无缝钢管。公称孔径57mm,壁厚3.5mm。F2、F3号楼旋挖钻孔灌注桩有效桩长底部设置三根φ57声测管,嵌岩桩设置两根φ57桩端注浆管;摩擦桩(M)从设计桩顶向下8米设两根φ57桩侧注浆管,高出桩顶1米,从设计桩到桩底设置两根φ57桩端注浆管,高出桩顶1米;摩擦桩(HM)桩内设置4—6根φ57注浆管,离桩底6米以上、桩顶8米以下范围内每隔6米设置一道桩侧注浆阀。桩侧注浆管设置在箍筋外侧,保证达到侧向注浆质量。注浆管顶部设置注浆控制阀,同一断面的两条注浆管同时进行注浆,以保证两面注浆平稳,注浆完成后立即关闭注浆阀,保证其管内压力。注浆管布设如下图所示:

8、水下混凝土浇筑
灌注前严格检查混凝土拌和系统和起吊机械设备的工作情况,以保证混凝土灌注能连续进行。首批混凝土量必须满足导管的初次埋置深度和填充导管底部间隙的需要,以平衡水压,确保导管内不进水。
混凝土需保持连续浇筑,当导管埋深达3m左右时开始提升导管,并取出第一节导管,直至完成此根灌注桩的浇筑。
混凝土浇筑过程中应注意的问题
(1)首批混凝土的量必须满足导管埋入深度不小于1.5m,并保持混凝土继续下灌,直到埋入3m左右,才开始提升导管。在整个灌注过程中,导管均衡提升保持轴线竖直,位置居中防止挂卡钢筋笼。
(2)导管埋入混凝土深度控制在不小于3m,不大于6m,并做好导管提升记录,杜绝导管拔空的质量事故发生。
(3)灌注开始后,必须保持连续工作,防止混凝土在灌注中造成导管堵塞;混凝土灌注到桩顶标高时,应再超灌0.5D左右,在施工上部结构时给予凿除。

导管法浇筑水下混凝土
a、装第一斗混凝土;b、排走导管内水或泥浆;c、混凝土向上推进
1、隔水塞;2、导管;3、接头;4、混凝土
9、桩基检验、检测
(1)旋挖钻孔终孔时,应进行桩端持力层检验,检验桩底下3D(D这桩端直径)或5m深度范围内有无空洞、破碎带、软弱夹层等不良地质条件。
(2)桩基完成后,工程桩应进行单桩承载力和桩身完整性抽样检测,保证施工质量。
检测由建设单位委托有资质单位进行检测,采用超声波透射法检测,检测桩身完整性,检测要求不少于总桩数的30%,其余采用动测法检验。桩的竖向承载力检验采用静载试验,检验桩数不应少于总桩数的1%,且不少于3根。
(3)检测时间:采用声波透射法检测时,受检桩混凝土强度至少达到设计强度的70%,且不小于 15MPa。施工后,宜先进行工程桩的桩身完整性检测,后进行承载力检测。
10、水下砼灌注事故的预防及处理
(1)导管进水
导致导管进水主要有以下三方面的原因产生:
①、首批砼储备不足,或虽然砼储备已够,但导管底口距孔底的间距过大,砼下落后不能埋没导管底口,以致泥水从底口进入。
预防和处理方法:如有发现导管进水,应立即将导管提出,将散落在孔底的砼拌和物用反循环钻机的钻杆通过泥石泵吸出,或者用空气吸泥机、水力吸泥机以及抓斗清出,不得已时需要将钢筋笼提出采取复钻清除。然后重新放下骨架、导管并投入足够储备的首批砼,重新灌注。
②、导管接头不严,接头间橡皮垫被导管高压气囊挤开,或焊缝破裂,水从接头或焊缝中流入。
③、导管提升过猛,或探测出错,导管底口超出原砼面,底口涌入泥水。
针对②、③两中原因引起的事故,应视具体情况,拔换原导管重下新管;或用原导管插入续灌,但灌注前均应将进入导管内的水和沉淀土用吸泥和抽水的方法吸出。如需重新下管,必须用潜水泵将管内的水抽干,才可继续灌注砼。为防止抽水后导管外的泥水穿透原灌砼从导管底口翻入,导管插入砼内应有足够深度,一般宜大于200cm。由于潜水泵不可能将导管内的水全部抽干,续灌的砼应增加水泥量,提高稠度后灌入导管内,灌入前将导管进行小幅度抖动或挂振捣器予以振动片刻,使原砼损失的流动性得以弥补。以后灌注的砼可恢复正常的配合比。
若砼面在水面以下不很深,为初凝时,可于导管底部设置防水塞(应使用砼特制),将导管重新插入砼内(导管侧面再加重力,以克服水的浮力)。导管内装灌砼后稍提导管,利用新砼自重将底塞压出,然后继续灌注。
若砼面在水面以下不很深,但已初凝,导管不能重新插入砼时,可在原护筒内面加设直径稍小的钢护筒,用重压或锤击方法压入原砼面以下适当深度,然后将护筒内的水(泥浆)抽除,并将原砼顶面的泥渣和软弱层清除干净,再在护筒内灌注普通砼至设计桩顶。
(2)卡管
卡管主要有以下两种情况:
①、初灌时隔水栓卡管;或由于砼本身的原因,如坍落度过小、流动性差,夹有大卵石、拌和不均匀,以及运输途中产生离析、导管接缝处漏水、雨天运送砼未加遮盖等,使砼中的水泥浆被冲走,粗集料集中而造成导管堵塞。
处理办法:用长杆冲捣管内砼,用吊绳抖动导管,或在导管上安装附着式振捣器等使隔水栓下落。如仍不能下落时,则须将导管连同其内的砼提出钻孔,进行清理修整(注意切勿使导管内的砼落入井孔),然后重新吊装导管,重新灌注。一旦有砼拌和物落入井孔,须将散落在孔底的拌和物粒料予以清除。
提管时应注意到导管上重下轻,要采取可靠措施防止翻倒伤人。
②、机械发生故障或其他原因使砼在导管内停留时间过久,或灌注时间持续过长,最初灌注的砼已经初凝,增大了导管内砼下落的阻力,砼堵在管内。其预防方法是灌注前应仔细检修灌注机械,并准备备用机械,发生故障时立即调换备用机械;同时采取措施,加速砼灌注速度,必要时可在首批砼中掺入缓凝剂以延缓砼的初凝时间。
当灌注时间已久,孔内首批砼已初凝,导管内又堵塞有砼,此时应将导管拔出,重新安设钻机,利用较小钻头将钢筋笼以内的砼钻挖吸出,用冲抓锤将钢筋骨架逐一拔出。然后以粘土掺砂砾填塞井孔,待沉实后重新钻孔成桩。
(3)坍孔
在灌注过程中如发现井孔护筒内水(泥浆)位忽然上升溢出护筒,随即骤降并冒出气泡,应怀疑是坍孔征象,可用探测仪探头或伸测深锤探测。如测深锤原系停挂在砼表面上未取出的现被埋不能上提,或测深仪探头测得的表面深度达不到原来的深度,相差很多,均可证实发生坍孔。坍孔原因可能是护筒底脚周围漏水,孔内水位降低,不能保持原有静水压力,以及由于护筒周围堆放重物或机械振动等,均有可能引起坍孔。
发生坍孔后,应查明原因,采取相应措施,如保持或加大水头、移开重物、排除振动等,防止继续坍孔。然后用吸泥机吸出坍入孔中泥土;如不继续坍孔,可恢复正常灌注。如坍孔仍不停止,坍塌部位较深,宜将导管拔出,将砼钻开抓出,同时将钢筋抓出,只求保存孔位,再以粘土掺砂砾回填,待回填土沉实后重新钻孔成桩。
(4)埋管
产生埋管的原因一般是:导管埋入砼过深,或导管内外砼已初凝使导管与砼间摩阻力过大,或因提管过猛将导管拉断。
预防办法:应严格控制导管埋深在2~6m之内,要经常测深,及时指导提升导管。在导管上安装附着式振捣器,拔管前或停灌时间较长时均应适当振捣,使导管周围的砼不致过早地初凝;首批砼掺入缓凝剂,加快灌注速度;导管接头螺栓事先应检查是否稳妥;提升导管时不可猛拔。
若埋管事故已发生,初时可用链滑车、千斤顶试拔。如仍拔不出,凡属并非因砼初凝流动性损失过大的情况,可插入一直径小的护筒至砼已灌砼中,用吸泥机吸出砼表面泥渣;派潜水工下至砼表面,在水下将导管齐砼面切断;拔出小护筒,重新下导管灌注。此桩灌注完成后,上下断层间,应予以补强。
(5)钢筋笼上升
钢筋笼上升,除了一些易见的原因是由于全套管上拔、导管提升钩挂所致外,主要原因是由于砼表面接近钢筋笼底口,导管底口在钢筋笼底口以下3m至以上1m时,砼的灌注速度(m3/min)过快,使砼下落冲出导管底口向上反冲,其顶托力大于钢筋笼的重力时所致。
为了防止钢筋笼上升,当导管底口低于钢筋笼底部1m~3m,且砼表面在钢筋笼底部上下1m之间时,应放慢砼灌注速度,允许的最大灌注速度以0.4 m3/min为宜。同时,还应从钢筋笼自身的结构及定位方式上加以考虑,具体措施为:①、适当减少钢筋笼下端的箍筋数量,可以减少砼向上的顶托力;②、钢筋笼上端焊固在护筒上,可以承受部分顶托力,具有防止其上升的作用;③、在孔底设置直径不小于主筋的1~2道加强环形筋,并以适当数量的牵引筋牢固地焊接于钢筋笼的底部。
(6)灌注桩补强方法
灌注桩的各种质量事故,其后果均会导致桩身强度的降低,不能满足设计的受力要求,因此需要作补强处理,一般采用压入水泥浆补强方法,其施工要点如下:
①、对需补强的桩,除用地质钻机已钻一个取芯孔外(用超声波等无破损深测法探测的桩要钻两个孔),应再钻一个孔。一个用做进浆孔,另一个用作出浆孔。孔深要求达到补强位置以下1m,柱桩则应达到基岩。
②、用高压水泵向一个孔内压入清水,压力不小于0.5Mpa~0.7Mpa,将夹泥和松散的砼碎渣从另一孔冲洗出来,直到排出清水为。
③、用压浆泵压浆,第一次压入水灰比为0.8的纯水泥稀浆,进浆管应插入钻孔1.0m以上,用麻絮填塞进浆管周围,防止水泥浆从进浆口冒出。待孔内原有清水从出浆口压出来以后,再用水灰比0.5的浓水泥浆压入,使浆液得到充分扩散,应压一阵停一阵,当浓浆从出浆口冒出后,停止压浆,用碎石将出浆口封填,并用麻袋堵实。
⑤、最后用水灰比为0.4的水泥浆压入,并增大灌浆压力至0.7Mpa~0.8Mpa关闭进浆闸,稳压闷浆20min~25min,压浆工作即可结束。
(7)遇溶洞的处理
如在开挖过程中遇有溶洞裂隙,则钻孔的时候用比孔桩直径大300mm的钻头钻大孔,用10厚钢板制作钢护筒。待溶洞开挖深度达到2m深时采用吊车将钢护筒吊装就位,采用旋挖机往下压,压到位后再往下进行开挖,开挖2m后再接钢护筒,同时采用旋挖机仪器进行垂直度控制。重复上述工作直至溶洞开挖完成。浇筑砼时钢护筒不拆除,作为桩身模板,不重复利用。
当遇其他难题时,再出专项措施处理。
来源:豆丁施工
版权归原作者所有