无数中国人的骨子里,都充满着诗情画意的色彩,若是将这份浪漫融入对家居住宅的打造,便能为空间渲染出独特的魅力。
杭州的一位女屋主就十分偏爱中式风格,但并未选择在家具和软装上进行中式元素的大量堆砌,而是在不同的物件中融入中式元素,打造出独特的的中式住宅。
最厉害的是,整屋全是女主人亲自设计,却丝毫不输专业设计师,真的太令人惊叹了!
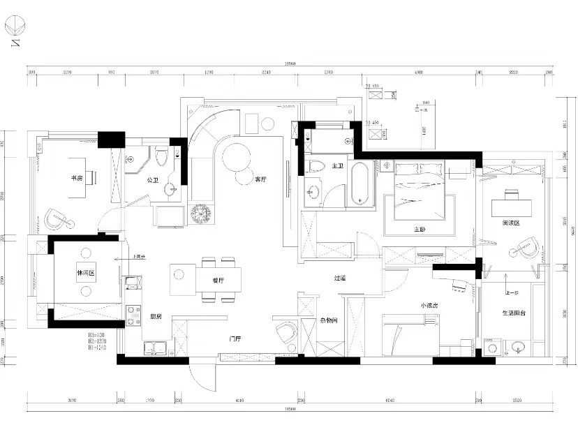
01户型图
原始户型是四室两厅的布局,为了将空间打造得更为连贯灵活,女屋主几乎拆除全部的非承重墙,为设计提供了更多可能。

改造后户型图
其中,缩小原儿童房空间,留出部分做成储物间,方便日常物品的存放。并将封闭式厨房改造成现在的开放式,空间开阔又灵活。更为厉害的是客厅和卧室阳台设计,又美又实用,喜欢中式风的绝对可以照搬啦!
02玄关
一进入玄关,就一整个被美到了!简直是中式玄关的典范,轻松将小家变得大气十足。
存在感极低的浅灰色顶天立地鞋柜,保证了日常玄关整洁。柜体延伸出的隔板放置绿植,再搭配一把中式木椅,在暖色灯带下,典雅成熟。

玄关地面和室内木地板之间直接断开,并用白色石子填满,界限感分明。这样既有室内隐私感,又方便玄关的清洁。

玄关设计最妙的地方就是圆形门洞造型,通过它发现,不同角度就是不同的中式画卷。可谓是既有松石屹立的气韵,又有人约黄昏后的静谧。

从玄关位置看向客餐厅,高低错落的空间延伸,充实而不显杂乱。温暖柔和的吊灯下,是生活最真实的模样。光影斑驳,绿意参差,清新舒适。

与玄关一墙之隔的餐厅,用一个超长的原木餐桌,气势十足。餐桌上的餐垫和金属烛台及玻璃吊灯,完全是不同风格的混搭,却构筑出了一个协调的场景。
03餐厅
玄关与餐厅,通过这半扇墙相隔,掩映之下颇具空间美感,而墙上的圆洞则模糊了界限感,几步之间空间转换,做到了真正的移步换景。

从远处看去,在玄关圆洞的背景下,餐桌仿若置身于中式园林之中,既是用餐,亦是美景。

厨房和餐桌之间通过方型岛台隔开,方便日常清洗备菜的同时,也增加了中式的厚重。

厨房紧挨家里的榻榻米房,日式障子纸的推拉门,巧妙地将光线引入室内。内部铺设了榻榻米,日常可以喝茶,亲友来访时,又是小朋友的玩耍空间。

厨房与餐桌之间距离也很近,整个布局,形成一个环形动线,非常方便日常生活。

方形岛台给餐桌一种无形的安全感,可以想象日常这里也是一家人欢声笑语的地方。
04厨房
厨房空间并不大,却因开放式的设计而减少了压抑逼仄。灰白的主色调相碰撞,充满现代简约的风格。

L型布局,操作空间并没有十分宽裕,蒸、烤箱全部嵌入式安装在水槽旁的高柜里。而双开门的冰箱,则被安置在几步之遥的过道墙内,可以想见女主人在设计时的困难。

不过,厨房最大的亮点不在橱柜,而是靠近灶台的这个全开放式原木摆件柜。轻松让颇具现代气息的厨房与中式意趣实现了过渡与融合。美观实用,又保证了整体风格的统一。
05客厅
客厅整体更为简洁大气,两盆绿植勾勒出了客厅的模糊界限,大面积的灰色运用让客厅增添了些现代工业气息。

电视墙同时安装了投影设备,为一家人的生活增添了更多乐趣。电视下方是嵌入式壁炉,冬日里,一家人坐在客厅看球聊天,暖和又舒服。

地台的设计取代了传统的电视柜,质感利落,也让视觉更为平衡。灵活的小圆木桌和藤编坐垫,都让客厅更显舒适轻松,而不是刻板的“中式厅堂”。

圆弧造型的超大真皮绿沙发,在客厅的绿植下,清爽又显光泽质感。女主人专门将客厅阳台做地台设计,成为家里不错的喝茶角。

阳台一侧的开放式展示柜中,放置许多古风古韵的中式摆件。地台上方桌茶盏,轻纱飘逸,绝对是一个美好的午后时光。

沙发另一角的高大绿植,在阳光下,生机盎然。中式风里的园林树木,也是家十分重要的点缀。

客厅部分不但融入了中式风格的自然惬意,也渗透着现代工业风的简约美感,多种元素的交融碰撞正是屋主自身理念的体现。
06主卧
卧室的墙面较客厅采用了更为温柔细腻的颜色,镂空线条的木质床架,与阳台相隔的木格栅,线条呼应的美感,也处处体现着屋主对于原木的热衷。

主卧与阳台之间,通过推拉木格栅门做隔断。阳台可以做读书角,亦或是茶室都可。午后的阳光照入,原木的家具瞬间变得灵动温暖,在这样自然舒适的氛围,喝茶画画都再合适不过。

夜晚,竹帘放下,四下静谧,昏黄的灯光渲染出了宁静与淡泊,又是一个人*坐静**看书的好时候。

主卧另一边,是主卫空间,为了保证室内的充分采光,主卫与休息区之间,采用了透明玻璃隔断的设计。没有了视觉的阻隔,良好的采光让空间流露出了电影的质感。

主卫内部十分简约清爽,嵌入式的超大浴缸,是工作之余给身体的补偿。

清晨的阳光,总会给家带来的惊喜,彩虹光临,总有好运发生。

女主人并不刻意在主卧使用中式元素,而是根据需要和喜欢,将各种风格融合。从阳台到主卫,像是从过去到现代,却并不突兀,实现了柔和的过渡。
07儿童房
儿童房并没有过多的装饰,只在墙面上使用乳胶漆,画出重峦叠嶂,再搭配壁灯的橙黄灯光,仿若日出,给孩子无限的想象。

木工专门设计的小床,床下的空间做成抽屉式储物,可以收纳孩子的玩具图书,小空间也十分清爽整洁。
08书房
百叶窗的运用,为书房增加了一层柔和的滤镜,细细的自然光影中,通透清爽,空间也仿若能“呼吸”一般。

书房靠墙做了一整面的书架,开放式与封闭式结合,让书籍收纳更为轻松。

书房的采光更是十分优越,一天之间,不管何时,都能看到光影流动,温柔平静中,又有生活的力量。

更多的时间里,女主人会在书房看书、画画,沉静在自己的艺术世界里。

毛毡质地的靛青桌布,笔墨书香,绿意生机,都给书房以静谧和美好。

角落里,古朴盆栽、中式木椅、古风画作,传统陈设从无数细节处不断升华。

这也是整个家里,最具中式风的空间,书香浓郁,布局匀称,太让人着迷。
09休闲区/榻榻米室
休闲室铺设了榻榻米,整体的风格较为简约,主要作为储物收纳和待客使用。当然也是小朋友们娱乐的好地方。

榻榻米中间,做可升降的小方桌,来客时可以对坐品茗,闲谈畅饮。平时隐藏在榻榻米内,完全不影响人休息。

榻榻米做双阶梯,十分具有仪式感。木阶上放置造型独特的绿植,搭配和风门与陈列架,充满古风色彩。

榻榻米室与书房只有一墙之隔,书房没有做门,开放式自由来去,也让过道区采光明亮舒适。
10阳台
主次卧阳台打通后,空间十分可观。主卧部分抬高做成地台,是看书喝茶的好去处。次卧则铺设了水磨石地砖,作为生活阳台使用,更具实用功能。

绿植摇曳,竹帘参差,光影婆娑,灵动优美,双阳台空间彼此独立又十分统一。

另一角度可以看到较为完整的生活阳台,作为家里的晾衣区使用。与休闲阳台间用竹帘隔开,倒也互不相扰。

黄昏的光晕笼罩着阳台的姹紫嫣红,繁花锦簇,又是一派宁静与生机。

更为创意的是,女主人利用阳台还做了一个小小的鱼池,池中绿意葱翠,与室外的河流彼此呼应。

各色绿植花草在阳台上蓬勃生长,小鱼儿在水里畅快遨游,一个小小的阳台,充满中式的美感,又富有生命的活力。

很多人觉得中式风过于讲究和隆重,其实真正融入生活的中式,更具艺术感和生活境界。女主人也正是通过自己对中式的理解,重新赋予中式风新的意义和灵魂。因此她的家里,古朴中透着现代,简约中揉着古典。而且整体氛围完全不呆板刻意,更多的是舒缓又自在、松快又亮眼,我想这也是引得无数人喜欢的原因。
<图片来源/好好住@田午
撰文、编辑/小喜>