

F·天下别墅
开工仪式

良辰吉时
2019年8月26日上午09:58
武汉原创艺墅国际装饰热烈祝贺
[官总和官夫人别墅开工大吉]
在一片热烈、喜庆和庄重的氛围中,
原创艺墅于F·天下
官总别墅内举行了隆重的开工仪式。
开工,意味着一个好的合作开端。
我们带着满腔热情参与此次开工仪式,
不仅表达对业主的美好祝愿,
亦是将工程与业主进行正式对接的必要环节。
壹
开工「实况」现场
F·天下
开工仪式标准
五“心”服务条幅、效果图展架、展板、窗膜、
工作服、衣帽柜、开工金锤、礼花、香炉、
果盘、高脚杯、红地毯、灭火器等。



开工当天,客户经理、设计师、项目经理、厂家等人带着鲜花来到业主福宅,为业主送上真挚的祝福。原创艺墅团队也早早地抵达现场对接开工事宜,保证各方细节沟通到位,共同为业主的家努力!
施工保护标准
原创艺墅对每一个施工保护环节严格按照规章制度执行,每周将派出由工程经理、项目经理、产品经理等人员共同组成的联查小组,对在施工地进行抽查与管理。不仅严查施工进度、技术指标和工艺效果,还对现场安全保护措施执行严苛标准,给业主提供放心省心的家装体验。



剪彩庆祝仪式
原创艺墅装饰团队同业主一家举杯同庆,以神圣的剪彩仪式庆祝装修之旅的开启!


业主上香
焚香祷告,诚心祈福是开工仪式中的重要环节。开工仪式上特别安排业主及施工方祭拜天地、土地等神灵,保佑家宅平安,装修顺利!


交接金锤
由设计师将开工金锤递交到官总手中,意味着官总对工程质量的监督,项目经理对工程质量的把关,设计师对施工过程的检验就此开始。

开工第一锤
带着对家的殷殷期许,业主敲下了开工第一锤。寓意一锤定音,新房动土,工地正式开工!


随着开工第一锤的敲下,原创艺墅将各司其职,为您一步步打造满意的家。
献上鲜花
带着美好的祝愿,客户经理为官夫人献上福宅鲜花。

我们感谢业主对原创艺墅的信任,在接下来的日子里,无论是工程、工艺、还是施工安全,原创艺墅定不负厚望,将家完完美美、漂漂亮亮的交给官总一家。
业主感言
在仪式的尾声,我们特请上官总、设计师、项目经理总结发言。



官总在发言中满意地表述到:“初期对别墅和庭院设计只有粗略的概念,后来通过和贵公司设计师细心的沟通交流,十分放心把别墅及庭院交给原创艺墅施工。相信在专业团队的精心设计和营造下,一定能打造一个让我满意的家。”
设计、施工交底
在开工仪式现场,设计师、项目经理以及相关厂家人员关于设计图与施工图细节进行详细讨论,以保障后期施工的顺利展开,原创艺墅始终秉承90%以上的实景还原率。



贰
关于「全案」设计
F·天下
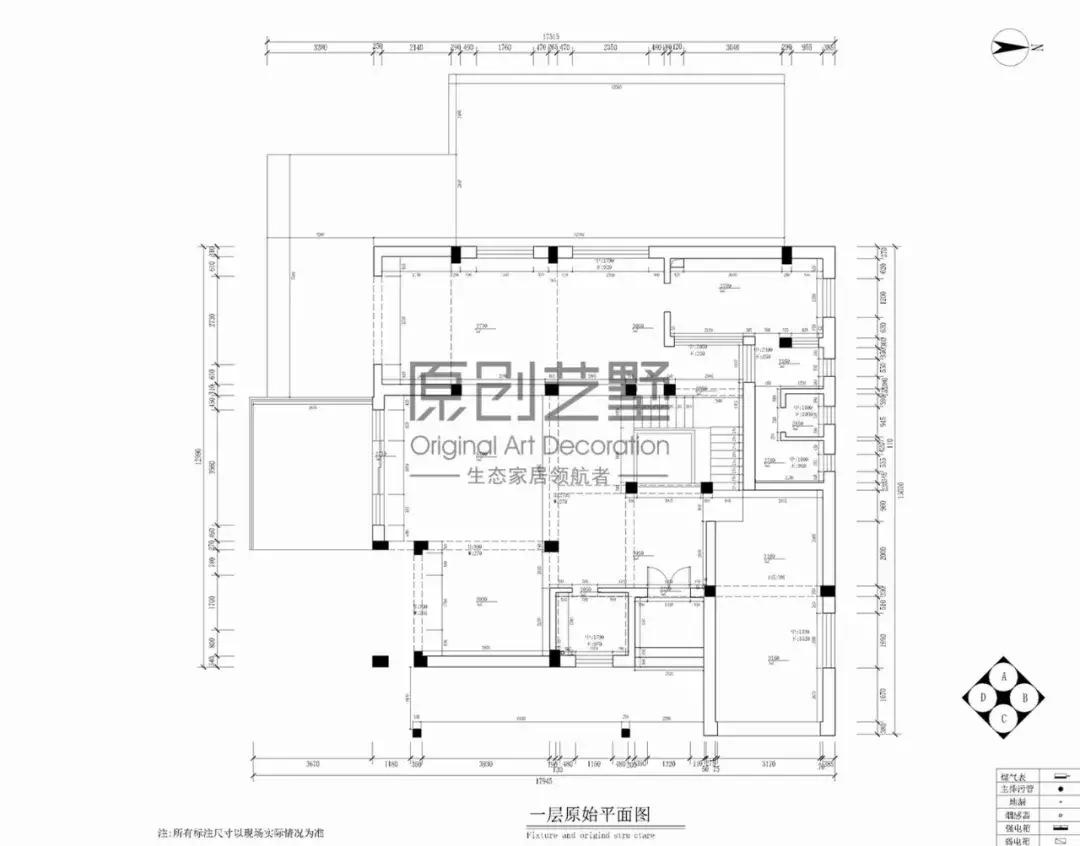
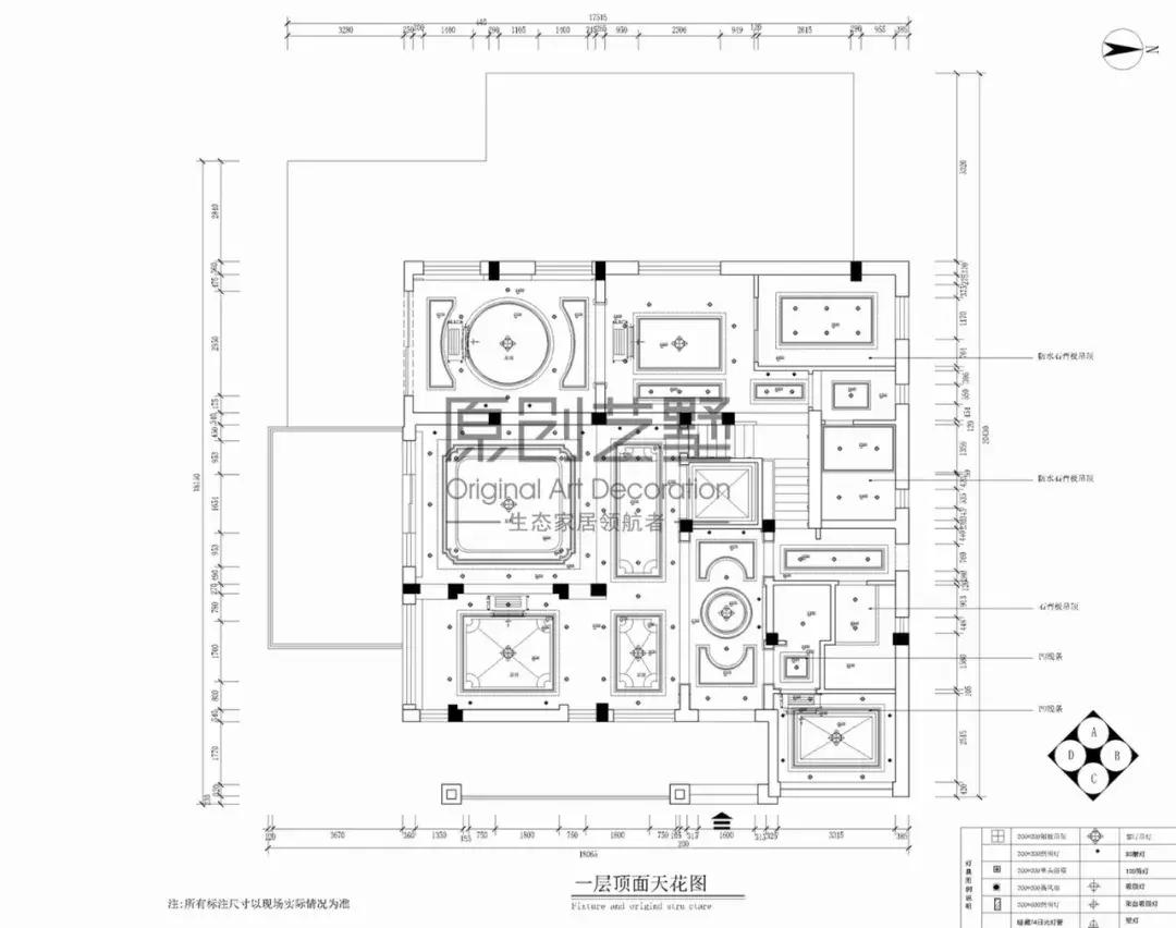
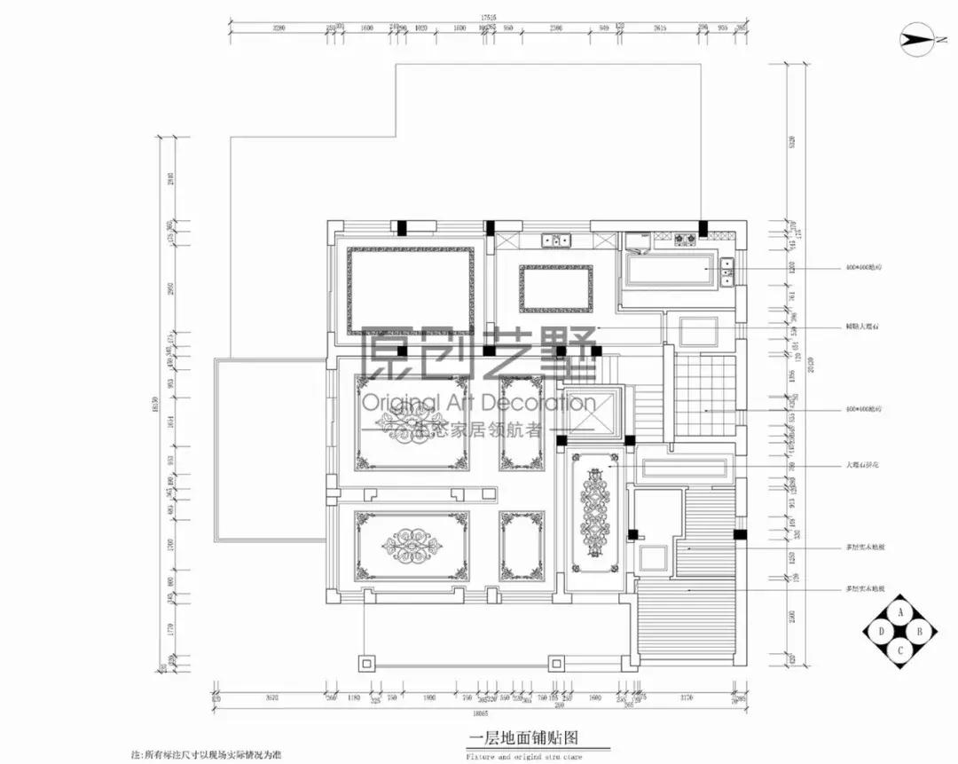
592㎡平面布局图



欧式风格效果图




主案设计师

李陈
武汉原创艺墅装饰
主任设计师
从业经验:10年
案例作品:27套
擅长风格:法式风格、现代风格、地中海风格。
服务楼盘:
华侨城、复地东湖国际、绿地金融国际城、尚都一品、月湖琴声、驿山高尔夫。
荣誉背景:
武汉装饰协会高级室内设计师
住宅装饰行业优秀设计师
—— 原创艺墅 生态家居领航者 ——

公司地址/洪山区欢乐大道9号正堂时代35层
▼

武汉原创艺墅国际装饰
国际大师|大牌合作|全案定制|N+1服务
16年专注别墅大宅 大师全案定制设计
全新生态家装体系 专业成就家的幸福
英国执事级保障服务 256项德系施工工艺