现如今农村自建房越来越受到大家的关注,在城市买套房还真不如在农村自建一栋小别墅,因为咱们可以按照自己的喜好来设计自建房。而且现在自建房不比以前,材料多种多样,光是外墙材料就有瓷砖、文化石、涂料、真石漆、干挂石材、挂板等。

瓷砖和涂料造价便宜,但是装饰效果有点Low,达不到别墅的质感。所以农村建房还是常用文化石和真石漆搭配,造价不会过于昂贵,装饰效果也十分别致,还有一种材料就是干挂石材,谁家别墅立面若是采用干挂石材,都不用看,妥妥的土豪。
今天就带大家看看两套自建房实例,同样是三层小别墅,到底是文化石好看,还是干挂石材更大气!
浙江真石漆+文化石自建房,造价50万▼

仿古的文化石与朱红色外墙真石漆,营造一种返璞归真的质感,文化石色泽调配变化,将石材质感的内涵与艺术性展现无遗,透出一种文化韵味和自然气息,是你喜欢的style吗?



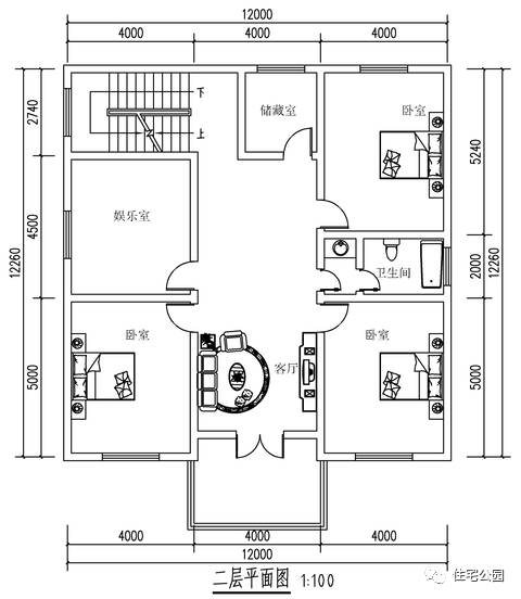
山东干挂石材自建房,造价百万▼

经典大气的欧式建筑,挑高的门厅十分霸气,错落有致别墅形态层次感十足,再搭配全石材干挂的别墅立面,充满品质与美感,完美体现欧式的奢华与庄重。



看完以上的介绍后,您更青睐哪一种效果呢?
微信公众号:houseparkcom(长按可复制),500套别墅图纸,别墅施工专家答疑!