八仙桌是客家地区最常见的生活用具之一。八仙,即“八仙过海”之八仙。他们各有个性,如奇怪老叟张果老,大腹便便汉钟离,风流倜傥吕洞宾、年年十八何仙姑、洞箫横吹韩湘子等。“八仙过海,各显神通”、“狗咬吕洞宾,不识好人心”等俗语大家耳熟能详。

所谓八仙有多种说法,这里我们特指由“七男一女”,即汉钟离、张果老、韩湘子、铁拐李、吕洞宾、何仙姑、蓝采和及曹国舅等八位道家仙人组成的八仙体系。

“八仙桌”的定义
八仙桌指桌面四边长度相等的、桌面较宽的方桌,每边可坐二人,四边围坐八人(犹如八仙),故汉族民间雅称八仙桌;是汉族传统家具之一。八仙桌结构简单,用料经济,一件家具仅腿、边、牙板三个部件。

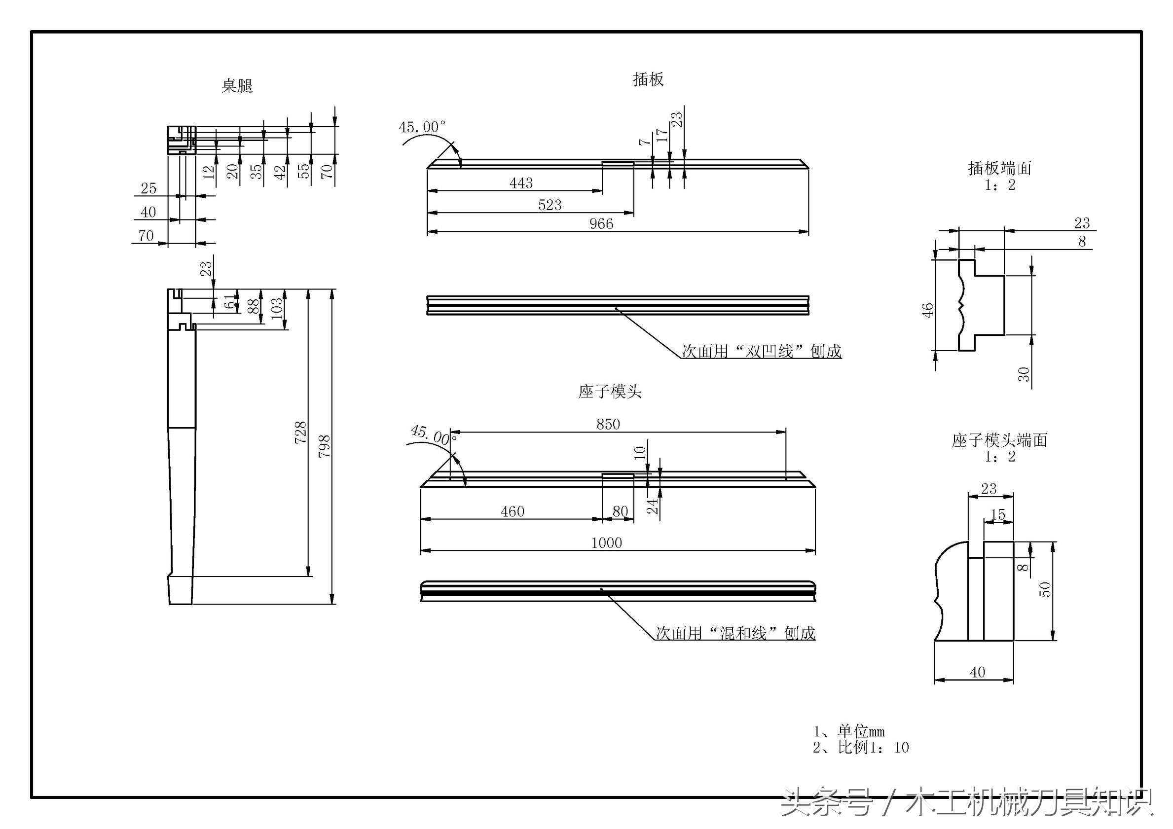
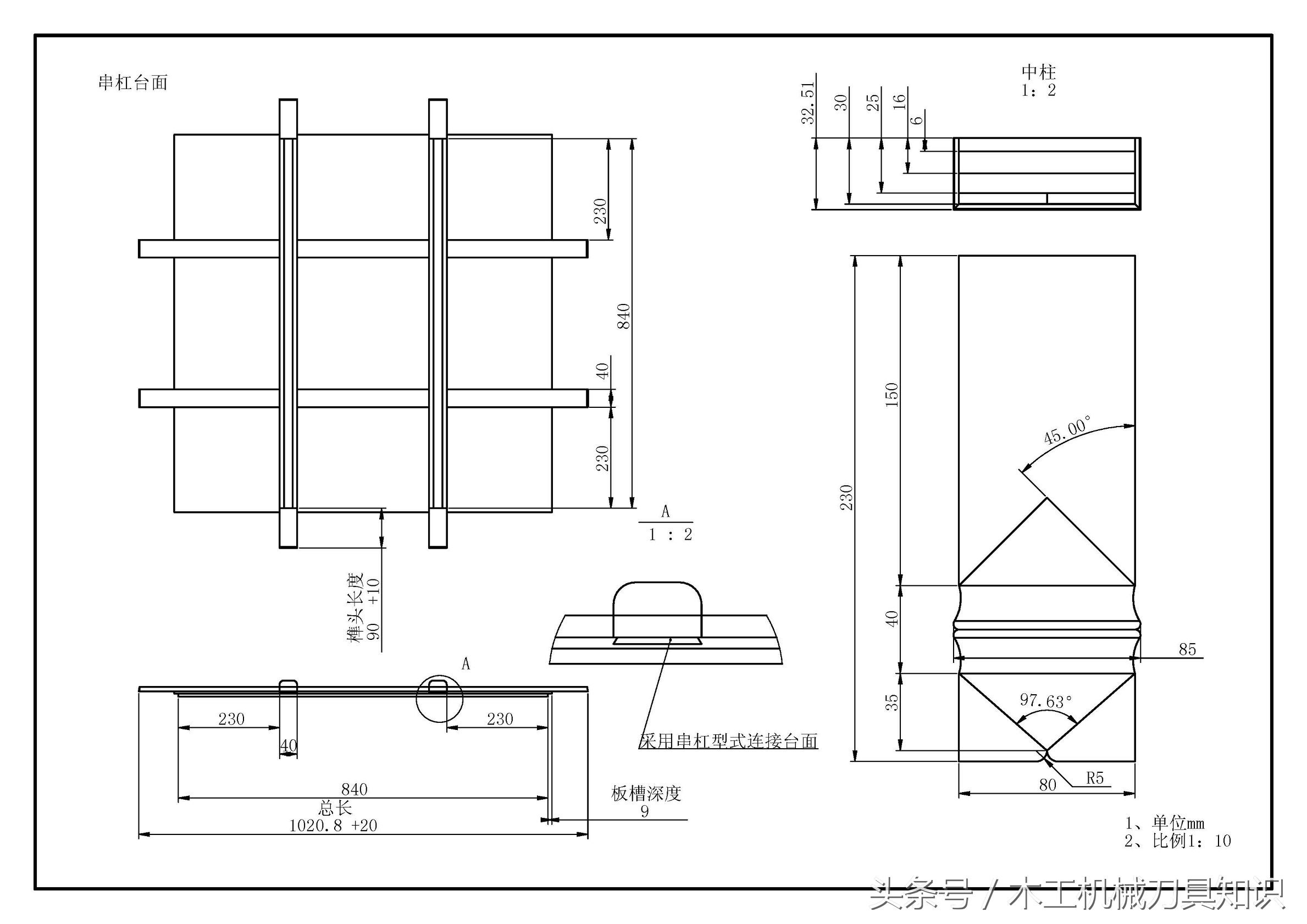
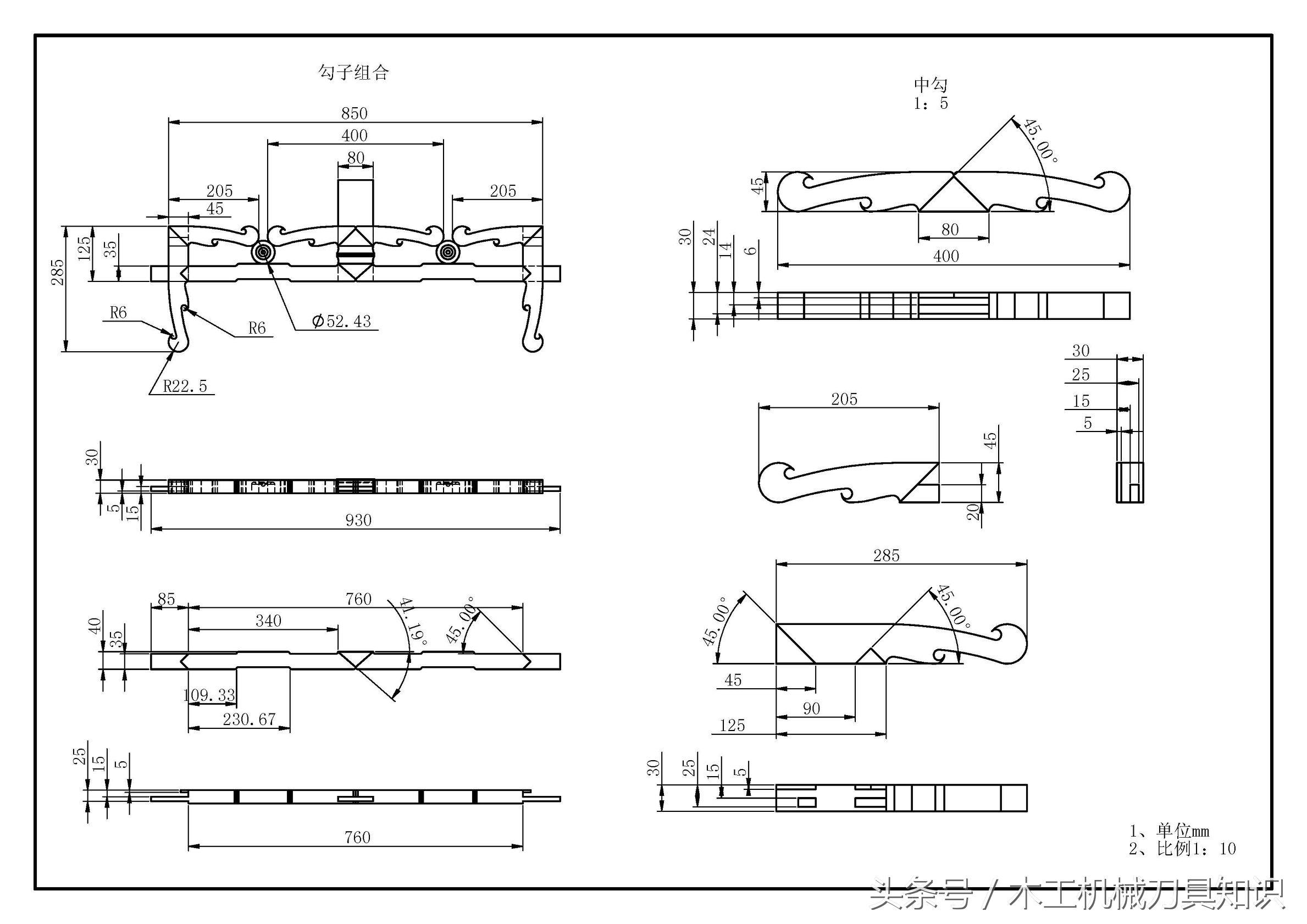
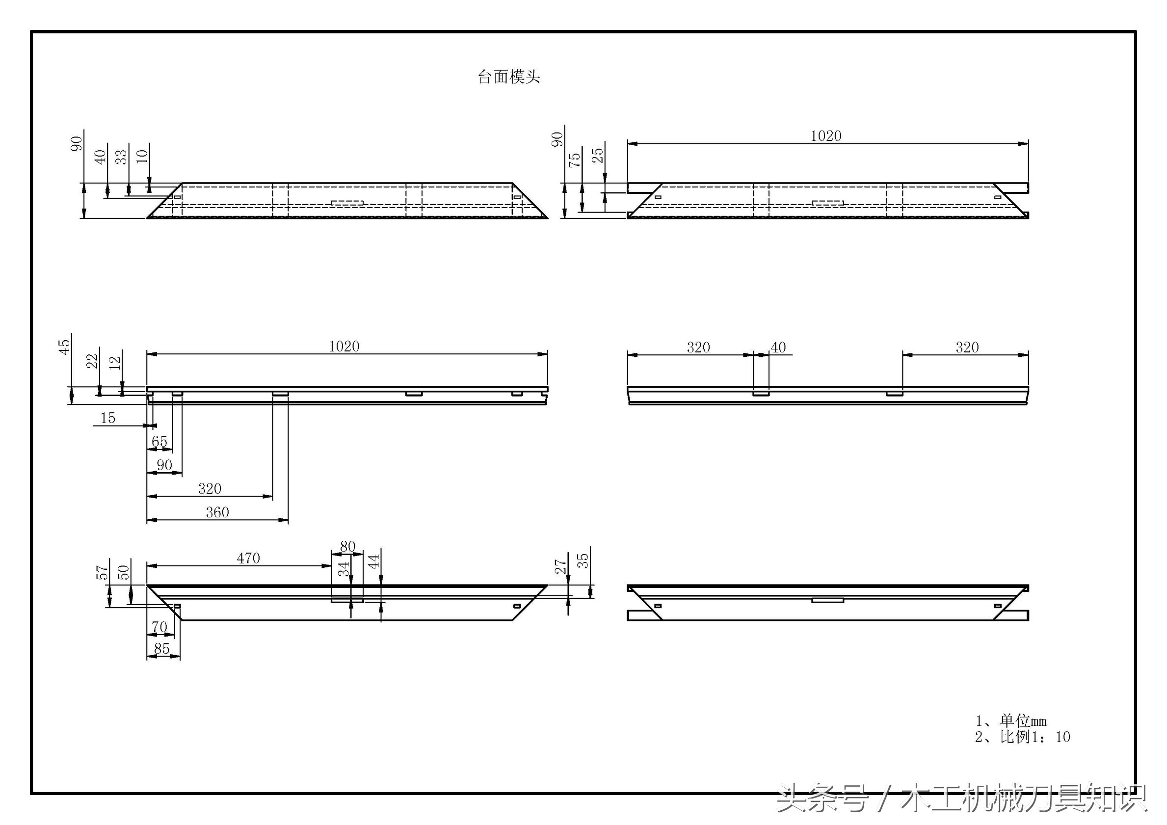
下面提供一下八仙桌尺寸详图,动手能力强的高人们可以按图制作,不过在制作过程中要严格按图面尺寸制作哦~。





木工刀具论坛“zjwoodtools”[微信号]
木工刀具网(http://www.zjwoodtools.cn)-木工刀具行业网站,木材切削加工技术专业交流论坛。