龙园意境坐落于布吉镇石芽岭生态公园片区,此片区是被深圳市政府新规划的唯一的、低密度纯居住生态新区(ELD),龙园意境是该片区唯一的别墅豪宅。东易日盛设计师了解客户需求后,随即去到龙园意境别墅现场,仔细勘察了别墅现场环境以及设计阻碍。


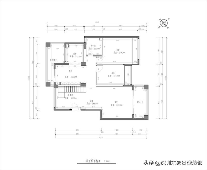
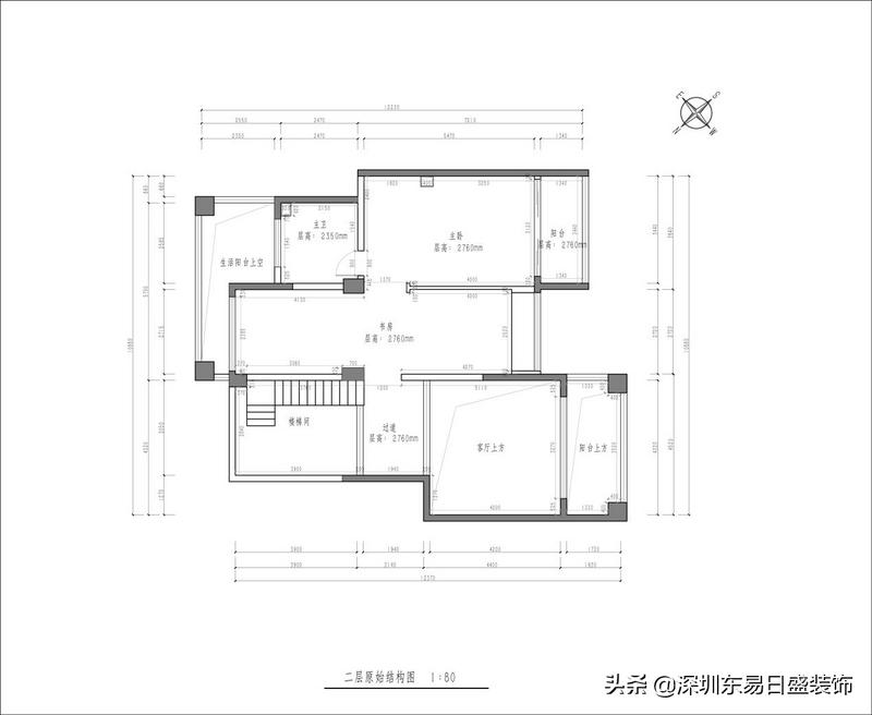
此为勘测现场后绘制的跃层别墅结构图,尽管为跃层,设计师也认真仔细的测了每一层的尺寸,以确保设计更为合理。


经过现场反复考察、构思风格,跟业主多次确认后,决定采用新中式装修风格,以上就是绘制的新中式风格平面方案图。

因为入户空间足够开阔,所以玄关设计大气,整体色调以红棕为主,更突出中式风格的特色。

客厅的活动区域小且储物功能性较差,在软装部分利用柜子拉伸的感来增大空间视觉效果,使得采光性更好。


将原始书房空间改成两个房间,满足业主的需求,二楼就成为了统一的作息空间,成为一个独立的隐私性空间;为了提高生活品质在二楼原始主卫位置更改为公卫。
以上就是龙园意境246平别墅新中式风格设计的案例,本案设计师回归人文常态,品茗养性,放空自我,家装方面运用了许多新材料,对称的格局,不落俗套,色彩追求禅意而不显沉闷,静中带出欢快的调子,反映出城市人对传统文化的现代表达方式!
设计的每个空间有独特的魅力,不拘一格、自成一派,所有的装饰元素和色彩构成,均来自于大自然,让居者浑然天成,悠然自得。