
户型:五室
使用面积:270平米
房屋位置:浙江 杭州
装修花费:185万元
说在前面
在我们的常规认知中,楼梯只是充当“工具人”的概念。楼梯在别墅、酒店、展厅之类的大型场景有可发挥的空间,华丽、气场、高级感的表达方式之一,可对于小面积的居家空间来说,楼梯的存在就没有如此的理想了。相信也是很多跃层人苦恼的问题,所以我们今天就是来送答案的。碍事工具也可以变身空间主角,成为你最爱的一角。
空间展示
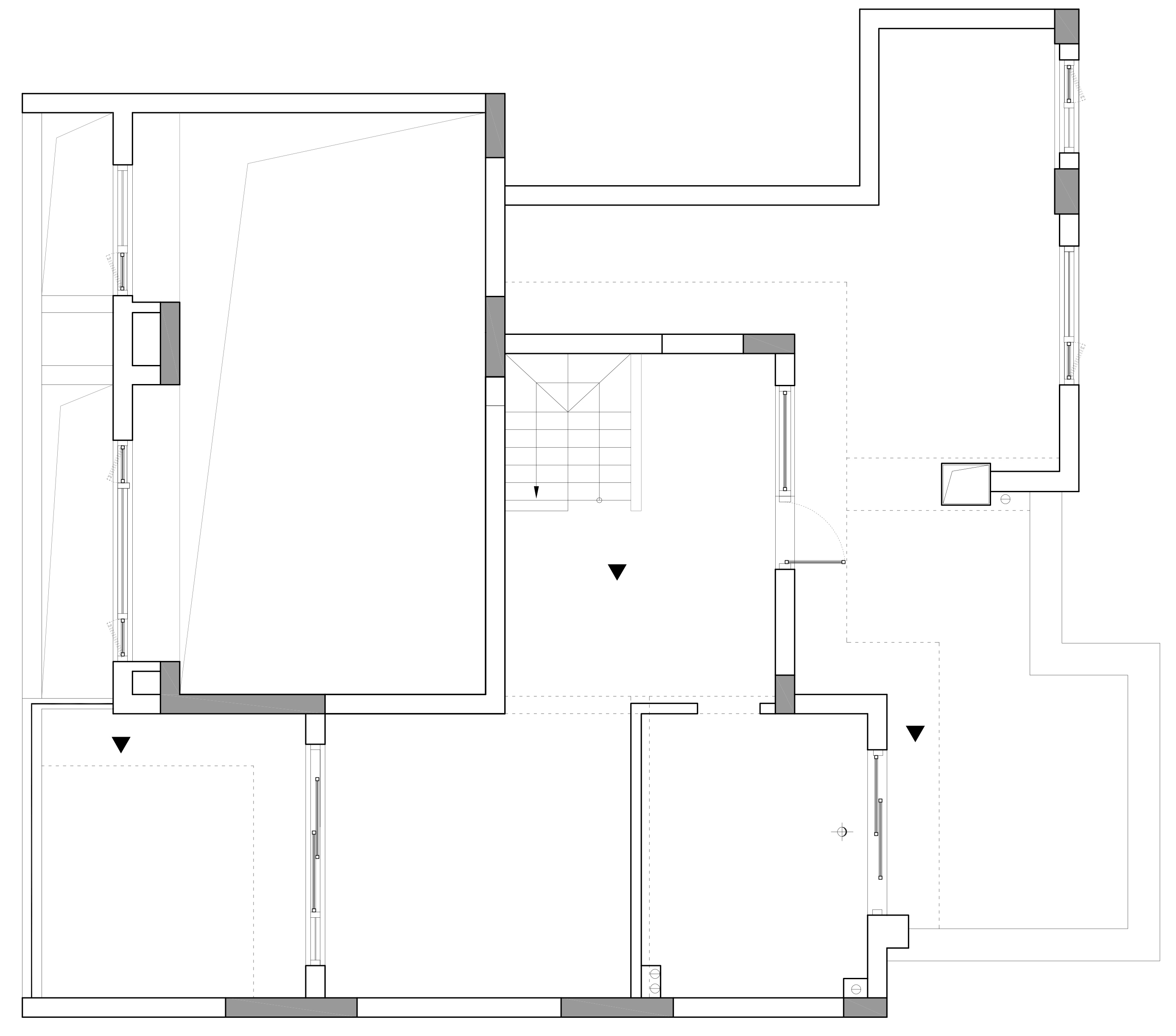
- 户型图 -

#一楼户型图 对于这个顶跃的户型,楼梯是个大问题。原楼梯是在进门的右手边,几乎是整个房子的中心位置。一进门就是楼梯的体验感:压抑、逼仄,还阻挡了南边部分光线,去往客餐厅的通道也变得狭窄。所以如何解决楼梯是我们首先面对的一大问题。

#一楼平面图 首先是打破楼梯的一贯概念:拥挤、碍事、昏暗。以悬浮楼梯的概念打开设计口子,改变楼梯入口,移到客厅的靠墙角落里,靠着上下两层的窗户,将占据的体量最小化、极佳的采光让这个楼梯,轻巧、浪漫又具有极强的呼吸感。

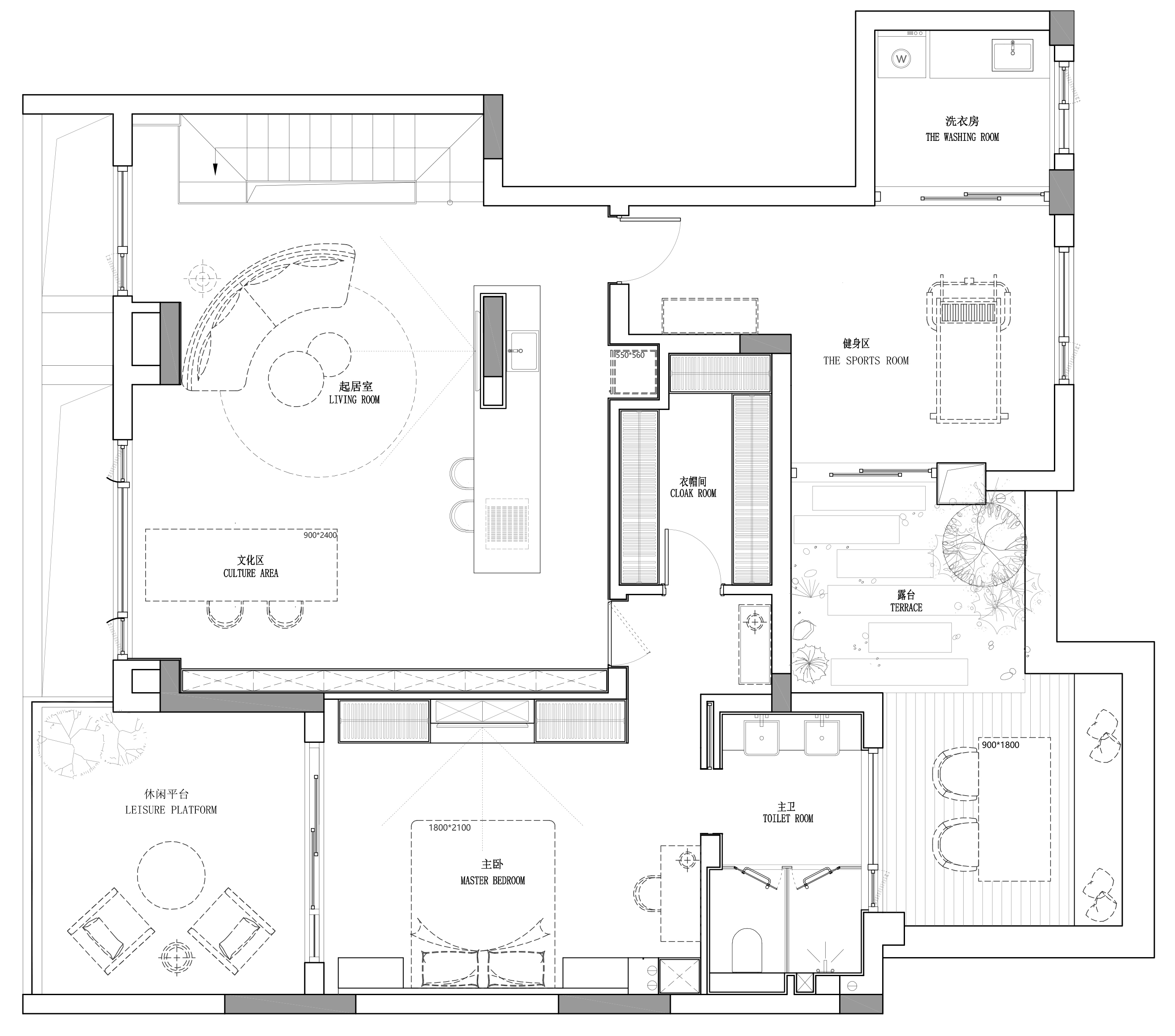
#二楼户型图 客餐厅位置是挑空的,二楼还有三处露台,所以二楼的空间很局促。加上楼梯的位置不好,影响的便是上下两层。导致卧室也很难再开出一个的衣帽间,空间利用率极低。

#二楼平面图 他们是一家四口,最重要的还是功能性与实用性,最大化利用面积,所以选择在二楼浇筑一层,有了现在家人之间更为私密性的起居室。楼梯改在客厅角落之后,再加上可以包进来的一个露台,整个面积扩大两倍,主卧、健身房、洗衣房、水吧台、衣帽间、起居室、露台,除了下楼吃饭,楼上的设施一应俱全。
- 客厅 -

现在的楼梯今非昔比,已经是这个家的一大亮点,妥妥的的打卡一角~,已然是这个家最闪耀的加分项。 独立成块的钢板嵌入墙壁,最后刷上氟碳漆,白色的外壳一阶阶地漂浮在空中,我们的粉丝打趣说是“空气楼梯”,就好似悬浮于空间之中的楼梯,轻盈、呼吸感强。

光线穿插到楼梯之内,光影的投射变化是无形的装饰,随着季节、太阳直射点的变换,每天都是不同的画卷。对于钟爱抓拍光影的摄影爱好者来说不要太幸福哦!


如果一个物件必须存在,我们坦然接受。以怎样的形式去表达的主动权是在我们手中,而这也是我们设计之长。转换概念,工具梯更具艺术性。

二楼俯视角度

楼梯放在客厅尽头,不仅因为它不碍事,还因为设计师考虑它的采光性,靠窗 上下两层的户外光线打进来,楼梯洞头也可以让两层的光线发散交汇,达到整个房子的高采光目的。

悬浮式楼梯真的是太太太好看了,业主也都称赞我们工程部的手艺以及设计师的“吹毛求疵”、精益求精!我们新作一发布就有客户来问我们的楼梯多少钱,甚至还问一个台阶多少钱哈哈。整个楼梯的造价是5w,那一个台阶多少钱,你们猜猜看啦~~

- 厨房 -

在一楼的公共区域,相比之下餐厨占据的面积比客厅大的多。一是满足女业主想要西厨和一个大大的岛台,可以烹饪糕点美食,二是二楼有更具私密性的起居室可以让家人有一起聊天玩耍的地方。所以一楼的客厅更偏向于稍作休息或者朋友来时的一个闲谈空间,不必空出很大的空间留给一楼。

远处是入门的悬空鞋柜。一梯一户的户型外面有鞋柜,所以对室内的鞋柜收纳就没有太高。这个鞋柜又是今天的好物推荐咯!里面是一个大大的旋转鞋架,斜面板的双面设置,可以让鞋子有更多的空间、更方便地存取鞋子。建议去我们的douyin或者小红薯同名搜索看视频,更直观哦!

悬浮状柜体,显而易见减少压迫感。

中厨看向西厨视角,简洁的黑白,色彩一如餐厅的该有的简单、洁净。
- 餐厅 -

餐桌将近三米,很大的台面可供多人用餐,也是设计师想尽量将就餐区域向南拉,靠近阳台获得更多的阳光,才不愧这么好的采光条件。

餐厅看向中西厨角度,中厨、西厨、餐厅三个空间在同一条直线上,从开始准备餐点到美食制作完毕端上餐桌的整个流程,流畅高效~~ 中厨也是双开的推拉门,可以完全打开和西厨联系起来,可开放可独立。不小的中厨加上大大的岛台操作台面,完善的西门子蒸烤设备,和整面收纳空间,让她在厨房中更加游刃有余,不受限制又能够很好的保持外观上的整洁。



餐桌腿的黑色圆盘是不是更玩味~ 不要问哪里可以买的到,这是我们的又一个全案作品,你们懂得,均为菲拉定制。

- 起居室 -

不知道你们注意到没,书桌和沙发都偏向于窗户一侧,和餐桌的小心思一样,把他们最爱停留的地方都尽量和阳光有长时间的亲密接触。躺在沙发上慵懒地冲浪或者在看书时阳光洒在书上,都分外美好啊。


浇筑后的二楼用来做居室空间足够宽敞了,在背靠卧室的地方放张办公桌。颇有造型的书架墙也是作为整面墙的装饰,实用与装饰都在线。




可以包进来的露台加上浇筑后的二楼面积几乎大了两倍,所以又做了一个水吧台,除了吃饭可以满足所有的基本功能。水吧后面还有一个隐藏的内置小冰箱,面膜拿取也超方便。

- 卧室 -

有了原来的楼梯空间改做衣帽间后,主卧的收纳压力就小了很多,只留下电视墙一面的收纳。可不要小看这块柜子,柜子进深和宽度,以及抽屉之类的分柜,大到被子小到袜子都给安排的明明白白的。柜子讲究的不仅要多,也要分类合理,需要挂放的、叠放的、大物件、小物件都要分门别类收拾的明明白白的才是真正的合理。

卧室面积还是挺富余的,床头柜是现场做的和床头背景一体,台面就大了些,可以多放置些东西,悬浮不会太占体量,很推荐的。

墙壁用的是灰色墙布,浅淡的温暖。

- 衣帽间 -

远处就是衣帽间,做了大小不同的格口放置包包鞋子以及衣服,每个格口都细心地安装了灯带补足采光。
- 卫生间 -

#主卧卫生间 双台盆、三位分离的卫生间,不仅每个区域的使用功能不冲突,而且干净卫生。对于洁癖强迫症星人绝对是超爱的卫生间了。

右边便是露台。右边是推拉门,也可以从卫生间直接过去。

#一楼卫生间 一楼原来两个卧室的卫生间相邻,北面的房间被压缩的很小,所以设计师选择将两个卫生间合二为一给北面的房间多点面积,卫生间呢就做三区分离高效使用,而且玻璃全是镜面玻璃,里面完全看不到。还可以当全身镜用哦!
- 阳台 -

#户外露台 特别是在初夏或者初秋,和着风,和家人在户外阳台来杯下午茶~~
- 男孩房 -

在靠近阳台的原始结构上做的n造型,把承重墙包在里面做的造型连接起来,整个房间看着更完整,不会因为之前的承重墙觉得碍事,顺势又加了些柜子,放一些玩具、画本。

浅米色的壁纸,既有童趣,又不过分幼稚,给小孩子一个足够包容的成长空间。

- 女孩房 -

改造后的卫生间向外移了之后,女孩的房间大了很多,该有的收纳柜、手工桌以及富余的玩耍空间。