装修选什么样的装修方式?花多少钱?预算怎么定?有人装修花几十万也装不出来好效果,有人装修花十几万就装不出满意的家。要我说,钱很重要,但重要的是钱要花在刀刃上。

今天和小伙伴们聊聊半包15万如何装修~首先要说明白的是说是半包15万,不是全包,不是清包。半包即设计+施工+辅材,是现在都市人群最常选的装修方式。

1、关于半包价格中包含哪些费用,我就按飞墨家地说了,可能有的设计公司不一样,具体情况具体对待。

①全案设计,整体规划,大到布局,小到插座。
②现场手工制作的家具柜体,如各种柜子、榻榻米床、现场手工儿童床等。
③现场手工制作的墙面装饰,如木饰面板、护墙板等。
④辅材,如水泥、黄沙、墙面涂料、砌墙砖头等等。
⑥施工,除了部分需要商家安装的产品,基本都是由装修公司的人来施工。

2、需要业主自己购买的部分
主材:所有肉眼可以看到的,有装饰效果的硬装材料,如地板、地砖。
家电:所有的家电,包括灯具,都是业主自己购买。
家具:所有非现场手工打的家具,都是由业主自己购买。
软装:抱枕窗帘四件套,以及所有的装饰品。

看了上面的费用划分,小伙伴们应该能感受到到,半包15万的装修,是比较宽裕的,所以半包15万到底要怎么装?那当然是按空间大小的不同,具体问题具体对待~

01、80-100㎡。80㎡以下的户型,半包15万装修基本上是绰绰有余余余了,所以,咱们从80㎡往上说。建议:
- 户型优化,面积不大不小的房子,优化户型住得更好。
- 高颜值质感硬装,这个预算,能装出很好的硬装了。
- 足够收纳,将收纳做到极致。

1、户型优化
80-100㎡的户型,常见的户型问题有:面积小空间压抑、空间面积比例不对、动线混乱、采光通风不好等。

2、关于硬装材质和极致收纳
直接看下面这个案例吧↓↓↓
《山茶》
- 设计风格:现代简约
- 半包价格:14万
- 项目面积:96㎡

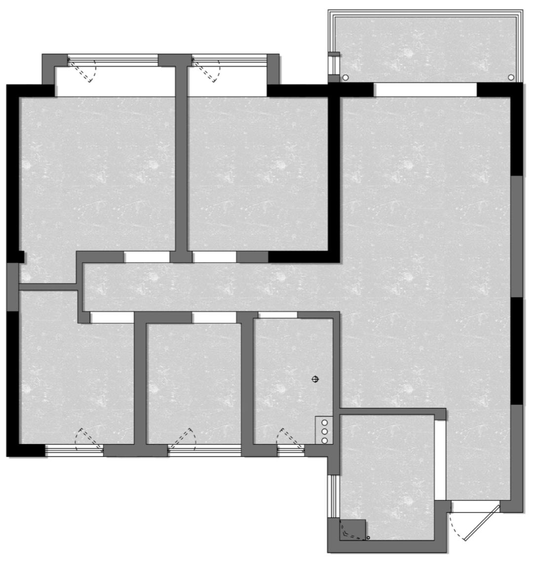
△Before

△After



这套房屋的面积在96㎡,装修半包价14万:
①户型改动较大,改动后入住舒适度更好,更加合理。
②玄关柜、橱柜、电视柜、儿童房的床柜子、衣帽间柜子等,都是现场手工打的,含在半包14万以内。
③木纹砖、灯笼砖,用了非常多高质感的硬装材料,装修效果棒棒哒。
对于面积不大的户型来说,半包15万能做的还是很多多多的!

02、100-120㎡左右的户型,半包15万装修也是很合适的。
①101-120㎡的房屋多是三居室,居室可以进行拆改,以优化动线。
②适度选择高质感的硬装材质,小面积使用较好。
③居住人口多的话,要做好家庭隔音。
④这个预算与面积结合,适合的风格较多,可以考虑简约、北欧风、法式风格等。

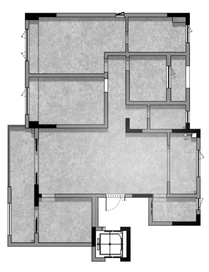
《恰·意》
- 设计风格:现代风
- 半包价格:15万
- 项目面积:112㎡

△Before

△After



03、对于121-140㎡上下的房屋来说,半包价15万,也是可以的。
①硬装方面可以选择相性价比较高的硬装材质,如石膏线、木饰面板。
②面积较大,可以多规划舒适空间,如主卧+衣帽间、书房等布局。

案例分享
《伊人》
- 设计风格:轻法式
- 半包价格:15万
- 项目面积:130㎡

△Before

△After



《南非国花》▽
- 设计风格:现代简约
- 半包价格:15万
- 项目面积:130㎡

△Before

△After




04、141㎡+。实话实说,对于面积在141㎡+户型来说,半包15万装修稍微有点紧凑,但是,也是没问题的。

建议少拆改,尽量不要大拆大改,预算打不住。轻硬装重软装,意思是在保证硬装质量的前提下,尽量少用硬装凸显风格,多用软装装饰,更省预算。少用施工费用贵的材质,如不常见规格的砖。

案例分享
《踏雪》
- 设计风格:现代风
- 半包价格:13万
- 项目面积:160㎡

△Before

△After



就像上图这个案例,户型没有大拆大改,但每个改动都在刀刃上,比如主卧改出衣帽间、阳台扩入客厅。
当然,可能也有小伙伴想说,“半包花15万,也够不上我的身家啊,钱根本花不完。”

(部分图片来源于网络,如有侵权,请联系删除)