项目概述
楼盘地址:融科金湖湾
户型面积:100㎡
风格设计:美式轻奢
户型结构:四室两厅一厨两卫
硬装设计:左佳莉
软装设计:罗满
整体费用:38w
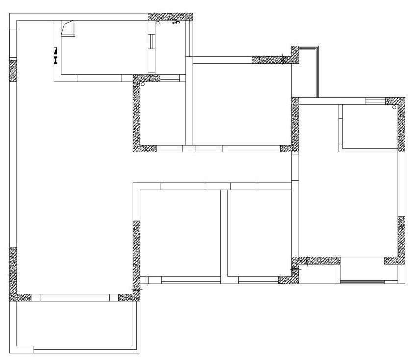
户型解析


色彩分析

玄关
独立的玄关总会让人有一种转换的心情,转角柜足够收纳一家三口的鞋品
卡座的设计方便换鞋

客厅
家人闲坐,灯火可亲,身边都是我们爱的人,我们在品尝着幸福
墙面运用上下分色,让空间感更强烈,
沙发形式才用围坐的摆放形式,使氛围感更好
一家人坐着谈天说地,同时客厅预留了电视和投影仪,功能性更强。






餐厨
当我们没日没夜忙碌的投身于工作时,一顿妈妈的饭便是我们最大的慰藉!
餐椅用了软包皮椅,坐感更舒适。
餐厅做了整面高柜,嵌入电器,方便妈妈做烘培,以及可收纳餐厅的用品和宝宝的零食。




走廊
走廊是我们每天会经过的一个空间,所以我们对走廊做了“手脚” 将它的入口改为拱形,
借助书房空间把走廊设计一个小拐角,在走廊尽头制作拱形,和入口相呼应。
走在这里,不会认为它只是一个简单的走廊,而更多的是让我愉悦舒适,通往更好的空间。


主人房
女主人喜欢精致的物品,脏粉色,墨绿色,都是她爱的颜色,
在软装上,设计师把女主人所爱之物巧妙的融洽了进去,
把原来飘窗位置的凹槽做了书架,飘窗自然成为了闲暇时的休闲之处。



客房
客房为偶尔来小住的父母预留,贴心的准备妈妈爱的色调。
搭配白色家具,整个空间便更加温馨。



儿童房
灰色/蓝色
一个稳重 一个童趣
是为了兼顾孩子的成长过程
在这里也祝小朋友在这里开心快乐的长大!


卫生间

