随着时代的进步,年轻人不再追求千篇一律的生活,而是追求个性,该项目的年轻人为主要消费群体来定位设计,给消费者一个沉浸式体验的红色之旅.同时也彰显了品牌的个性,在市场上脱颖而出。
宏姐串串香背景发源于成都,在设计种采用了竹子的元素来作为点缀交融到整体空间.以中国红为主要颜色来体现个性,它代表着年轻人的骄傲、热情、信念和梦想。

餐饮空间设计
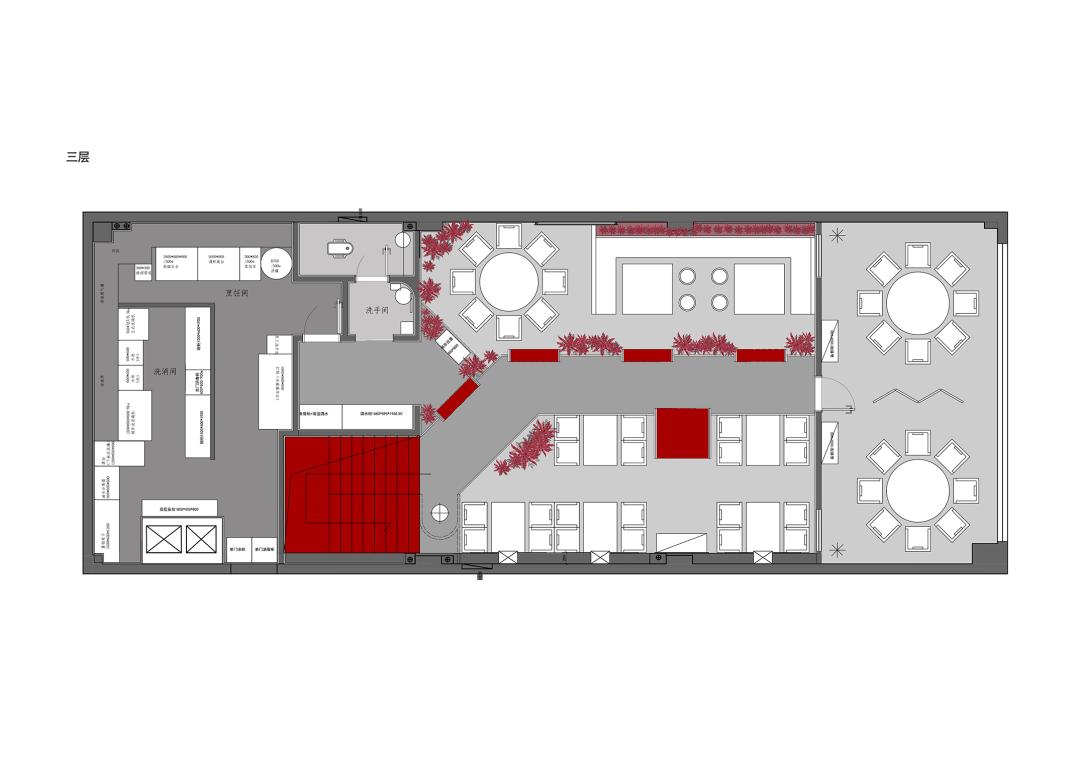
打破传统布局,从平面布置上更随意,没有明显的区隔与区域的划分,使空间随性感更强更轻松。

餐饮空间设计

餐饮空间设计

餐饮空间设计
在灯光的渲染下,连洗手间环境都充满潮酷与未来感。

餐饮空间设计
红色封闭式楼梯给人们一个打卡、探索的空间。

餐饮空间设计

餐饮空间设计

餐饮空间设计

餐饮空间设计

餐饮空间设计
(超美的)洗手间配备了约会应急区,更符合现代年轻消费群体。

餐饮空间设计

餐饮空间设计
选用不锈钢及不锈钢波浪板、微水泥、长宏玻璃等材料,运用各种不同功能性的空间里并融入了当下主流打卡元素。

餐饮空间设计
深渊隧道镜、IP、悬浮球、网红落日灯的运用,使得空间变幻无穷。

餐饮空间设计

餐饮空间设计

餐饮空间设计

餐饮空间设计
该项目成为周边年轻群体打卡地,细节的服务深入人心,用餐感受“潮”“酷”是周边时尚餐饮的代表。

餐饮空间设计

餐饮空间设计

餐饮空间设计
空间名称: 宏姐串串香 ,地址: 哈尔滨,来源:餐饮视界公众号,设计:善筑建筑装饰工程有限公司 赫英文, 图:善筑建筑装饰工程有限公司, 编辑 :餐谋长品牌策划/TOBBY
投稿私信:餐饮视界
让更多的人欣赏你的美