管法兰及其垫片、紧固件统称为法兰接头。法兰接头是工程设计中使用极为普遍、涉及面非常广泛的一种零部件。它是配管设计、管件阀门必不可少的零件,而且也是设备、设备零部件(如人孔、视镜液面计等)中必备的构件。此外,其它专业如工业炉、热工、给排水、采暖通风、自控等,也经常使用法兰接头。

GB国标钢法兰标准
国标法兰是指按中华人民共和国国家标准《GB/T 9112~9124-2010钢制管法兰》的规定生产的法兰片。
国标法兰标准由中华人民共和国国家质量监督检验检疫总局和中国国家标准化管理委员会于2011-01-10联合发布,从2011-10-01起实施的推荐性标准。
GB/T 9112~9124-2010一共包括了以下13项标准:
代替了国标GB/T9112-2000;GB/T10745-1989标准
GB/T 9112-2010 钢制管法兰类型与参数
GB/T 9113-2010 整体钢制管法兰
GB/T 9114-2010 带颈螺纹钢制管法兰
GB/T 9115-2010 对焊钢制管法兰
GB/T 9116-2010 带颈平焊钢制管法兰
GB/T 9117-2010 带颈承插焊钢制管法兰
GB/T 9118-2010 对焊环带颈松套钢制管法兰
GB/T 9119-2010 板式平焊钢制管法兰
GB/T 9120-2010 对焊环板式松套钢制管法兰
GB/T 9121-2010 平焊环板式松套钢制管法兰
GB/T 9122-2010 翻边环板式松套钢制管法兰
GB/T 9123-2010 钢制管法兰盖
GB/T 9124-2010 钢制管法兰
技术条件
我国现行的法兰标准分为两个体系,分别是PN系列(欧洲体系)和Class系列(美洲体系)。
本标准规定的压力标记分为PN标记和Class标记。
PN标记有12个压力等级,分别为:
PN2.5; PN6; PN10; PN16; PN25; PN40; PN63; PN100; PN160; PN250; PN320; PN400
Class标记有6个压力等级,分别为:
Class 150; Class 300; Class 600; Class 900; Class1500; Class 2500

法兰的材质:锻钢、WCB碳钢、不锈钢、316L、316、304L、304、321、铬钼钢、铬钼钒钢、钼二钛、衬胶、衬氟材质。
执行标准有GB系列(国家标准)、JB系列(机械部)、HG系列(化工部)、ASME B16.5(美标)、BS4504(英标)、DIN(德标)、JIS(日标)。

国标法兰和非标法兰的区别在哪?
1、国标法兰属于通用件,各种规格的法兰的外径、螺孔、厚度都是固定的。而且国标法兰考虑了安全因素,所以尺寸与厚度取的安全余量比较大。
2、而非标法兰一般是企业或者个人为了节约材料,或者就地取材,而自己设计的法兰。
一般非标法兰都会设计的比国标法兰小一点、薄一点,以节约材料,也可以更改密封面形式,比如用O型圈密封。
3、国标法兰市场上都能买到,非标法兰必须自己设计、自己加工。
4、非标法兰适用场合不多,比如一个设备筒体法兰工作压力只有0.3MPA,你觉得没必要用0.6MPA的国标法兰,你就自己设计一个小而薄的非标法兰,但是必须考虑自己设计与加工的成本要小于你节约下来的材料成本。
法兰类型和密封面形式


一、板式平焊法兰
板式平焊法兰(化工标准HG20592、国家标准GB/T9119、机械JB/T81):取材方便,制造简单,成本低,使用广泛;但刚性较差,因此不得用于有供需、易燃、易爆和较高真空度要求的化工工艺配管系统和高度、极度危害的场合。平焊法兰的主要设计缺点是它不能保证无泄漏。
密封面型式有平面和突面。

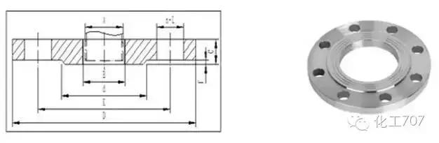
二、带颈平焊法兰
带颈平焊法兰属于国标法兰标准体系。是国标法兰(又称GB法兰)的其中一种表现形式,是设备或管道上常用的法兰之一。

带颈平焊法兰颈部高度较低,对法兰的刚度、承载能力有所提高。与对焊法兰相比,焊接工作量大,焊条耗量高,经不起高温高压及反复弯曲和温度波动,但现场安装较方便,可省略焊缝拍揉伤的工序。
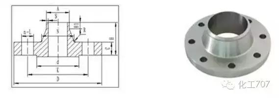
三、带颈对焊法兰
带颈对焊法兰全称带颈对焊钢制管法兰,也叫高颈法兰,英文名称:Slip-on 简称SO。
带颈平焊法兰同板式平焊法兰一样也是将钢管、管件等伸入法兰内通过角焊缝与设备或管道连接的法兰。

带颈平焊法兰的密封面形式有:
突面(RF)、凹面(FM),凸面(M)、榫面(T),槽面(G),全平面(FF)。
带颈平焊法兰的通径范围:DN10~DN600
适用范围:PN系列 PN2.5~PN40; Class系列Class150~Class1500
法兰材料:碳素钢、珞钼钢、304、316、304L、316L、321、347、CF8C。
制造工艺 :锻造。
优点:带颈平焊法兰也属于平焊法兰,因为有个短颈,从而提高了法兰的强度改善了法兰的承载力度。所以可以用于更高压力的管道上。
缺点:较板式平焊法兰而言造价更高,由于其形状的特点在运输途中更容易磕碰。
四、整体法兰
整体法兰是一种法兰的连接方式。也是属于带颈对焊钢制管法兰的一种。材质有碳钢、不锈钢、合金钢等。在国内各个标准之中,用IF来表示整体法兰。多用于压力较高的管道之中。生产工艺一般为铸造。

在法兰类型中就是用一个“IF”来表示整体法兰的类型。一般为突面(RF),如果在易燃、易爆、高度和极度危害的使用工况之中,则可以选用除了RF面之外的凸凹面(MFM)及榫槽面(TG)的密封面的形式。
五、承插焊法兰
承插焊法兰是一端与钢管焊接另一端用螺栓连接的的法兰。

密封面形式:突面(RF)、凹凸面(MFM)、榫槽面(TG)、环连接面(RJ)
应用范围:锅炉压力容器、石油、化工、造船、制药、冶金、机械、冲压弯头食品等行业承插焊法兰:常用于PN≤10.0MPa,DN≤40的管道中;
六、螺纹法兰
螺纹法兰是将法兰的内孔加工成管螺纹,并和带螺纹的管子配套实现连接,是一种非焊接法兰。它和平焊法兰或对焊法兰相比,螺纹法兰具有安装、维修方便的特点,可在一些现场不允许焊接的管线上使用。

合金钢法兰有足够的强度,但不易焊接,或焊接性能不好,亦可选择螺纹法兰。但在管道温度变化急剧或温度高于260℃低于-45℃的条件下,建议不使用螺纹法兰,以免发生泄漏。
七、对焊环松套法兰
对焊环松套法兰是可以活动的法兰片,一般是配套在给排水配件上,厂家出厂时伸缩节两端就各有一片法兰,直接与工程中的管道、设备用螺栓连接。

使用对焊环松套法兰的目的一般是为了节省材料,其结构分成两部分,管子部分一头和管道接,一头做成对焊环。法兰盘采用低等级的材料,而管子部分使用和管道一样的材料,达到节省材料的目的。
对焊环松套法兰的优点:
1、节约成本。当管材材质特殊,价格昂贵时,焊接同样材质的法兰成本高。
2、不便于焊接或不便于加工或需要的强度大。如塑料管、玻璃钢管之类。
3、便于施工。如连接时法兰螺栓孔对应不便于找正或者防止日后更换设备法兰螺栓孔有变等。
缺点:
1、承受压力低。
2、焊环处强度低(特别是厚度3mm以下时)
八、平焊环松套法兰
平焊环松套法兰盘是可以活动的法兰片。直接与工程中的管道、设备用螺栓连接。使用平焊环松套法兰盘的目的一般是为了节省资料,其结构分成两部分,管子局部一头和管道接,一头做成翻边,法兰盘部分套在翻边上。法兰盘采用低等级的资料,而管子局部使用和管道一样的资料,达到节省资料的目的。

平焊环松套法兰的优点:
1)方便于焊接或方便于加工或需要的强度大,如塑料管、玻璃钢管之类。
2)便于施工,如连接时法兰螺栓孔对应方便于找正或者防止日后更换设备法兰螺栓孔有变等。
3)价格高贵时,节约本钱。当管材材质特殊,焊接同样材质的法兰成本高。
平焊环松套法兰的缺点:
1)接受压力低。
2)焊环处强度低(特别是厚度3mm以下时)
九、法兰盖
法兰盖也称盲板法兰、盲板。是中间不带孔的法兰,供封住管道堵头用。作用与焊接封头及丝扣管帽是一样的,只不过盲板法兰和丝扣管帽可以随时卸下来,而焊接封头则不行。

密封面的形式种类较多,有全平面、突面、凹凸面、榫槽面、环连接面。
十、衬里法兰盖
衬里法兰盖是一种盲板法兰,接近介质的一边堆焊不锈钢,为1 个整体。衬里法兰盖用在有腐蚀性介质的管道上作盲板用。与普通法兰盖的区别是与介质接触面增加了防腐衬层。

法兰代号标记规定
PN系列

其中,b为法兰的类型
c为法兰的公称尺寸与适用钢管外径系列。若为A系列可以省略,B系列须在后面注明。另外,整体法兰、螺纹法兰、法兰盖的适用钢管外径系列可省略。
d为公称压力等级PN
e为密封形式代号
f为钢管壁厚,由用户提供。带颈对焊法兰、对焊环(松套法兰)应注明钢管壁厚
g为材质牌号
h表示其他。比如附加的要求
CLASS系列

其中,b为法兰的类型
c为法兰的公称尺寸
d为公称压力等级Class
e为密封形式代号
f为钢管壁厚,由用户提供。带颈对焊法兰、对焊环(松套法兰)应注明钢管壁厚
g为材质牌号
h表示其他。比如附加的要求