房子装修中有一句话,让我记忆深刻,因为喜欢所以深刻,所以在我很多文章案例分享中我都会提到:“放眼所有的装修风格都让人感觉到“平平无奇”,唯有新中式风让人眼前一亮”。
本期为大家带来的是一套精装房的改造,通过后期的软装、硬装设计,把原来普普通通的精装修打造出一个极具意境的新中式风格出来。我们一起往下欣赏吧。

总体介绍:
装修风格:现代新中式风格
实际面积: 130㎡
空间格局:4室2厅2卫
设计师:光影设计团队
项目位置:湖南长沙碧桂园
装修造价:估算费用23.58W
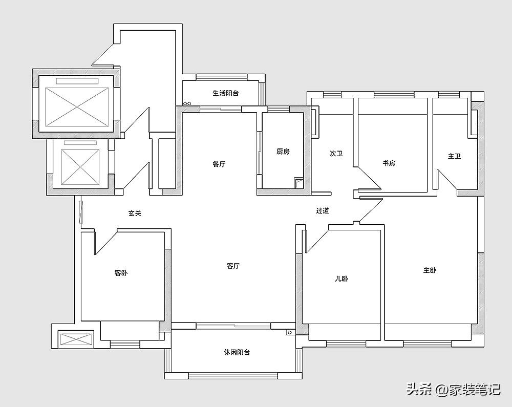
户型图

本套房子是精装房,一般精装房的户型格局还是比较好的,中规中矩的布局。房子有南北双向两个阳台,形成了南北通透的好朝向,家里面的通风效果自然也就很好。
平面设计图

由于房子是精装房结构,所以在整体的布局情况下,我们仅进行了微改,也就是微改造,变化的并不多。大致的平面布局改动如下:
1,拆掉了厨房的推拉门,直接只做门套,保持餐厅和厨房空间融为一体,这样空间更加的通透一些,弥补了厨房空间小的问题。同时餐厅的采光效果也会更好一些。
2,拆除客厅和阳台之间的推拉门,客厅阳台做了抬高的设计处理,这样看上去会更加的有休闲味一些。
3,总共四间卧室,分别作了:主卧室、儿童房、书房和客房的规划。
玄关


通过玄关地面瓷砖我们大致都可以看得出,这是哪个楼盘的精装房,这个老黄色的地砖开发商已经用出了名,全国所有的楼盘都是用的这款瓷砖,因为这个颜色被大部分的业主吐槽,但是始终没有换过。
前面跑题啦,回到正文上:这个玄关通过后期对软装和硬装的设计搭配,营造出了一个很有意境的入户环境出来。
客厅


新中式风格的客厅,端庄丰华恢宏大气,一股独特的东方韵味,散发出亦古亦今的层次之美,简洁雅致的新中式客厅,带给人一种舒适享受的感受。
首先我们看到的是电视墙的造型设计,护墙板做的对称式造型,中间一幅山水壁画,映衬出新中式的美。


沙发墙采用木线条和墙面的结合造型设计,中间一幅字画,让整体显得栩栩如生,也有了一些文化艺术气息。
品茶区


品茶区也就是家里面的客厅阳台,这部分区域做了抬高的处理,在抬高处还做了暗藏灯带的设计处理,看上去会更加的精致。
这种席地而坐感觉,更有休闲氛围感一些。
家里面来客人了,大人在这里席地而坐的喝茶,小孩子在客厅看电视,阳台和客厅做通的设计更加增加了两个空间的互动。
餐厅





餐厅的面积并不大,所以选择了做部分酒柜,没有做满墙到顶的柜子,这样会让整个餐厅空间显得压抑。
中间摆放一张六人位的餐桌椅,靠墙边一边做一组柜子,中间一幅画。
餐厅通过灯具、艺术画和定制柜还有餐桌来体现出中式的美。
生活阳台


生活阳台面积不大,刚好足够摆放的下基本所需的东西就可以了。
生活阳台的一边摆放洗衣机,另外一边摆放拖把池,顶上就装电动晾衣架,整个功能还是比较齐全。
主卧室



新中式风格的主卧室以简单大气为主,没有复杂的造型,通过简单的线条造型来构造出它的风格特色。
它的床背景通过线条的装饰,和壁灯的点缀,营造出新中式风格的对称美出来。

通过这个视角我们可以看出,由于飘窗是不能砸掉的,所以索性我们就利用起来,摆上飘窗垫然后摆放成品茶台,给了卧室一份休闲感。



床尾摆放梳妆台,梳妆桌上摆放一些装饰品来进行整个卧室空间的装饰点缀。顶面挂机是交付的时候就有。
为了避开床正对卫生间,在这两者之间做了一组柜子。