
30米进深的长方形空间,打造出的半开放式咖啡厅
这是位于上海老城区,五原路边的咖啡厅“聚福 Shanghailander”的室内设计。
The interior design of a café–Jufu Shanghailander–on Wuyuan Road in the heart of old town of Shanghai.

店铺外立面
半道路,半店铺丨Half Street,Half Café
设计区域是面向街道的里弄的平房部分,进深有30m,像一条昏暗的隧道。考虑到需要在纵深感很强的空间里做出咖啡店这种半公共性的场所,决定让门店积极地向街道打开。首先,为了把街道的氛围引进室内,把室内的一半做成了道路,另一半做成了咖啡店。入口的移门可以最大幅度开合,让街道与室内直接相连。
The café was once a one-story town house set between two typical Shanghai lane houses.It is unusually long at 30 meters in length,feeling like an endless tunnel when viewed from the street.When designing the café as a semi-public place with this deep space,we thought it ought to actively bring in visitors to explore.In order to create the atmosphere of a street inside the café,half of the interior is designed of the street,the other half as a café. The entrance doors can slide together,seamlessly connecting the sidewalk and the café.

室内的一半做成了道路,另一半做成了咖啡店
设计一条道路丨Designing a Street
室内的道路设置了18米长的长椅,来迎接过往的行人。将长椅背后的墙壁和周围的建筑外墙处理成同一种质感,模糊了室内外边界。在室内的尽头新设了一个大天窗,引入自然光照亮深处。以上都是把街道氛围引入室内的一些尝试。长椅边的桌子和椅子没有一件是重复的,呈现出多样性开放的态度。
Along the wall of the café,representing the “street” side,an 18-meter wooden bench extends inviting those on the sidewalk to walk in.The interior wall behind this long bench,is designed in the same way as the exterior faade of typical Shanghai lane-houses,thus extending the outside into the inside of the café.At the far end of the café where this internal street ends,a glass-ceiling patio draws in natural sunlight.This further enriches the concept of the design–blurring the exterior and interior- and makes the inside more welcoming.Every single piece of furniture along the “street” is different which defines the space,allowing individuals to find their own space.

从室内望向街道

长椅就餐区

室内尽头设有大天窗
小屋似的咖啡厅丨A Cottage-like Café
长椅面对的是细长型的咖啡店。小屋似的店铺从入口处延伸到内部,增强了室内的纵深感。在吧台上方悬挂着咖啡店的logo,营造出店铺和道路的关系。吧台和层架是用多层板制作的,配上鲜艳的色彩,令人产生愉悦感。
Opposite the“street”side,a cottage-like shop is the coffee counter,its logo hanging above the counter,facing the “street” portion to further emphasize the street-café relationship.Like a cottage,the coffee shop is constructed with plywood and painted in vibrant shades of reds and greens to brighten up the venue.

吧台

商品展示区
城市的天井丨The Patio of the Town
在道路的深处,有一个充满自然光酷似天井的空间。那里有一张大的翡翠桌和一排书架,让人平静。尽头的墙边摆着红宝石色的钢琴,音色可以穿过室内,余音缭绕至街道。红地毯般的地面象征着音乐和街道的相遇。希望这个咖啡店能给街道增添一抹新的色彩,得到人们长久的喜爱。
At the far end of the café there is an open space filled with natural light,a large jade table and wall-to-wall wooden bookshelves.A crimson piano can be found here,its sound spilling out over the tables and as far as the sidewalk outside,catching the attention of those passing by.From the piano to the sidewalk outside,the floor is painted like a red carpet,a symbol of the encounter of music and the town.We hope this café will color our lives and be loved for years to come.

充满自然光的“天井”空间

阅读区

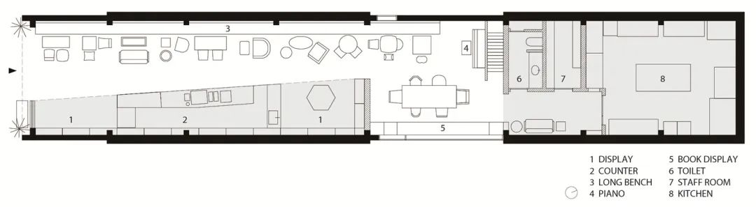
轴测图

平面图
项目信息——
项目名称: 聚福五原路店
设计公司 :一岸建筑
地址: 上海徐汇区五原路
时间:2019.11-2020.03
面积:157㎡
摄影:Alessandro Wang
Project information——
Project name: Shanghailander Wuyuan Road
Designer : OFFICE COASTLINE
Time : 2019.11-2020.03
Adress: 92 Wuyuan Road, Xuhui District, Shanghai
Area: 157㎡
Photographer: Alessandro Wang

只有48㎡的快闪店,究竟用什么征服了年轻人?

青山周平操刀设计,网红咖啡品牌%Arabica再开新店

这或许是兰州最前卫的理发店了吧!

鲜鱼口又多了一家精品咖啡店,仅30㎡

“宇宙中心”的非典型商店
