农村建房,造价这一问题非常受关注,现在农村盖房要多少钱才够?4、50万可以盖一栋什么样的房子?
而今天这位周先生的投稿,详细记录了建房期间的各项支出,只为帮助广大建房朋友做一个参考,话不多说赶紧来看看!

周先生言:
大家也许听说过"山清水秀,美景如画"的千岛湖,我家就住在千岛湖境内的一个小镇上,境内环境优美,空气新鲜,非常适合养老。
这次建房,考虑了许久才决定拆旧建新,由于我家的老宅还是父母在1994年建的砖混双拼房。当时经济所限,房屋布局不合理,水电配套设施不完备,已经满足不了日益提升的生活需要。
跟家人商议后决定重建新房,2019年过完春节,我们兄弟两个就向村委递交了拆旧建新的申请。取得村委同意后,开始拆除旧房子,两兄弟对原地基分配后,各自独立建房。

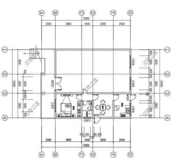
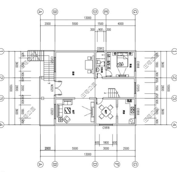
平面布局图:
一层是独立的老人房+大车库,外楼梯阳台至二屋设入户大门,二、三层为生活空间。

我们是三口之家,房屋占地面积不能超过140平方,檐高不高于10米,按这一限制条件,房屋一层层高3.3米,二层层高3.3米,三层层高3米。
屋顶现浇后,用杉木搭建四面披水的木屋架挂瓦作坡屋顶,既能隔热又防水。


由于我长期在外工作,建房上的事情只能依靠大舅哥(我老婆哥哥)来帮忙。大舅哥平时就经常承包一些小工程做,在这方面有着丰富的经验。
第一点,感谢建房期间大舅哥的辛苦付出,没有他的帮忙,房子不会建得这么好。
第二点,我有做一个非常详细的建房清单,给大家一个参考,看看现在农村盖房,到底要多少钱才能够!

关于施工
房子从2019年2月23日掀瓦拆旧房,2020年1月14日新房竣工,历时近11个月。
请来的施工队包工不包料,木工支模按50元/建筑面积收费,砖瓦匠按160元/建筑面积收费。

堂屋设计

大舅哥对房屋的监理很严格,无论天多热,他都从早陪工匠到收工。
现在农村建房砌墙一般灰缝都不饱满,墙体牢固性大大减弱,存在安全隐患。针对这一弊端,和砖瓦匠协商后,同意每层䃼400元,保证砌墙灰缝饱满,大舅哥也始终监督砌墙施工保证质量。

由于我家后面是山,挖地基后需先浇3米高的地坪,地坪浇好后再做基础,基础采用双层钢筋筏板基础,不在包工之内。
3月初完成基础养护后开始动工砌墙,在保证养护的前提下,基本在一个月左右的时间完成一层的浇筑,到6月底主体盖瓦封顶。
主体完工后,接着是墙、地砖铺贴、房屋装潢、安装等工序。

我家一层厨卫都是瓷砖铺贴到顶,其它地面是水磨石,墙面是刮好腻子后涂刷水漆。
二层厨卫、堂屋、客厅也是瓷砖铺到顶,主卧铺的是木地板,墙面是腻子粉+水漆。

三层主、客卧铺的是木地板,墙面也是腻子粉+水漆。
卫生间是瓷砖铺到顶,楼梯用的是防滑瓷砖,墙面铺了1.2米高的瓷砖。
主、客卧间的通道也是用的瓷砖,外墙正面一层铺贴了文化石,二、三层用米黄真石漆喷涂,由于我家位置不显眼,外墙侧面只刮了毛墙。

到这一步,我的房子就算是介绍完成了,三层楼的设计很实用,父母孩子都有自己的独立住处,下面便是大家最关心的造价问题,我也会详细讲解我的这栋房子到底花了多少钱建成!

孩子卧室与衣柜。

造价详解:
我的房子是从2019年2月23日开始建造,刚好可以跟18年的建材做一个对比。
2018年,我家这边的点工工资是220元/天,2019年涨到了240元/天。
水泥钢筋维持在18年的水平,钢筋3520元/吨,海螺425水泥530元/吨,325水泥490元/吨。
到了年底的时候水泥涨幅较大,325水泥640元/吨,红砖0.84元/块包到场。

到房屋竣工,材料款大致如下:
钢筋48000元,水泥42316元,红砖31421元,沙石料41610元。
模板、杉木14360元,瓷砖(含文化石)32700元,入户门、户内门29318元。
电动卷闸门2850元、窗户21000元、大理石29000元、木地板及内楼梯扶手14400元。
电线4523元,灯具、洁具(同一店购买)10350元,实木橱柜12200元,集成灶5500元。
油漆材料14000元,阳光房(9000元露台搭建),阳台、阳光棚及外楼梯扶手共20500元。
窗帘6000元,墙院大门、栅栏共8800元,其他零星水电五金没作细致分类统计。
人工工资如下:
挖机台班费7900元,砖瓦匠74760元,木工29900元。
瓷砖铺贴工17300元,瓷砖美缝5900元,水电工17000元。
油漆工11520元,水磨工5800元。
总造价接近70万元。

最后总结
虽说我在外工作没办法顾及建房,但建材上的花销希望大家可以跟我一样详细记账。养成记账的习惯有利无弊,从基础到主体落成,每一笔支出我都详细记录,这样做可以掌握个人或家庭收支情况,合理规划消费。

2020年1月16日,农历乙亥年十二月廿二,趁打工回家休假,举行了新房乔迁仪式,主家在堂屋摆上酒席,工匠坐上席,感谢各位大哥的辛苦付出。
这就是我的建房故事,平淡且真实,农村盖房早一年开工可能会便宜很多,大家最近若是有建房想法的话,那可要抓紧时间屯材料了,能省一点是一点!
关注本号,每天都有建房案例可参考,还有1000套自建房户型图等您来挑选!