关注我们,关心芳香产业!
天美生物甘肃玉门子公司——百美康生物工程计划新建香紫苏系列产品生产项目,年产能680吨,产品包括香紫苏浸膏、香紫苏醇、降龙涎醚等。近日,该项目环评文件获得批复。

据酒泉市生态环境局7月11日公告,甘肃百美康天然香料香紫苏和天然益生元水苏糖系列产品生物制造项目(一期)的环境影响报告书已通过该局审批。
批复文件显示,该项目总投资1.2亿元, 建设地点位于玉门东建材化工工业园化工产业区,规划了四条生产线,共计生产香紫苏系列产品680吨/年。
该项目环评文件进一步表明,680吨年产能中 包括150吨香紫苏浸膏、200吨香紫苏醇、150吨香紫苏内酯、80吨降龙涎醚、100吨降龙涎二醇。


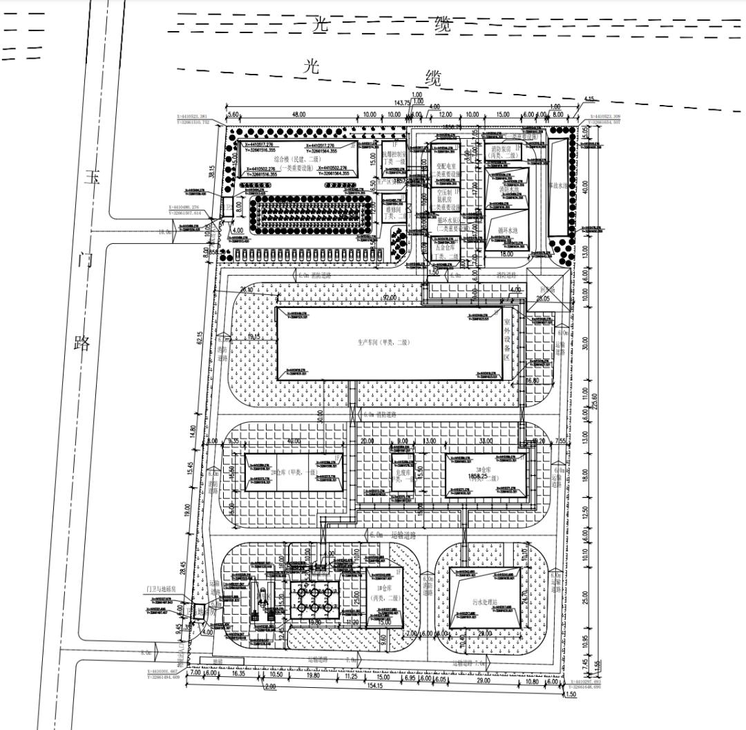
另据玉门市自然资源局公示的信息,该项目规划用地面积33330平方米(50亩),总建筑面积7568.16平方米。建设内容包括一个甲类生产车间、三个仓库、一座综合楼以及污水处理站等配套设施。
项目总平面图

甘肃百美康生物工程有限公司由西安天美生物科技股份有限公司独资设立,成立于2020年3月。上述项目中的所有产品,都须执行天美生物内控质量标准。 百美康生物工程总规划用地168亩,分两期建设,除了上述项目(一期),未来还将建设水苏糖系列产品项目,占地面积约为118亩。

天美生物
天美生物是一家天然原料生产商,产品包括薰衣草油和香紫苏油等天然香料,鞣花酸、根皮苷等单体活性成分及石榴提取物、水飞蓟提取物等植物提取物。在此基础上,该公司还向下游延伸,开发了水苏糖固体饮料、微生态洗发液等营养保健品。2021年6月,天美生物在美国纳斯达克证券交易所上市。
关注“华杰香料科技”公众号,紧跟全球香精香料行业实时动态!

“华杰香料科技”公众号文章