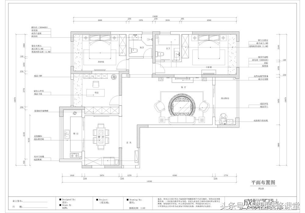
建筑面积:136㎡
使用物料:软木地板、PU线条、无纺布壁纸、彩色乳胶漆、仿古砖、大理石等。
设计时间:2016年7月
完工时间:2017年1月
主材:
地板:欧家软木地板
灯具:嫣然家居
瓷砖:曼联
墙纸:德国玛堡
洁具:高仪
木门:青田
冲淋房:福瑞
空调:格力
散热片:暖福居



















个人感觉:作品总体还不错,软木地板是亮点,那个葫芦灯一看就知道是哪家的了

不喜欢的地方:餐厅家具,书房家具。感觉不是很搭
更多案例搜【西安装修课堂】关注
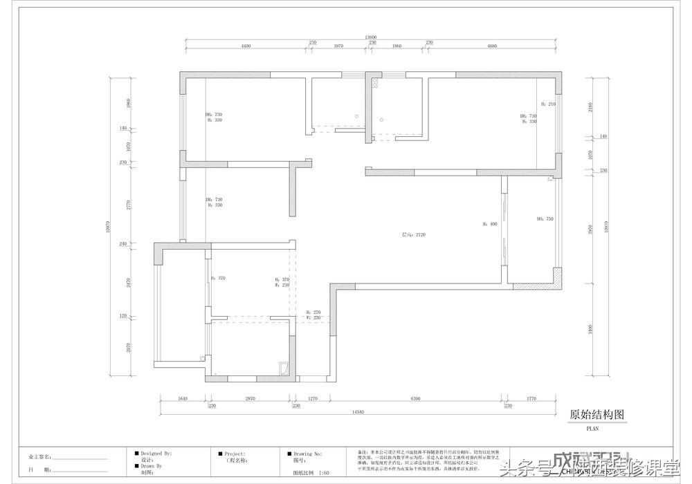
建筑面积:136㎡
使用物料:软木地板、PU线条、无纺布壁纸、彩色乳胶漆、仿古砖、大理石等。
设计时间:2016年7月
完工时间:2017年1月
主材:
地板:欧家软木地板
灯具:嫣然家居
瓷砖:曼联
墙纸:德国玛堡
洁具:高仪
木门:青田
冲淋房:福瑞
空调:格力
散热片:暖福居



















个人感觉:作品总体还不错,软木地板是亮点,那个葫芦灯一看就知道是哪家的了

不喜欢的地方:餐厅家具,书房家具。感觉不是很搭
更多案例搜【西安装修课堂】关注