亲子宅是一个大人与小孩共同成长的地方,打造一个亲子宅,给孩子足够的玩耍空间,让他有跑的开的地方,大人也有安静的、不被打扰的区域,大家系平等独立,又能随时沟通。

有了孩子后,所有城市中的咖啡店、小酒馆,便不再是年轻夫妻恣意流连的场所,但升格为爸妈的他们,依旧渴望有个除了能够听见孩子欢笑,同时也能够如往常享受雅痞生活的居所。高雄Lucas与Kelly家,便是在照料孩子与约会的情境之间,对于生活的平衡诠释。

属于家人的美好风景
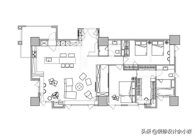
Lucas与Kelly是对热爱烹饪的伴侣,两人于国外旅行而结识,如今成家,拥有一双可爱的女儿,并决定定居高雄。由于孩子们尚未进入学龄,设计之前,夫妻提出了开放式厨房的需求,希望在烹饪时,也能够同步掌握孩子于客厅的动态,并且将客厅打造为专属孩子的天地。客厅采用了懒骨头形式的沙发,以圆几等较低尺度的家具,使空间视觉更为通透,而客厅天花板则以木隔栅 做为简约而和谐的细部区隔,当孩子渐长,木格栅下方的空间,提供有如小图书室的阅读空间。


客厅窗景为一家人勾勒出生活的轮廓,亦为*界无**限空间的设计重点;当每个人一回到家,视线便会不由自主落在大面窗引入的风景,窗边所打造的舒适卧榻,让Lucas总可在此处欣赏城市的晴雨天光,而Kelly也总能抱着电脑倚坐,伴随一杯咖啡享受午后的书写时光。



餐厨构筑美味生活
厨房与餐厅,无疑是这个家的一大重头戏。
热爱料理的男女主人,两人时常一起做菜,依照业主性格,我们发想了摩登而内敛的现代风格。黑色马赛克磁砖铺排的中岛与厨房背墙,伴随乐土施作的灰色天花板,带点冷调与酷劲,在植入天空蓝木纹板打造的高柜之后,搭配几盏水泥质感的北欧吊灯,便提升了此处的暖度;一张木质大长桌的存在,则是犹如展开的画布,低调衬起每道料理的色彩。
餐厨运用以蓝色为主调的各异质材,书写空间层次,譬如,厨房通往阳台的门,是可挂起S勾展示厨房用具的冲孔板,其孔洞兼具通风、收纳效果,提升美感与实用性。




隐藏式的创意基地
为了培养孩子的创造力,我们在家的各处,打造可让孩子创作的秘密基地,譬如玄关的乐高作画,让小朋友可动手拼贴,提高对色彩的敏感度,客厅也有一道黑板墙,总绘有可爱的卡通人物对孩子招手,也激发孩子们随手涂鸦的兴致。


至于小孩房,有别于一般家长会满足小女孩的粉红色,我们以鲜明而中性的蓝、绿、黄色调,运用于房门、柜体,并搭配水泥墙面的灰,打造多彩却令人感到安定的空间,至于衣柜柜面的趣味造型层架,赋予空间令人玩味的视觉变化,除了满足孩子不同阶段的收纳需求之外,也藉由物件的摆放,让孩子诉说自己的故事。





随着她们长大,这个小小城堡,将会长成属于她们的模样,而我们不难想像,那时Lucas与Kelly,依然会在厨房中岛,于深夜一起忙着张罗红酒与宵夜的美好景象。

02
自然派空间 - 一家子的创作乐园


现代人生活紧凑,家人相聚时刻更显珍贵,Stone夫妻对新居装潢最大的诉求,就是自然开放、鼓励孩子创作,并想为家庭成员营造更多亲密感。当一般住家格局,往往赋予客厅最大的空间时,Stone与太太,却与设计师激荡出另一种可能。


最美的风景 - 处处都是心头好
设计前期,夫妻俩希望以孩子活动场域为主要考量,让孩子乐在游戏、享受学习,而父母在忙碌的工作之余,也不错过孩子每一刻的成长,在来回讨论之下,「阅读游憩区」的想法逐渐形成。 Stone一家人走自然派路线,开放、随性,男女主人热衷园艺生活,女儿也就读鼓励孩子手作的华德福幼稚园,平常会捡拾枯枝、落叶、种子,手作饰品、布置季节餐桌。
一进入Stone家,看到的并非客厅,而是1*坪9**的阅读休憩区,以一张温润的木长桌定调,这里是Stone夫妻时常陪伴孩子「动手做」的创作场域,上方悬吊结合照明与展示功能的FavouriteThing灯饰,可在灯罩里随心摆放女儿的劳作作品。而进门右手边的黑板墙,是家人的留言板、是孩子的涂鸦的天地,更是女主人的食谱笔记本,为全家提供随性的互动空间。




开放式中岛 - 拥抱相聚的时刻
厨房中岛作为从公领域过度到私领域的中介,几处点睛设计,巧妙将阅读休憩区与小客厅的动线串连。中岛四周的收纳设计,让女主人可恣意摆放调料、料理书,为家人创作各式各样的料理,格状柜体设计,与家中所有书柜的造型相呼应;中岛上方,充分利用空间的高度,打造带有点工业风的黑色铁网收纳架,作为视觉重心,并随意栽种植栽,让绿意从阳台、阅读区的绿色调柜体延伸到厨房,收拢了家人喜欢的各种元素,也作为与家人相聚的料理舞台。



全家人的游乐场
家中的溜滑梯,是小女孩一人独享的天地,活动式溜滑梯设计了卡榫,可收放自如,不需要时可收起来,增加阳台空间,而阳台设计的秋千,伴随错落摆放在的植栽,更是空间里美好的端景。当下班后,Stone坐在秋千上,看着老婆与女儿一同弹奏钢琴时,关于家的风景与梦想,都在眼前实现了。










03
景框里的框景 - 达丽胡宅


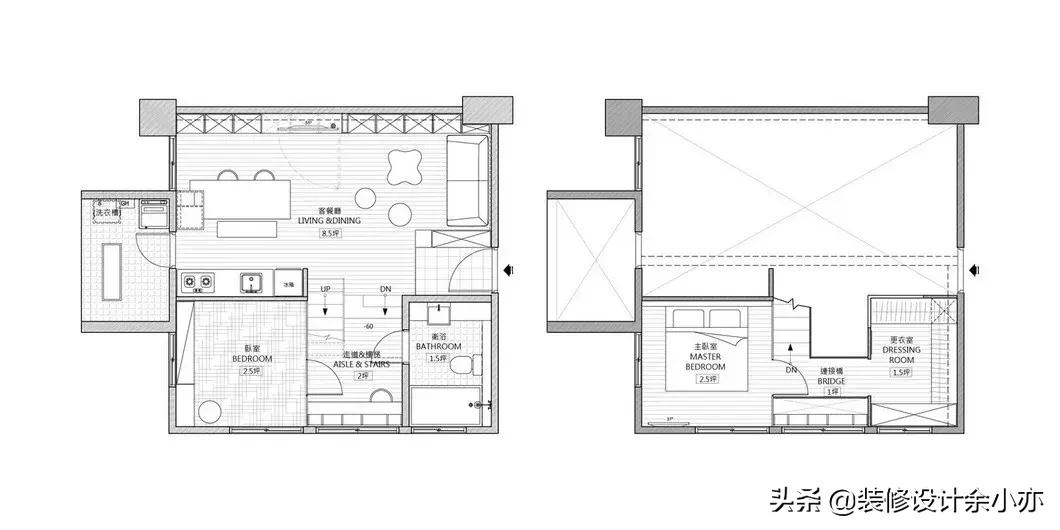
步入12坪的空间,在站立于玄关时已能望见后阳台通透的光线,毫不造作的划分空间机能,位于右前方的客餐厅,是未来会承载最多家庭记忆的空间,让光线恣意地顺倚着厨房,洒落一家三口对于家的想像,带出那些松木质调的朴实、绿色调的和谐,以及白色烤漆墙面的简单幸福。



以往,住宅的夹层空间总用来保留最基本的三房两厅及收纳需求,此案更着重于增添行走经验时的视觉感官趣味,主动线楼梯结合过道形成空桥面,串接2.5坪主卧与1.5坪更衣室,两者正好为相对紧密的连续机能,主卧实墙保留私密性,仍不忘留下光影的痕迹,将客餐厅最重要的框景伏笔埋于更衣室的角窗,亲子和式空间收纳于主卧之下,卫浴则为更衣室之下,上下空间俩俩相对相邻,进而将梯下空间转换为另一穿越过道,在上下过道空间的挑空面,皆运用松木夹板打造书墙,除扩展空间尺度感以消除压迫外,也能创造视觉轴线上的延续。











住宅最外层以窗框景,内层以虚实门里门外创造景框,将高度的使用弹性充斥其中:客厅中的电视机可以滑轨弹性旋出,也可收纳回墙面维持面对餐桌的水平视角,取代以往的独立电视墙设计,壁面上的收纳柜空间按装隐藏式把手设计。让厨房与客餐厅维持宽敞俐落,各空间看似独立,实则紧密,以绿色贯串空间对话,日式塌塌米地板的抹茶绿与主卧墙面的绿相融,黑板的深绿与客厅收纳柜缘衬底的绿对望,时间也成了胡宅景框内的构图元素,随生活会不断改变、重新安排与定义,塑造出生活样貌最纯粹的框景。



--------------小亦温馨提示-----------------------
喜欢文章中的装修风格吗?不妨来和保驾护航的设计师聊聊,我们将竭尽全力免
费为您提供装修设计、装修报价等等!