现在的年轻人都非常有自己的主见,对于未来的期望不仅明确而且执着,这套两室新房在父母的重重阻力下,终于入住了。因为在父母眼里,这样的装修不仅“难看”,而且“过时”,但是却不知道,这才是年轻人想要的样子。

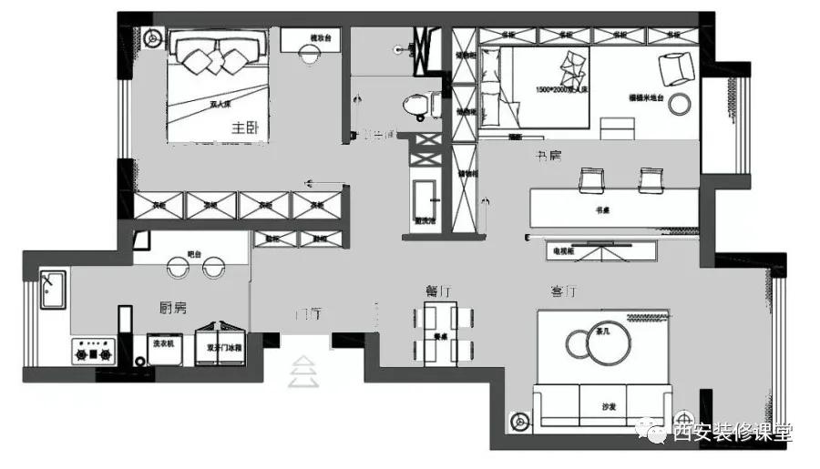
▲原始结构图,户型可以说非常完美了,这么大面积两室在目前的刚需房里头算是奢侈户型,基本类似户型,都是三室的格局,非常拥挤。
缺点基本不明显,只需要局部微调就可以让整体完美。例如厨房带一个洗衣阳台,但是厨房就比较小,可以融为一体或者中西厨分割,满足更多厨房收纳;因为是婚房,客餐厅共用空间,显得空间狭小,而且小两口想要一个自己的藏书地方,这些都需要一一满足

▲平面设计图纸。首先打通厨房与洗衣间,把中厨移到洗衣间,做了中西厨的分割,同时西厨满足了冰箱洗烘机的收纳,还成就了小两口的情调吧台;进门直对新砌墙实现镶嵌鞋柜,满足基本的进门收纳;移动了主卫墙体以及主卧门洞,实现了主卧的通墙衣柜定制以及干区的扩大;砸掉次卧与客厅的实墙采用玻璃通透的做法,让空间互相通透又各有隐私,打造榻榻米兼顾书房的做法,满足小两口的藏书需求

▲进门直对新砌隔墙满足鞋柜的镶嵌定制,一般上下镂空满足基本的收纳,另一半通柜布局,满足进门随手挂衣需求,保证空间的时刻整洁;白色平板与木色的套色干净清新

▲鞋柜墙面与干区门洞以及次卧电视墙平齐,利用局部墙面全身镜布局,既满足了功能,又能让视觉更有通透感;灰色的水泥砖通铺,耐脏防滑而且有质感

▲客厅全景,砸掉次卧实墙采用玻璃隔断取代,让空间互通,视觉更加开阔;原木的电视柜布局,并不影响电视的布局,次卧里头备用布帘,时刻可以保证卧室的隐私需求

▲客厅看次卧,整面墙玻璃通透,书房空间一览无余,放大整体空间的同时,更时尚前卫

▲灰色布艺沙发搭配黑白配小圆几,采用灰色地毯提升空间层次,两幅简笔挂画靠墙随意布局,更有高级感

▲客厅看餐厅以及门厅空间,为了让视觉上更有新意,餐厅局部墙面采用灰色色块涂刷,让餐厅更有聚集点,同时空间上又能时尚多彩

▲黑白色与原木的和谐共处,也是刚需房最好的配色了

▲墨绿色单椅点缀,提亮空间,与白色暖气片对比,和谐简洁

▲纯白色的餐桌椅简单搭配,木质长条灯具温馨点缀,满足日常所需,也可以让狭窄过道不显得那么压抑

▲全景布局,无主灯视觉更简洁;餐厅清新挂画点缀,恰到好处,凸显业主品位

▲主卧床尾打造一面墙白色平板衣柜,满足收纳,床头背景黑灰色乳胶漆涂刷,对比提升空间层次,淡粉色窗帘温馨柔和

▲一面墙的收纳柜满足了更多储物可能,滑轨灯的点缀提升晚上灯光层次

▲黑色小推车代替床头柜,实用时尚,侧面空间还容纳了女主的电子琴的布局,完美

▲黑色的床铺以及配套的床头柜,吊线灯温馨灯光营造睡眠氛围

▲次卧打造榻榻米储物兼顾睡眠,整面墙书柜的布局,满足业主的所有的藏书需求

▲夜晚的灯光下,木质的温润让次卧温馨温暖

▲背景依然延续黑灰质感,提升空间的视觉层次

▲靠近飘窗的角落是休闲看书的地方,懒人沙发慵懒舒适,捧一本书可以消磨好多闲暇时光

▲靠近电视墙书桌布局,满足办公和读书所需,一个空间兼顾多种功能,实用而且不失颜值

▲原来很小的洗衣阳台做成了中厨空间,虽小但是刚好满足功能,高低台更利于平时的操作;靠窗隔板收纳,利用空间而且不影响采光

▲原来的中厨改作了西厨空间,一边满足冰箱放置,同时满足洗烘机的镶嵌,台面可以满足更多操作使用

▲白色的墙砖搭配木质的柜体,清新柔和,刚好满足两人同时操作

▲西厨的另一边打造木质的地柜,延伸台面实现了一个吧台休闲空间,墙面白色墙砖与黑色乳胶漆对比搭配,木质隔板简单满足酒品的摆放,拿取也非常方便;旁边角落利用铁艺的置物架满足小家电的放置

▲优雅的小吊灯营造吧台区休闲氛围,平时可以品酒,也可以满足就餐需求

▲中西厨独立又互为一体,满足不同的空间操作和功能

▲卫生间延续灰色的布局,干区利用涂鸦瓷砖做了壁龛收纳,大胆的色调提亮空间,也体现了年轻人的个性

▲两人位的洗漱空间以及温润的木质台面布局,洗漱区也变得温馨,超大镜柜定制满足洗漱区的整洁
