项目位于杭州市富阳区洞桥镇贤德村后山坡地上,原址为三幢残破倒塌的石房与土屋,本次设计通过重新梳理原有场地关系,盘活闲置建设用地,重塑原有建筑,使其成为野生君(Grow wild)研学营地“嘟嘟村”的重要组成部分,其功能包含了泥瓦坊、茶艺坊以及陶艺吧三大部分,总建筑面积约为300㎡。
▼建筑外观,

▼项目区位图,

二、与自然对话 • Dialogue with nature
富阳自古以来,以山水闻名,正如元代画家黄公望的《富春山居图》所绘,洞桥也不遑多让。因此,在设计之初便有了使建筑内外密切联系,让建筑空间与自然对话,令四季美景尽收于建筑使用者眼底的想法。
▼项目鸟瞰图,


基地位于贤德村后山坡地上,是全村的制高点,具有极其宽阔的视野。游走于场地与建筑之间,由低到高,当你正在泥瓦坊一楼,可近观中央草坪区的草长莺飞、银杏叶黄、竹叶摇曳和后院石壁奇秀、树影婆娑;当你站在茶艺坊二楼,站在室内、露台和观景盒子,将欣赏到远山如黛,层峦叠嶂,延绵不断,村庄炊烟袅袅,将感受在三四月的田野遍地绿色的勃勃生机,在八月的田野漫天金黄的丰收喜悦。
▼建筑原貌


▼设计演绎,

▼由庭院看向泥瓦坊,

三、与场地对话 • Dialogue with the site
场地位于村庄后山坡地上,依据场地现状与业主要求,将原始坡地处理成为两个台地并分别与两栋建筑的一层标高相衔接。其后是山体石壁以及竹林,其前则为宽阔的观景平台和依据地势设计游步道以及供学生嬉戏的大草坪,山坡之下则为村庄的农舍,远处则是田野和远山。
▼泥瓦坊近景,

场地三面为村舍,都是小体量坡屋顶传统的江南民居建筑,因此项目实施的过程中,遵循原有传统村落的肌理及空间的结构层级,使项目成为成为整个村庄有机生长的一部分。
▼泥瓦坊的“观景盒子”

项目保留了从原先荒废后场地里顽强生长起来的七棵乔木即四棵银杏树、一颗枇杷树及一棵苦楝,使其成为场地与建筑的重要组成部分,它们也是项目业主野生君团队“野蛮生长”的办学理念的真实写照。七棵树或与建筑相互倚重,相映成趣,成为场地的一道道风景,或成为建筑内庭的主角,与建筑融为一体。
▼与周边村落建筑融为一体的新建筑,

四、地域性营建技术的应用 • The application of regional construction technology
▼由乡间小巷看向建筑,


▼建筑二层的木制平台,

五、传统与现代的设计手法的碰撞 • The collision of traditional and modern design methods
项目整体布局和空间组织采用了中国传统建筑的园林式布局方式和空间处理方法。场地东南入口处的曲折迂回,欲扬先抑;中央草坪区因草为水,以木为桥,曲径通幽;后院是石壁密林;前院大树参天;建筑室内对于室外景色近借远用,置庭入内;在场地内整个漫步过程中,随着时间和光影的变化,树木和建筑交替出现在眼前,得景随行形成一幅幅的风景画面。这些设计手法既是中国传统的,又与现代建筑中的漫步空间或流动空间等现代建筑设计手法有着异曲同工之秒。
▼由二层阳台看向周边建筑,

▼建筑一层室内空间,

中国传统园林中讲究的是天人合一,通过可以灵活打开的槅扇,把室外的自然都引入室内,在本项目的设计中,继承和发扬这种理念,通过现代建筑的技术手段和方法如落地玻璃窗、大转角窗以及取景盒子将场地周围秀逸的自然风光引入室内,包括有树林、石壁、稻田、远山等。同时将传统的大挑檐坡屋顶建筑形体和现代的几何体通过现代几何形体构图方法融为一体,既传统又兼具现代特征。通过将传统的石墙、夯土与现代的铝板、玻璃碰撞结合,实现了传统和现代营建技术、材料的相融合,为当下建筑对乡村文脉的传承做了有益探索。
▼建筑二层室内空间,

▼剖透视图

▼总平图,

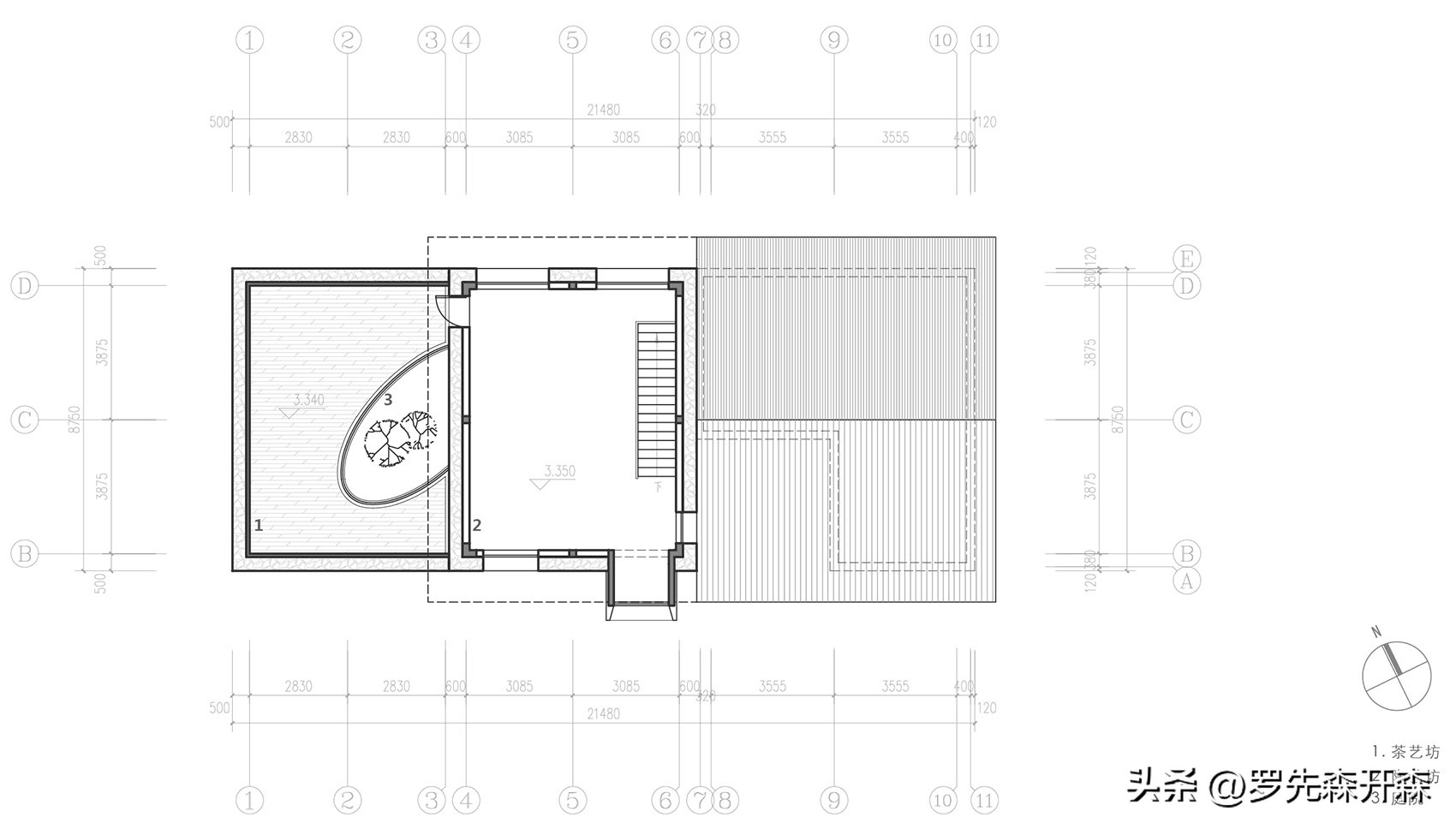
▼一层平面图,

▼二层平面图

▼屋顶平面图

项目名称:野生君乡村研学和劳动教育营地项目类型:乡建设计方:乐匠建筑工作室联系邮箱:1564659201@qq.com项目设计:2020完成年份:2022设计团队:陈益龙;陈狄;黄炜;王雪如;赵康;沈继煊项目地址:杭州富阳建筑面积:300㎡摄影版权:陆伟杰
