天空喝了我放在窗口的酒
醉了臆想,红了脸颊,成了晚霞
偷看着这世间最温柔的万物
The sky drank the wine I put in the window
Drunk imagination, red cheeks, into the sunset
Peeking at the tenderest thing in the world
小区信息:招商小石城玉兰
项目面积:182平方
设计机构:雅私阁装饰

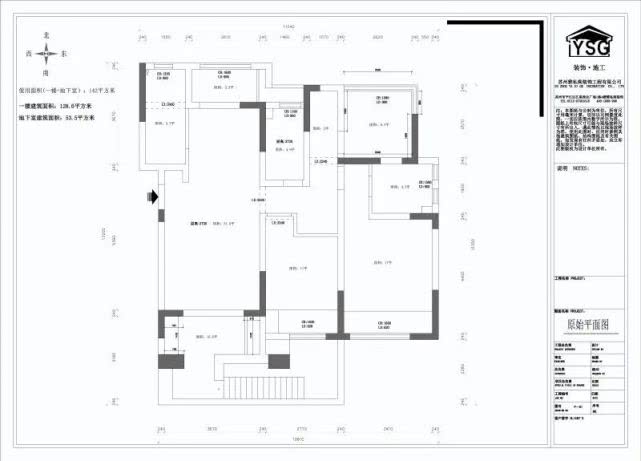
原始结构图

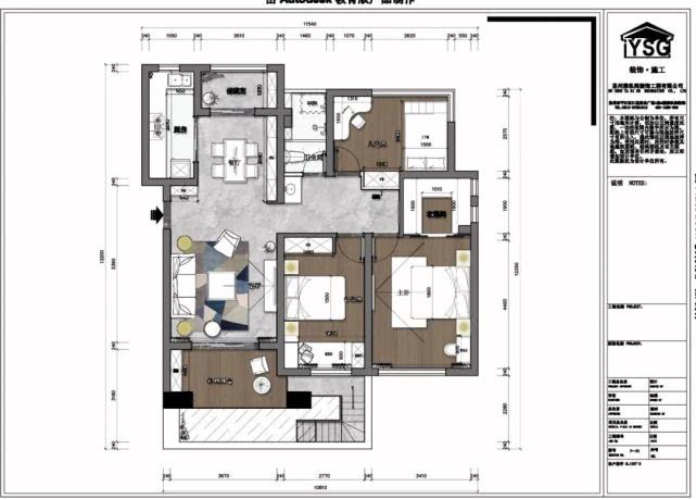
平面结构图
设计思路
设计师结合业主的喜好与生活的习惯,做了简欧风格的设计。整个空间被赋予了细腻的故事性与丰富的空间情绪,步入其间,可以感受到扑面而来的质感与美感,是我们忙碌疲惫生活的希望与甜糖。
Stylist combines the be fond of of owner and the habit of the life, did the design of simple ou style. The whole space was endowed with exquisite stories and rich spatial emotions. Stepping into the space, you can feel the texture and aesthetic feeling of the coming, which is the hope of our busy and tired life and sweet sugar.

映入眼帘的白,更能突出空间的质感。纯白高雅的酒柜,将主人的藏酒优雅展示。复古风格的吊灯是拟烛台的设计,将空泛的白瞬间点缀得活泼而不失典雅气质。厅廊交接的设计,延伸了空间的同时,又有着区域的划分感。
The white that greets the eye, can highlight dimensional simple sense more. Pure white decorous wine ark, will host hide wine grace to show. The droplight of style restoring ancient ways is the design of be like candlestick, will empty and extensive white instant ornament gets lively and do not break elegant temperament. The design of the hall and corridor handover extends the space and has the sense of regional division.

设计师用心进行色彩的搭配,来提升空间的通透感。浅色的背景,暖暖的色调,使空间干净明亮,带来视觉的美感。灰色和橘色的协调和碰撞,让房间看起来温暖而柔软。大摆叶的绿植,更为空间倾注了活力和生活感。
Stylist undertakes colorific collocation attentively, will promote the feeling that the space is transparent. Light color background, warm tone, make the space clean and bright, bring the aesthetic feeling of the vision. The harmony and collision of grey and orange make the room look warm and soft. The green plant of big swing leaf, more space poured vigor and life feeling.

狭长的矩形空间被玻璃移门将格局打开,视野开阔,不知不觉将空间扩展延伸。深色的餐桌,与白色柜子形成色彩的对比。玻璃柜门和白色柜体结合,勃勃生机的绿植盎然生长,入眼满满的都是生活精致快乐的气息。
The narrow and long rectangular space is opened by the glass door pattern, the field of vision is wide, the space is extended unconsciously. Brunet table, form colorific contrast with white cabinet. Vitreous cupboard door and white cabinet body are united in wedlock, the green plant with exuberant vigor is full of growth, the breath that enters an eye to be full is the life delicate and happy.

白色的背景主体,在视觉层面上扩大空间。飘窗上铺着精致的湖蓝色垫子,给人水天相依的静谧感。精致的圆环吊灯上面满是复古的圆柱型灯罩,将简单的点缀彰显个性。画中的波浪图案映着房间的蓝色布置,仿佛海浪的气息扑面而来。
White background main body, on the visual level to expand the space. The exquisite lake-blue cushion on the bay window gives the sense of tranquility of water and sky. The cylindrical chimney that is full of restoring ancient ways above delicate annulus droplight, will simple ornament reveals individual character. The wave pattern in the picture reflects the blue arrangement of the room, as if the breath of the wave is blowing in the face.

莫兰迪色的背景颜色,柔和了整体的空间。使得人一旦进入这个空间,便有着一种不想离去的舒适感。灰蓝色和白色调剂出的房间清爽而干净,窝在房间里,真的是偷得人生半日闲,闲看庭前花开花落,漫随天外云卷云舒。
The background color of morandi color softens the whole space. Once the person enters this space, it has a kind of comfort that does not want to leave. The room that ash blue and white adjust gives is relaxed and clean, nest is in the room, it is to steal a life really half day is idle, idle see before the court flower blossoms fall, diffuse with outer cloud roll cloud shu.