设计 | 档案
【小区名称】:武清水岸唐宁
【建筑面积】:132㎡
【装修风格】:欧式风格
【户型介绍】:3室2厅

设计师—孙贤周
【设计说明】
欧式风格主要是指西洋古典风格。这种风格强调以华丽的装饰、浓烈的色彩、精美的造型达到雍容华贵的装饰效果。
欧式的居室有的不只是豪华大气,更多的是惬意和浪漫。通过完美的典线,精益求精的细节处理,带给家人不尽的舒服触感,实际上和谐是欧式风格的最高境界。同时,欧式装饰风格最适用于大面积房子,若空间太小,不但无法展现其风格气势,反而对生活在其间的人造成一种压迫感。

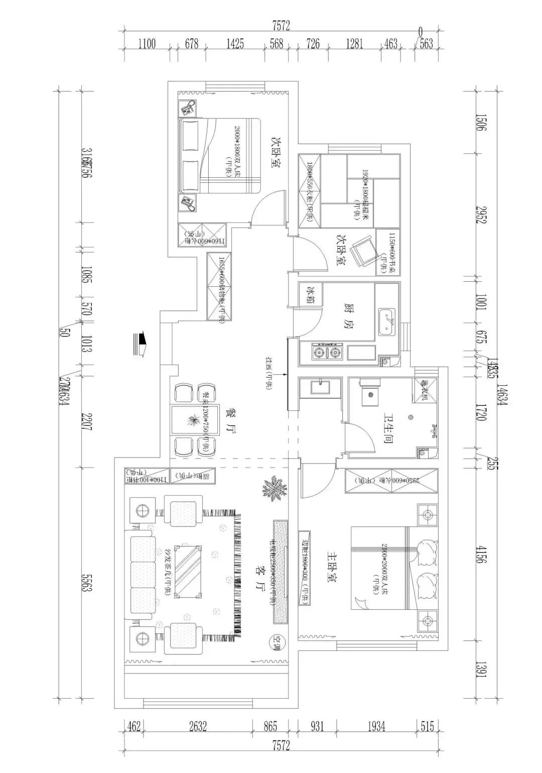
房屋布置平面图
在这套案例中,设计师以欧式新古典凸显空间的堂皇与奢华之美,同时也融合了多元化的简约元素,展现居室低调的华丽。全套以深咖色为基调,香槟色的线条作为雕饰,暖色系的皮革和墙纸为填充材质,,稳重中又不失浪漫。

客厅
欧式客厅非常需要用家具和软装饰来营造大气又浪漫的整体效果。深色的橡木或枫木家具,色彩鲜艳的布艺沙发,都是欧式客厅里的主角。还有浪漫的罗马帘,精美的油画,制作精良的雕塑工艺品,都是点染欧式风格不可缺少的元素。

餐客厅

餐客厅
餐客厅统一用了叠级天花吊顶,浅色抛光砖使空间更通透,咖色的书柜把餐厅与客厅分开,更具层次性;沉稳的色调、通透的空间,精致的细节与线条造型,让这套样板房不只富丽堂皇,也拥有温婉、多情的一面。
餐厅

餐厅
餐厅与厨房之间用双面书架隔开,增加了公共区域的通透性。墙壁上装饰着油画,餐厅椅子与客厅地毯,罗马帘以及油画,都选择了孔雀蓝,使空间更具整体性,孔雀蓝为居室增添了神秘又多情的意境。
玄关

玄关
为了增加客厅的收纳实用性,在玄关位置设计了到顶玄关柜,大大增加了客厅收纳。玄关柜合理划分为3个区域,鞋柜为镂空鞋柜门,通风防潮防臭;封闭式柜体,可以放一些衣物等,封闭式会显得空间更整洁;开放式柜体部分,可以放一些日常用品,这个玄关柜,设计很实用哦!