标准集装箱活动房屋尺寸 (集装箱房屋设计规格)

集装箱房屋具有方便,规整,可移动,建造速度快,可塑性强等这些优点兼具于一身,是国内开始比较流行的装配式建筑之一,其极简流畅的线条,现代感十足的建筑造型,毫不逊色于那些欧式中式等风格的建筑,尤其是在郊外旷野等地,受到环境等制约,集装箱房屋,更是不二的选择。

集装箱房屋设计规格,工地上集装箱房屋标准尺寸一览表

一、集装箱房屋的尺寸规格

国内市场上的集装箱房屋主要分为两种:一种是在退役的标准集装箱基础上改装的,其尺寸规格就是标准集装箱的;另一种是自己加工的、但是外形是集装箱形状的,其尺寸规格是根据加工要求而定,跟标准集装箱的并不一致。

集装箱房屋的尺寸规格参数主要有以下:

(1)长度:

按K数延伸组合;宽度:2K(3.79m)、3K(5.61m)、4K(7.43m)、5K(9.25m);

(2)高度:

斜顶标准规格为单层3P(2.69m)、双层6P(5.37m);

【注意】长和宽均以K为模数(即1K=1.82m),高度:以P为模数,(1P=0.895m),层数一般为1-2层。

集装箱房屋设计规格,工地上集装箱房屋标准尺寸一览表

(3)平顶标准规格为单层3P+290(2.98m)、双层6.5P+290(6.12m)。其余规格可以另行定制。

通过太阳能光电板可供室内用电,太阳能热水器可供暖、供水,室内淋浴、生活用水的排放由污水处理系统进行净化,以便再次利用。根据人员数量的不同,可制作大小不一的集装箱房屋。

二、集装箱房屋价格

集装箱房屋价格一般是多少费用?一般普通集装箱房屋多少钱一个?广西宏宇集装箱房屋厂家报价为:5600元/个(普通)此价格为一般报价,因最近钢材价格有起伏,实际成交价格咨询客服为准;

(一)标准集装箱房屋别墅价格

1、【20尺集装箱】¥1.35万-1.85万(价格仅作参考,具体请以咨询为准)20尺集装箱(标准箱)箱体尺寸:6058mm 2438mm 2891mm。说明:集装箱房屋户型门窗改造,预留门口窗口,其余客户可以根据自己的需求进行后续改造和装修,发挥空间大,造价低廉,适用于低预算低投入或者后期改造装修随意性强的项目。

2、【40尺集装箱】¥2万-2.75万(价格仅作参考,具体请以咨询为准)40尺加宽集装箱尺寸:12192mm 2438mm 2891mm说明:此户型,采用40尺标准箱打造,双门多窗,一箱双户,适用于景区旅游项目毛坯房预留门口窗口,其余客户可以根据自己的需求进行后续改造和装修,发挥空间大,造价低廉,适用于低预算低投入或者后期改造装修随意性强的项目。

(二)智能豪华型集装箱公寓【智能豪华型集装箱公寓】¥50000元以上(根据客户需求定制)尺寸:20尺货柜(内径:5898*2352*2390mm);尺寸:(3.178m*6.058m=19.25㎡)+(3.478m*6.058m=21.07㎡)=40.32㎡总面积:74.5㎡(含阳台)价格:50000元以上(根据客户需求定制)

(三)智能宽敞型集装箱别墅【智能宽敞型集装箱别墅】¥50000以上尺寸:20尺货柜(内径:5898*2352*2390mm);尺寸:(3.178m*6.058m=19.25㎡)+(2.438m*6.058m=14.77㎡)=34.02㎡

说明:

1.集装箱活动房又称住人集装箱、集装箱房屋、集装箱房、集装箱住宅等;2.本报价为广西宏宇集装箱房屋(住人集装箱房屋)报价,仅供参阅;3.本报价仅为报价,非实践成交报价,详细报价需求依据房间装饰状况及箱况质量而定,单位均为人民币元。

三、集装箱房屋设计效果图

集装箱房屋3×6米设计一般要考虑两个方面的因素:

一是客户的具体需求和建筑物的尺寸和功能要求,

二是要考虑生产工厂的设备能不能出材料,因为设备的尺寸有限,这个因素也要考虑进来。

集装箱房屋设计规格,工地上集装箱房屋标准尺寸一览表集装箱房屋设计图(3×6)一层

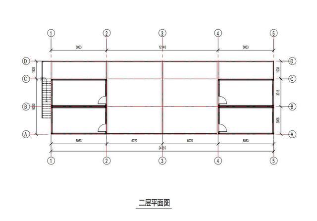
集装箱房屋设计规格,工地上集装箱房屋标准尺寸一览表集装箱房屋设计图(3×6)二层

集装箱房屋设计规格,工地上集装箱房屋标准尺寸一览表集装箱房屋效果图(3×6)

集装箱房屋安装

设计完成之后安排工厂下料生产,采用机械加工生产的,效率很快,生产周期一般为5天左右,生产完成之后运输到现场安装,因为采用的是全装配房屋安装速度快,工期短,1天即可把房屋主体完成,生产安装效率比传统人工施工快很多!

四、集装箱房屋图片

集装箱房屋设计规格,工地上集装箱房屋标准尺寸一览表

集装箱房屋设计规格,工地上集装箱房屋标准尺寸一览表

集装箱房屋设计规格,工地上集装箱房屋标准尺寸一览表

集装箱房屋设计规格,工地上集装箱房屋标准尺寸一览表

集装箱房屋设计规格,工地上集装箱房屋标准尺寸一览表

集装箱房屋设计规格,工地上集装箱房屋标准尺寸一览表

集装箱房屋设计规格,工地上集装箱房屋标准尺寸一览表

以上就广西宏宇集装箱房屋提供的有关集装箱房屋参数价格信息,希望对想了解集装箱房屋的人有所帮助!