-
和昌悦澜 89平方 三室两厅 现代简约 案例装修效果图
-
现代简约风格,顾名思义,就是让所有的细节看上去都是非常简洁的。装修中极简便是让空间看上去非常简洁,大气。装饰的部位要少,但是在颜色和布局上,在装修材料的选择配搭上需要费很大的劲。
-
小区名称: 和昌悦澜
-
小区户型: 3号楼
-
案例户型: 三室两厅一卫
-
装修风格: 现代简约
-
装修套餐: 基础装修
-
小区面积: 89平方
-
套餐造价: 5.90万
-
个性造价: 4000.00元
-
工程造价: 6.30万
-
房屋类型: 商品房
-
设计师: 大白18937119460
-
装修公司: 美巢装饰郑州总店
和昌悦澜89平三室两厅现代简约装修效果图,现代简约风格,顾名思义,就是让所有的细节看上去都是非常简洁的。装修中极简便是让空间看上去非常简洁,大气。装饰的部位要少,但是在颜色和布局上,在装修材料的选择配搭上需要费很大的劲。

和昌悦澜89平三室两厅装修样板间——客餐厅,客厅作为待客区域,一般要求简洁明快,同时装修较其它空间要更明快光鲜。客厅主要以功能性和实用舒适为考虑的重点,多用时尚柔软的布艺来装点,同时在软装和用色上非常统一。

和昌悦澜89平3室2厅装修样板间——沙发背景墙,挂了两幅特别的装饰画,颜色上与窗帘、餐桌、地毯等软装相互呼应。

和昌悦澜89平三室两厅装修效果图——电视背景墙,由于电视背景墙尺寸有限,因此本案采用了整体釉面砖上墙,通过与木质纹理的垭口搭配,简洁时尚。

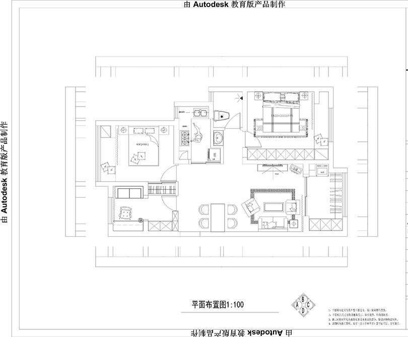
和昌悦澜89平3室2厅装修样板间——平面户型方案

和昌悦澜89平三室两厅装修效果图——餐厅,本案餐厅现场制作了简易的储物柜,同时与沙发背景墙融合成一道美丽的风景。
河南省内郑州市业主朋友有需要装修设计请关注美巢装饰设计师微信(believeyou99)长按复制粘贴键