接上回,店铺围墙还需要至少三至四天,先回家,把内部隔墙和电路图干出来。晚饭时间到家,饭后小憩,开始干图。隔墙图比较简单,白天已经出了草图,按草图画清楚,标上尺寸位置即可。不消30分钟,隔墙图完成。

内部隔墙及餐桌摆放设置图
接下来就是比较复杂的水电图了。电的部分决定用网红餐厅一样的天花吊金属线桥。确定好主配电箱的位置在前厅到厨房入口处侧面的墙体。这样的设置可以使大功率的用电设备离主配电相比较近,尽量节省昂贵的大平方粗电线用量。

天花线桥布置图,红色为主线桥,粉色为分支
接下来确定大功率固定设备的位置,两台5匹380V风管空调,一台涡轮高压抽风机2.3Kw,两到四台5KW电磁炉。外围大面积灯箱及装饰灯带照明。这些都是大功率且固定安放的设备。每台大功率设备单独各走一路,各配一个漏电保护断路器。接下来就是后厨照明及小功率插座一路,前厅照明及小功率设备插座一路。

风管空调布置图,蓝色实心长方块是两台主机,蓝色空心是出风口
厨房小功率设备及照明,按照设备布置图,在天花走半圈6平方主线,分支到各小设备包括冰箱摆放位置的插座,每组插座配一个漏电保护断路器,就安装在插座边。这样的好处是无论哪个设备出问题都不会影响其它线路和设备,立刻可以确定问题设备。厨房里高温高湿,设备短路过载产生故障是常有的事,要是都集中到一两个断路器,省了小钱找了*麻大**烦,要是营业中断电跳闸,再一一排查问题设备,到时候想死的心都有。

布线图,最烧脑的图,费神
厨房安排完,就是前厅了,前厅分四个用餐区,每个用餐区一组照明灯光控,所有走道一组照明灯光控。电脑及网络设备单独一路。弱电监控线路一路。两台空调各一路380V线路,招牌霓虹灯,玻璃幕墙灯带一路,大功率380V热水器一路。这些都可以走主线槽再分支到各个设备。

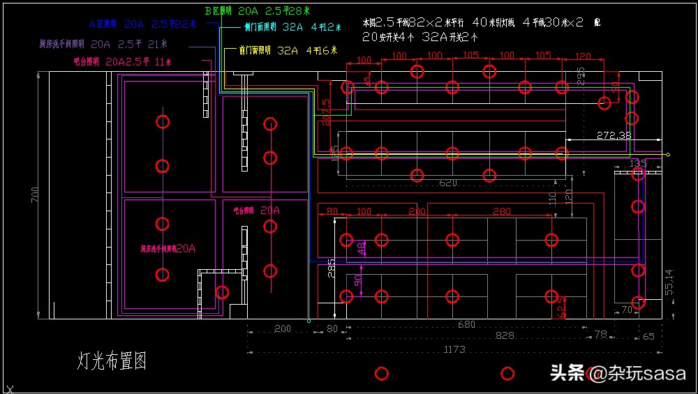
灯光布置图,也是头疼的事,位置尺寸都有要求,复杂
先走两支主线桥,一支沿顶部墙边去厨房绕半圈,每处需要用电的地方再下分线槽。

消防用电,单独走一波,以防日后有关部门查验
一支出前厅,沿前厅各用餐区之间的走道布置,所经过各用电区域再就近分支线槽给空调,照明,霓虹灯幕墙,和其它用电设备。依旧是大功率设备每台单独线路,照明及小功率设备共用一组4平方主线再分支1.5-2.5平方支线。前厅环境相对干燥稳定,不需要每个小设备都设置断路器,空调这些大功率还是要一台一断路的。

音箱,网线,监控也要单独出图的
依上述方式画完线槽及线路图纸,按图纸尺寸,计算所需购买的主线槽和分支线槽长度,所需粗细电线的型号和长度,计算用线量的时候注意380V需要五根或四根线一组,插座的型号和数量,空开的数量及电流大小。线槽内PVC线管的规格长度。铁线槽内还需用PVC线管分组,这样比较安全,防鼠啃,出现故障也便于检修,餐厅电路防鼠啃非常重要。所有这些计算完毕,汇总所有用电设备功率,适当加上日后可能需要的扩展功率,我是加了15%,根据总功率决定主断路器的容量及型号。
三相功率平衡?那个交给电工处理吧,能少操心就少操心啊。

过道走道地线灯,灯光图太密了,单独出图吧

电路这块就画了七张图,还是很麻烦的
电路这块就做了七张图,这么多图当然不是一晚上画的,都是边做边画,细写就太长篇了,都总结到电路这一篇吧。
至于用水管路就比较简单,厨房洗槽,厕所,前厅水台,20分钟搞定,所有供水管不埋地,贴墙走明管即可,排污还是要走地下的,不过也就限于厨房排污和厕所,反正前厅也就一路热水管供水到相对隐蔽的水台,不影响美观。按图计算阀门,水龙头,PVC供水管和排污粗管的长度及所需,接口,三通,弯头,墙装水管卡和PVC胶水密封水胶布数量。
画完这些图也到凌晨了,不知不觉过了七八个小时,关灯睡觉,明天去新铺工地给工头交代内部隔墙,顺便再仔细检查下现场,看有没特殊情况需要注意的,顺便把配电房到电里总闸的距离和线路测量一下。
一觉醒来已经到午饭时间,从容的吃完午饭,驱车来到工地,围墙已经差不多快完成了。喊来工头,把内部隔墙图交代给他,把各出入口的位置和尺寸确认好以及部分需要垫高的就餐区域。垫高和挖低是为了增加各区域的层次,和空间对比,让小面积也能出大空间感。总之两两相邻的就餐区,绝不会在同一平面,都会高低错开。

轻砖墙砌好,等待批灰抹泥
几分钟跟工头交代完泥水工作,致电管理处电工,让他带我去配电房看看如何牵引入户线缆。不销十分钟,小区电工骑着电动小摩托蹭蹭的出现在面前,待他停好车,我热情的笑迎上前。握手的同时塞上两盒好烟,双方客气的寒暄了几句,就直奔配电房了。物业的电工是很重要的,一定要给予相当的面子,你尊重他,很多事就好办了。否则三天两头挑刺,施工会干不下去。到了配电房,电工指出一组开关,这个是给我铺施工期间临时用电的,正式的电表还没配装,需要根据我们的用电总功率来确定容量。我把昨夜统计的总用电功率告知。电工表示小小吃惊,一个百多平的铺子为何用电量这么大。我说确实需要。第一,我们不用煤气,主要靠电热解决烹饪用火需求。第二,日后有可能扩展若干餐桌用电磁加热设备,加上现有的空调,大面积灯带灯等,而且计算比较宽松,免得到时候因线路过载造成故障,影响营业。电工未作多言,表示按我们需求配合。
接下来就是入户电缆的架设方式了。由于是老厂房改的商铺,之前的用的宽大工业电线桥并未拆除,而且刚巧经过店铺主配电箱上方,这个真是非常运气,架线是非常方便的。但是不太满意的是,实际走线距离居然有55米,35平方4+16平1的铜线缆,55米啊,光电缆就是一笔大开销,还不算这么粗重的线缆需要多少人工架设。没办法,只能买买买了。
就近又找了家咖啡餐吧,开始淘宝。先定各种小型的断路空开,应为都是小型的,品牌就不追求进口一线大牌了,ABB,梅兰一概不要。在淘宝搜索对比了半天,施耐德这个品牌入眼了,价格适合,品质可以,施耐德也是大牌啊。按所需型号一一斟酌核对后加入购物车。开关选完,折腾了几个小时,倍感疲惫。在茫茫淘宝采购,的确是个费精力的活啊。

施耐德也是国际 大牌啊
出门看了看铺子的进度,外围隔墙差不多完成了。工人们在往裸墙上撒水,明天就开始批灰了。开车回家吃饭,商业区的停车费真贵,一下午50多。
到家刚好吃饭,晚饭完毕。继续淘宝。开关都完事了,接下来采购电线。金龙羽吧,可靠的品牌,同样货比三家,哪家便宜要哪家。电线的采购也是挠头的事,都是成捆的,50,100米一捆。因为各种型号的线需要长度不一,220V的一组三根,地线比火线零线细点,火线,零线,地线颜色也各不一样。380V的一组4或者5根,同样有粗有细,四五种颜色。不能每种型号粗细,每种颜色都买整捆啊。哥不是专业搞装修的,多余的线不是浪费吗。这种情况下,就需要调剂合理了。风机功率也就2.3KW ,设计用4平方线其实不需要,由于是三相均摊功率,实际用2.5平方就够了。两台5匹空调380V的用到6平方。电磁炉4平方,前厅后厨主线部分用到6平方。实在不行就近的五金电买点散的呗。颜色也是,不能每组都一线一色那么标准了,差不多总长够了,同色线用不同色轧带标记好也能区分。琢琢磨磨,比比算算,两三个小时下来,总算是把线给选完了。烧脑的活计啊!没二话,全部撸进入购物车!

选线选到头眼昏花
相对简单的就是金属线桥了。按图纸尺寸购买不同型号规格长度即可。至于pvc线管什么的反正也不贵,差不多买点就行了,多了不浪费,少了去五金店补,也没多少钱。购物车拿下!

粗细不一的主线槽和分支线槽,不便宜
线桥轻松完事,接下来是电缆了,一整根,长度确定好并不费事,主要是价格和品质。35平4*35+1*16,大牌的可是异常昂贵的。最后选定了不知名小品牌,价格还是不便宜啊,55米4300多大元。加入购物车!后来到货后一看,品质也还不错,值了。

当年买的电缆
最后就是主断路器了按总功率加10%冗余来。用好点的吧,施耐德 easypact cvs160F 160A大塑壳断路器。倒不是很贵,700左右。购物车了!
以上乱七八糟一大堆弄完,也到凌晨了,睡觉,明天正式开启买买买买!