随着医院新一轮改扩建项目的实施,BIM技术、IBMS系统集成等新技术已开始应用于新建医院建筑中,但BIM技术等的应用目前仅局限于施工阶段,其实医院“信息化” 运维管理上的痛点多多,本篇文章从为什么要用BIM技术、如何去构建BIM运维平台、有哪些应用场景来展开论述。
壹
为什么要用BIM技术?
数字时代的层级递进:
- 智慧化:人工智能AI 、人工智能普及应用 (信息自我学习,辅助决策判断)
- 信息化 :BIM 5G+物联网、数据共享交互业务协同联动(信息共享交互, 降低学习成本);
- 数字化:实时监测, 远程管理 、数字图纸(CAD)(信息永久保存,节省重复劳动)。

▲ 数字时代的层级递进
1
什么是BIM?
BIM的英文全称是Building Information Modeling,是指建筑信息化模型。(取自住房城乡建设部《建筑工程设计信息模型交付标准》)
BIM是以三维图形和数据库信息集成技术为基础,集成基础设施在规划、设计、施工、项目管理、运营管理及智慧城市应用的全生命周期的数据模型。(取自《建筑信息模型应用标准》 )
BIM技术并非单指某套建筑绘图软件,亦非单纯的3D建模程序,BIM技术最大的特色在于建筑模型内所携带的大量信息。

▲ BIM=建筑信息模型(Building Information Modeling)
2
BIM在公共建筑中的应用
- 公共建筑一般应用在新建楼宇汇总;
- 医院属于公共建筑中的复杂建筑,即使应用也一般在新建楼宇的设计阶段,部分医院是设计+运维阶段;
- 施工阶段,旨在利用可视化的管理,减少误差,提高施工质量和效率;
- 与各专业,与各施工方增强沟通,数据共享,合作紧密;
- 在运维阶段,可利用模型进行模拟建设,增强修缮等方案的可行性,减少管线碰撞等安全风险;
- 不断积累经验,提供借鉴;
- 但在医院这个公共建筑中,对于既有建筑运维阶段的应用相对欠缺。

▲ 医院BIM竣工模型
3
BIM具备哪些特性可以用于后勤运维?
- 可视化的空间信息更快地作出判断,沟通效率大幅提高,学习门槛大幅降低

▲ 对话沟通效率低下- 平面图纸专业门槛高- 图形互动,信息共享 大幅提高工作效率
- 可以承载大量数据信息让不同工种在同一信息平台上,相互协同使用统一工具语言。

▲ 钢笔制图-CAD制图-BIM建模
4
医院"信息化"运维管理的痛点
- 基建数据管理和后勤运维数据管理长期分离,在工程竣工交付后,进入运维阶段两套体系、各自为政;
- 医院运行系统种类繁多、自成体系、不能相互关联,形成信息孤岛,降低了沟通成本,提高医院的管理效率。比如消防系统、安防系统、视频系统、能耗系统、自控系统都是分立系统,不存在真正意义上的同步协作;
- 医院后勤运营仍旧大量使用纸质或二维图纸,系统管理能力落后,查找故障时间长,响应效率低;数据采集和使用还处于初级阶段,没有真正实现有效闭环管理和辅助决策。
5
BIM引入医院运维的好处
- 所见即所得,所选即所知——在3D图形中点取任何构建,立即获取相关尺寸、材料、关联节点、性能参数、生产维保厂商等联动信息,极大缩短查询时间,提高工作效率。
- 不同工种协同作业的基础条件——不同部门、不同工种在同一个3D模型中,统一进行调度协作,大幅降低沟通成本和学习时间,真正实现数据共享和协同作业。
- 新兴技术应用的完美载体——随着互联网、物联网、大数据分析、人工智能AI技术的不断完善和进步,建设智慧医院已是大势所趋,BIM技术对于信息数据的高融合特性使之成为新兴技术应用的完美载体。
贰
如何去构建BIM运维平台?
1
需要具备的基础条件
- 基本实现数字化覆盖,数据壁垒仍普遍存在;
- 具有一定历史数据积累,尚未深度挖掘应用价;
- 各系统专业分工明确,缺乏综合管理决策平台。
2
建设方针
以工作流为基础
实现将设施设备基础信息、运行台账、维保记录、核心指标参数等全生命周期信息,统一汇总进3D数字化档案库中;实现不同专业领域,不同负责区域运维人员的信息完美传递;实现对可能发生的灾害进行预防和主动干预;完善并丰富资产与设施设备的运行管理手段,改“人治”为“数治”;
以BIM模型为载体
实现同一系统、不同设备之间从属关系的信息关联;实现设施设备运行状态与其空间位置的信息融合,帮助运维人员快速精准定位;
实现建立医院化整为零、网格化管理的基础条件;实现医院各部门数据共享,可在同一载体上进行协同工作;
围绕运维实际需要
实现采用了物联网、异构系统集成流媒体数据传输、二维码及现场图像识别、AR视觉增强等一系列新技术应用,全方位保障医院设施设备安全稳定运行;有利于不同专业运维人员的协同合作和权责划分;降低运维人员专业门槛及学习时间成本、聚焦于精细化管理,全面提高后勤保障服务质量和管理水平。
3
建设流程

收集纸质图纸
▲ 收集纸质图纸

▲ 转化为CAD图纸

▲ Autodesk revit建模

▲ 楼层设备管路加载

▲ 碰撞测试和反复校准

▲ 图像显示效果渲染
4
典型逆向建模方法
|
模型精度BIM工程模型 |
点云空间模型 |
倾斜摄影模型 |
|
|
代表性工具 |
Revit ArchiCAD |
NavVisTrimble-RealWorks |
无人机-全景相机Recap |
|
技术原理 |
信息族架构 |
点云合成 |
图片合成 |
|
对象特征 |
工程构件 |
三维坐标点 |
格栅图片 |
|
数据来源 |
人工建模、录入 |
3D激光扫描仪采集 |
无人机采集 |
|
模型精度 |
LOD300(近似真实) |
LOD200(0.01~1m) |
LOD100 (0.1~5m) |
5
模型的精细化、轻量化和信息化

▲ 三类精细化、轻量化、信息化处理
叁
可以有哪些应用场景?
1
应用场景

▲ BIM技术在医院运维阶段的应用场景(管理监控一体化)

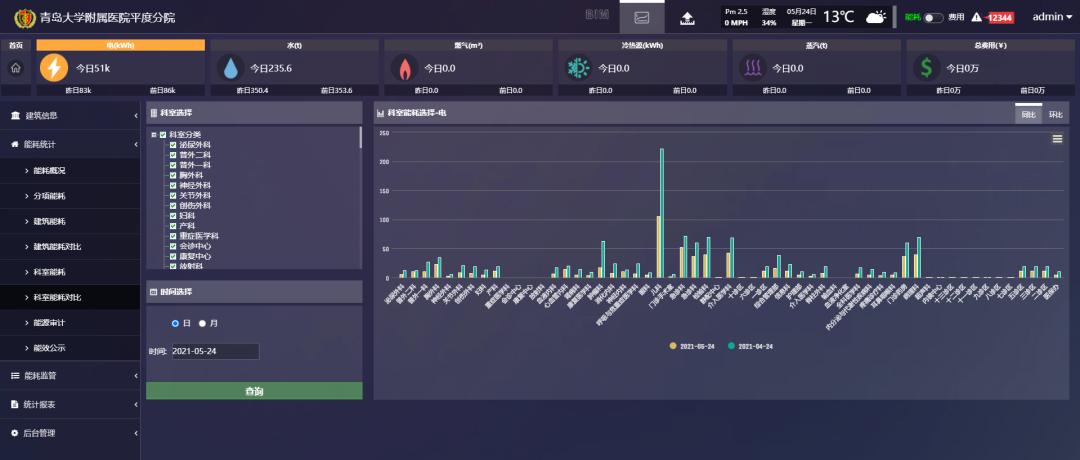
▲ BIM技术在医院运维阶段的应用场景(青岛大学附属医院平度分院)

▲ 全能数据采集

▲ 医院按部门或建筑节能量核算并公示

▲ 利用数据帮助医院完成水平衡情况展示杜绝“跑冒滴漏”情况

▲ 以科室维度进行数据同比和环比

▲ 以柱形图的形式分析分项能耗占比

▲ 设备用能参数横向对比找出合理的节能运行策略

▲ 实时掌握变配电所各回路的运行情况配合预警功能为管理人员提供数据支持

▲ 科室能耗预对比曲线
2
医院空间资产管理、日照、能耗、疏散、消防、结构仿真模拟计算

▲医院空间 资产管理

▲ 消防仿真模拟计算

▲ 日照仿真模拟计算

▲ 疏散仿真模拟计算

▲能耗仿真模拟计算

▲ 结构仿真模拟计算
3
特点优势
(1)信息联动、精准定位——触发预警条件后,直接显示关联区域、相关参数和其他要素信息,提高决策响应效率和准确度。

(2)信息统一载入,多部门协同作业沟通更加效率——医院各部门均可以BIM模型为载体,上传汇总相关信息,形成大数据3D档案库,永久保存,调阅方便。(预留开放数据接口)

(3)直观展示隐蔽工程,培训成效明显——通过可视化模型,提供沉浸式培训体验,学习交流等时间成本大幅缩减,降低了人员技术门槛要求,有效提高管理人员决策效率和运维工人实际操作准确度。

BIM直观展示隐蔽工程

BIM直观展示隐蔽工程

BIM直观展示隐蔽工程
4、采用了物联网、异构系统集成、流媒体数据传输、二维码及现场图像识别、AR视觉增强等一系列新技术应用,全方位保障医院设施设备安全稳定运行。

来源
于卓灏 上海纳宇电气有限公司技术总工 高级工程师,负责主持建筑信息化系统开发与建设、节能改造效益分析与评估等相关工作。参与了《智慧医院评价标准》、《医院后勤安全运行智慧化平台建设规范》、《绿*医色**院节能建设与管理指南》以及《基于bim技术的医院既有建筑智慧运维管理系统建设关键技术和应用场景设计研究》等一系列标准、书籍和课题的研究编制工作。