对于不少青年人来说
事业的压力、繁琐的应酬
让他们需要一个更为简单的环境
给自己的身心一个放松的空间
而现代简约风
以简洁的表现形式来满足
他们对空间环境那种感性的、本能的和理性的需求
宁缺勿滥为精髓
合理的简化居室
从简单舒适中体现生活的精致


丰泽美居143㎡

设计师杨文东
从业12年
擅长风格:现代简约、新中式、极简、轻奢
成功案例:世茂世悦府、世茂珺悦府、公园华府、天山熙湖、兴庆府二号院、江南赋、凤凰尚筑等
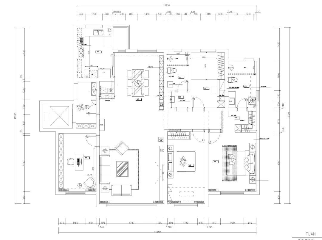
【平面图】

【效果图】

黑白灰是现代简约风的经典组合,营造一种简约干练的现代风格。客厅格局空间采光很好,光源充足,保持一个温馨舒适的家居氛围。

整块白色大理石电视墙简洁大气,灰色“凹”型电视柜的设计令人眼前一亮,既美观又实用。棕色沙发、靠垫和立灯以及装饰品使客厅空间色彩丰富起来,更有层次感。

客厅的另一种设计使用木质电视墙,并增加了主灯和诸多艺术装饰品,沙发也更换成了更加宽敞的组合沙发,香槟色的使用增加一种奢华的质感,突显主人对品质生活的追求。

纯白的色调让客厅更加宽阔,有温度的暖灰,平衡黑与白的搭配,结合香槟色线条,营造客厅温润舒适的奢华质感。

艺术装饰品是必不可少的装饰元素,可以让简洁的空间有不同的可能性,增加丰富的层次,提升美观度。


整个主卧的设计给人一种温馨又精致的感觉,白色、原木色和木质的沉淀感互相融合,更多出一份舒适和温暖。一组顶天立地式衣柜既美观又实用,还不浪费空间。


次卧以高级灰+棕色为基础色调,全屋定制的家居精致实用,落地式储物柜用于展示书籍或装饰,学习休息各有空间。白棕色窗帘同时也增添了一丝别样情调。

书房的设计兼具两用,平时工作学习两不误,闲暇时就变身成为健身房,足不出户就能锻炼身体,劳逸结合更健康。

丰泽美居178㎡

设计师马金林
从业12年
擅长风格:极简、现代简约、现代轻奢、北欧
成功案例:中瀛御景、天鹅湖小镇、中海央墅、海亮国际、兴庆府大院、森林公园等
【平面图】

【效果图】

香槟色的线性灯通过线条勾勒空间轮廓,让原本单一沉闷的餐客厅,立马变得更有空间感,还能起到划分区域空间的作用,并使整个空间看起来更富有情调和氛围感。

空间整体黑白灰的基调,给人舒适的优质生活新体验和无尽的享受。棕色沙发搭配白色大理石茶几,色彩柔和、清新,淡雅之下又透露着浅浅的舒适感觉。

香槟色线条与弧度的结合,衬托出简洁又不失大体的美,淡雅柔和的香槟色,演绎出低调奢华的高级感。

餐厅空间开敞、内外通透,不受承重墙限制,在平面设计中设计师可以自由的发挥。

时尚端庄的布艺餐椅,金属脚架+大理石台面搭配的餐桌,时尚而高档端庄的餐边柜,别具一格的艺术吊灯设计,这些组合到一起使餐厅更加大方。

主卧在保持了与客厅一致的色调基础上,增加了蓝色和橙色装饰元素,使空间层次更丰富、更立体,香槟色的融入锦上添花,温馨舒适。