9月12日(本周六),位于瓯海新桥的远洋·泊云庭一期将要推出292套新房,毛坯均价约为22323元/㎡。
1
远洋·泊云庭(备案名:泊云庭),位于瓯海区新桥街道,瓯海区西山西路与翠微大道交叉口、景山隧道南口东侧、温州华侨职业中专以南。

项目区位图
远洋·泊云庭一期预售范围如下:住宅2、3、4、5幢,建筑面积为:30738.04㎡,共292套。
该项目开工时间2020年7月17日,预计将在2021年7月份主体全部结顶,计划于2022年9月30日竣工验收,2022年12月30日交付。

项目楼幢分布图(一期推盘楼幢为2、3、4、5幢)
预售商品房住宅全装修标准分为:
(1)A装标方案装修房交付标准1200元/平方米(适用于本次推售2幢、3幢、4幢、5幢楼(2、3幢及4幢底商除外)所有户型);
(2)B装标方案装修房交付标准1800元/平方米(适用于本次推售2幢、3幢、4幢、5幢楼(2、3幢及4幢底商除外)所有户型);
在此次292套住宅中,其中
2幢共96套,户型为95和113方,楼幢普惠后均价21240元/㎡;
3幢共100套,户型为113和99方,楼幢普惠后均价21779元/㎡;
4幢共100套,户型为124、113和99方,楼幢普惠后均价22539元/㎡;
5幢共96套,户型为113和95方,楼幢普惠后均价23571元/㎡。

项目价格表(此处以普惠计算,具体折扣以案场销售口径为准。)
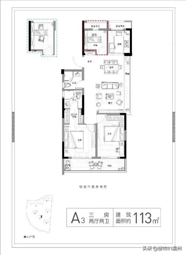
- 户型图 -




2
本期远洋·泊云庭推出的2、3、4、5幢,毛坯普惠后均价为22323元/㎡。
外墙:商业部分沿街面外墙为石材和铝板,其余部分外墙为高档真石漆。
地块西面为翠微大道,紧邻景山隧道南口,西侧一路之隔为大片老旧工业区;东边为安置房(景西嘉园);北面一路之隔为温州华侨职业中专与一座宗教建筑;南面为西山西路。虽然该项目位于景山南侧,但当前不利因素较多,周边环境和城市界面比较差。
目前,在该项目直线约1.5公里内,还有基安山殡仪馆、陵园、瓯海区拘留所以及多处宗教建筑、公墓等。
项目红线外这些不利因素,其实远洋·泊云庭展示厅已也有说明。

3
虽然该项目周围大环境较差,不利因素较多,但项目西南侧有棵百年大榕树,与1幢商业形成较好的小环境,这在温州较多新项目中不多见。

现场实景图
该项目4幢距离西边道路约30米,3幢距离西边道路约50米。因西面为翠微大道,翠微大道是温州南北向主干道之一,车流量较大,而且货运车辆较多,存在较大的灰尘、噪音等不利因素。

地块西面实景图
相对于上述条件,该项目4、6幢之间楼间距约为30多米,3、4幢之间楼间距约为14米,2、5幢之间楼间距约为48米;而2、5幢高度均约为72米,3、4幢高度约为54米,所以买房时要注意日照的效果及影响。
根据房开的定价,2、3、4、5幢东西边套均设有边厅,但价格并未高出中间套多少。东边套价格较中间套贵400-800元/㎡,西边套甚至均略低于中间套。
3、4幢西边套景观面堪忧,故而价格相对便宜。3、4幢东边套价格略高,但是胜在有小区中庭景观。

此次远洋·泊云庭开盘2、3、4、5幢中5幢最贵,2幢最便宜。5幢因为位于小区中间位置,距离道路等不利因素较远,能充分享受项目绿化景观。2幢位置和3、4幢类似,但输在户型多,楼幢密度较大,故价格略低于3、4幢约500-1000元/㎡。
但其实该项目东面为景西嘉园,2、5幢东面大概率为安置房的中庭绿化,无遮挡。 这样看来,其2幢的性价比还算不错,且南面高楼层还有一定的河景资源。

地块航拍实景(图中在建工地即为该项目,方向为坐北朝南)
总结:远洋·泊云庭周围环境较差,不利因素较多。相近档次价格,目前周边在售项目还有弘阳上坤.西湖四季、荣安.御瓯海、华侨城.欢乐天地和凯迪融创的瓯玥名邸等,选择性较大;
而价格高于该项目2000—5000元/㎡的,还有时代.瓯海壹品、祥生.公园道和君悦339等;
而在该项目隔景山的北侧,鹿城区还有碧桂园.鹿城之光、龙湖坤和.天境和绿城.桂语江南等新盘。
就当前该项目定价来说,性价比一般很,加上项目周边竞品较多,目前已经形成贴身肉搏战之势。该项目要想杀出一条血路,除非以更高的性价比来吸引购房者。
备注:文章内所说的项目与周边道路,以及与特殊建筑物的距离,只是大概的距离,具体以政府和开发商公布的数据为准。
本文由“楼市温州”原创,欢迎关注,带你一起长知识!
更多原创深度爆文,请关注微信公众号“楼市温州”,获取更多精彩内容!
微信公众号:楼市温州(id:loushiwenzhou),戳文末扩展链接跳转原文哦!
↓ ↓