
XXX项目施工组织设计
刘**(XX大学网络教育学员)
内容摘要:XXX项目是位于XX市临港经济开发区的一个工业厂房工程项目,该施工组织设计是指针对XXX项目,在开工前对工程本身特点和工地具体情况,按照工程的要求,对所需的施工劳动力、现场准备设施,经过科学计算、精心对比及合理的安排后编制出的一套在时间和空间上进行合理施工的战略部署文件。主要内容包括编制依据,工程概况、施工部署、施工准备、主要施工方法、工期保证措施、质量管理体系等主要内容,编制出针对性的施工组织设计,每个分部通过分项测量、基坑降水及支护、钢筋、模板、混凝土、脚手架,编制出切实可行的施工方法,以指导施工并顺利地完成本工程项目的建设,控制工程成本,创建优质工程。
关键词:施工组织设计 总进度计划 工程特点 施工方法
引 言
建筑施工组织设计是工程项目管理中的重要技术经济文件,是指导工程投标、签订承包合同、施工准备和施工全过程的核心。从工程投标开始,施工单位就必须在了解工程规模、特点、技术要求和建设期限等基础上,编制施工组织设计,作为投标书的一部分参与投标活动。一旦签订工程承包合同,施工组织设计又成为合同文件的组成部分。在施工准备和施工过程中,工程施工组织设计始终起着全局性的指导作用,作为项目管理中的规划性文件,施工组织设计提出了施工中的进度控制、质量控制、成本控制、安全控制、现场管理、各项生产要素管理的目标及技术组织措施。
1、 编制依据
本工程编制依据:施工合同、招标文件、工程地质勘察报告、设计文件、国家、地方、行业现行的规程规范、法律法规。
2、 工程概况
本工程位于XXXX,整个地块呈矩形,两面临街,一面为城市干道,周边交通便利。本项目建设用地总面积为17743.00㎡,总建筑面积为22729.19㎡,1#楼建筑面积为10733.52㎡,2#楼建筑面积为11995.67㎡,1#楼地下车库建筑面积为1355.84㎡(我公司只承建1#楼地下室部分与2#楼)。
本工程建筑主要特征,设计使用年限为50年,二类高层办公建筑耐火等级为二级,厂房、地下车库耐火等级为一级,建筑抗震烈度为7度;1#楼(办公楼)结构为现浇钢筋砼框架结构,2#楼(厂房)为现浇钢筋砼框架结构。
3、 施工部署
3.1施工管理目标
确保工程施工质量和施工安全的前提下,节能降耗,降低成本,按照施工计划,合理组织人员、材料、机械等相关施工部署,编排详尽的施工计划,严格控制工期,按时竣工,不延误工期。
3.1.1工期管理目标
工期目标为365日历天。本工程计划于2013年8月31日开工,2014年8月31日竣工。具体开工时间以监理工程师签署开工日期为准。
3.1.2质量管理目标
按现行规范规定本工程为一次性验收合格。 项目部严格按国家现行施工验收规范施工,严格按《建筑工程施工质量验收统一标准》(GB50300-2001),检评各分部分项工程,确保本工程一次性验收达到合格标准,争创优质结构工程。
3.1.3对质量的管理和控制
a根据项目质量计划和质量保证体系,协助、要求和敦促各指定专业承(分)包商建立起完善的各指定专业承(分)包商的质量计划和质量保证体系,将各指定专业承(分)包商纳入统一的项目管理和质量保证体系,确保质量体系的有效运行,并定期检查质量保证体系的运行情况;
b制订质量通病预防及纠正措施,实现对通病的预控, 进行有针对性的质量会诊、质量讲评;
c质量的控制包括对深化设计和施工详图设计图纸的质量控制;施工方案的质量控制;设备材料的质量控制;现场施工的质量控制;工程资料的质量控制等各个方面。
d严格程序控制和过程控制,同样使各指定专业承(分)包商的专业工程质量实现“过程精品”。
e对各指定专业承(分)包商严格质量管理,严格实行样板制、三检制、和“一案三工序”,严格实行工序交接制度。
f协调好各指定专业承(分)包商的立体交叉作业和正确的工序衔接。
g严格检验程序和检验、报验和试验工作。
h制定切实可行的成品保护方案和管理细则,统一部署、与各指定专业承(分)包商一道做好成品保护工作。
i协助、检查、敦促各承指定分包商做好工程资料管理和竣工图、竣工资料的工作,要求竣工图、竣工资料与工程竣工同步。
j积极开展质量管理(QC)小组的活动,工人、技术人员、项目领导“三结合”,针对技术质量关键组织攻关,并积极做好 QC 成果的推广应用工作。
k各分项工程质量管理严格执行“三检制”(即自检、互检和交接检、专业检),隐蔽工程做好隐、预检记录,质检员做好复检工作并请甲方、监理代表验收。各种不同类型,不同型号的材料要分别堆放整齐,钢筋在运输和储存时,必须保留标牌,按批分类,同时应避免锈蚀和污染。工程在交付使用后按合同要求在规定期限内提供无偿保修,并由有关领导到建设单位回访,听取用户对工程质量的意见,为进一步改进施工质量提供依据。
3.1.4严格执行三检制度
严格执行三检制度,坚持自检、互检、专检三结合的检验制度,做到不合格中间体不流入下道工序,做好施工阶段的质量控制。
3.1.5安全管理目标
安全目标:杜绝死亡、重伤事故和重大设备、交通及火灾事故,轻伤频率控制在3‰以内。确保达到宜宾市现场安全生产标准。
对施工人员在施工前进行安全入场三级教育,分工种、分阶段进行施工安全技术交底和安全知识教育,在施工中要随时注意安全,专职安全员行驶其职责,使施工现场不留有安全隐患,严格按《中华人民共和国工程建设标准强制性条文标准(2009)》的规定执行
3.1.6消防管理目标
所有临时消防设备应符合宜宾市及集团公司相关规定的要求,在施工期间,按需要配备灭火器、沙桶和其它足够和有效的消防设备,特别是应在工程物最高点安装足够的供水设备,并随时设有足够的喉管及压力以能达工程的所有部分。消除现场消防隐患,杜绝火灾事故发生。
3.1.7环境管理目标
认真贯彻执行建设部《建筑工程施工现场管理规定》、《城市区域环境噪声标准》(GB3096-2008)及国家有关控制施工扬尘、卫生标准的文件,创安全文明施工达标化工地。确保文明施工,达到宜宾市文明工地要求,争创省级标准化安全文明施工工地。
3.1.8技术管理目标
a施工方案及施工组织设计先行
在工程开工前,项目部全员共同策划确定施工组织管理、工程施工进度计划安排、采用主要技术措施、确保质量相关措施、保证安全无事故措施、劳动力安排计划、施工所需机具投入情况及主要施工材料、周转材料进场时间等。经汇总后形成施工组织设计报公司相关职能部门审批合格,经监理、业主批准后才可进行正式施工。
b详细的技术交底
组织项目部人员仔细研读图纸,组织图纸会审,及时与设计院沟通,解决图纸问题,提出合理化建议。
各分部分项工程在施工前要做好相应的技术交底,技术交底要保证落实到位,落实到人,采用层层交底,使每一个施工人员都明确自己的工作内容及工作当中应注意的事项。
c加强施工过程监督及总结
施工过程中要监督技术交底的落实情况,及时发现施工中存在的问题并总结改进施工方案,以保证工程质量。
项目部及时掌握有关建设工程的法律、法规文件,并及时下发、宣传。特别对工程造价、工程质量监督等方面予以认真对待。成立资料室,配备有效工程施工规范、规定、标准图等。建立电脑办公室,工程的进度、质量、安全、资料均使用电脑控制,保证相关信息及时、准确传达到相关人员,使工程进度得到全面控制。
项目部配备技术资料管理人员,负责工程从开工至竣工期间的专业技术资料收集、编制整理和归档,达到技术资料积累与工程同步。项目竣工交验前将资料上交业主。
3.2组织机构图

图3-1组织机构图
3.3施工进度计划
本工程计划于2013年8月31日开工, 2014年8月31日竣工。实际开工时间以监理工程师签发的开工令及现场开工实际所需条件为准,计划总工期为365日历天。详见下表:

3.4保证施工进度计划的措施
a计划的调整
合同中规定的开竣工日期及每月需计划完成的施工进度为控制点,为了确保控制点的实现,结合施工中不断发生的变化,需对计划进行科学安排,动态管理,及时对进度计划进行调整,确保总工期提前完成。
b计划的检查和落实
施工部门必须严格按月进度计划施工,施工负责人,每周组织施管人员、班组长开会、检查上周完成情况,并确定下周计划。每周及每日组织开会,检查并考核班组的完成情况,根据情况调整并确定下月计划,报监理、业主批准并布置落实。
3.5施工总平面布置图

4、 施工准备
4.1技术及人员准备
c图纸会审
项目技术部门人员对先期到达的图纸首先进行研究,然后对项目其他管理人员进行图纸交底,之后由各部门人员分别审核图纸,最后由总工程师组织项目内部图纸会审,将发现的问题汇总,参加四方交底,办理一次性洽商。
根据工程特点与设计要求,按照公司下发的《现行规范、规程、标准清单》及《法律、法规清单》,建立项目文件清单,并依照清单配置文件,并由总工程师组织项目全体人员进行相应内容的学习。
d 计量、测量、检测器具准备
配置工程所需一切计量、测量、检验、试验用仪器设备,并按管理体系要求对仪器进行检定,
4.2现场准备
a现场大门、围墙及临时道路
施工工地的大门为薄铁板对开无门楼式大门,总宽度为8m,高为2m,大门旁设置门卫室,做到方便适用。施工工地的大门入口处按照CI标准设置九牌一图标牌。
施工现场围墙维护方式:沿红线全程搭设。在靠近主出入口的地方设置明显的公司标识,标牌和宣传画。墙面宣传画依据业主及当地相关部门要求进行涂饰和美化,围墙做到牢固、美观、封闭完整。 围墙以及6m临时道路布置具体见平面布置图。
进场后,根据总平面布置图进行道路及材料堆放及加工区划分,以便于管理。在道路入口及显著部位设置交通指示牌,标明道路的前行方向。
本工程施工便道做法为:先铺设30㎝道渣后再浇筑20㎝的C25混凝土,进场后,根据总平面布置图进行道路及材料堆放及加工区划分,以便于管理。
b办公区及生活区
办公室采用金属彩钢结构活动房,房间内天棚采用石膏板吊顶。板房基础及地面:回填土夯实,C20 混凝土,随捣随抹,办公室及卫生间盥洗室地面贴防滑地砖。
办公房采用彩板搭设,彩板房搭设完成后由现场监理参与验收并挂牌,验收合格后方可投入使用。临时办公房主要为项目管理人员办公室、会议室,以及业主、监理办公室在办公室周边设置绿化,办公室内统一配备办公桌椅,会议室内配备拼装式长型会议桌,配备电脑、复印机、传真机等设施。
生活区主要包括项目部管理人员宿舍、工人宿舍及其配套功能房间三部分。宿舍为两层轻质夹心彩板房。其余配套功能房间主要包括食堂、浴室、厕所、医疗室等。
c养护室
在现场工地大门旁边建一间砖砌混凝土试块标养室,养护室内按照规定要求配置各种设备、仪表和工具。
d门卫
门卫设置在现场施工区主要出入口。门卫配备保安,日夜轮流值班,负责材料进出验收检查和人员的进出场登记。
e现场绿化及废弃物的处理
现场因地制宜进行绿化,放置盆栽植物、花草,使现场展现一个良好的施工环境。一方面覆盖裸露土层,一方面可以起到抑制扬尘,净化空气,令人舒适的作用。
f宣传牌和标语场地标识
在大门口处根据公司工地CI标准设置标牌,大门口附近设置“九牌一图”和“公司标识”施工标牌和安全宣传牌。工地现场设置文明施工和安全标语、标志、标识,警示牌,以及道路标识、场所标识、物料标识等。
g材料及加工场地
本工程材料设备按照施工进度计划分批进入现场,以减少材料设备堆放场地的面积。进入现场后,尽量直接运输到使用位置附近。
木材及木工房、库房为相对固定的临设,均沿建筑物周圈就近布置。钢筋堆放及加工区:均设置在塔式起重机回转半径范围内,以减少二次搬运。钢筋场地包括钢筋堆放、钢筋加工棚、钢筋调直场地及半成品堆场,各类钢材按不同规格堆放整齐,设置标识牌和检验状态。钢筋加工棚用工具式定型化防护棚,内设切断机、弯曲机、对焊机及加工操作平台。
5、 主要施工方法
本工程建筑单体多,遵循测量工作的基本原则,先整体、后局部,先控制、后细部,先地下、后地上的施工测量原则进行施工测量
5.1测量工程
5.1.1定位测量
根据业主提供的城市导线网点,向施工现场作附合导线(或闭合导线)一条,经计算导线合格后,采用极坐标法进行建筑物定位。导线及定位仪器采用 南方测绘NTS312B全站仪,角度测量采用一测回法,边长采用两测回测边,取其平均值,然后自检定位是否符合规范要求,若符合规范要求,报请监理进行定位校核,校核符合精度要求后,定位成果可用。
5.1.2平面控制网布设
a与业主办理测量控制点交接与复测工作,作好技术交底工作。
b场区平面控制网布设原则:平面控制先从整体考虑,遵循先整体、后局部,高精度控制低精度的原则。选点应选在通视条件良好、安全、易保护的地方。桩位必须用混凝土保护,必要时用钢管进行围护,并用红油漆作好测量标识。
c依据测绘管理部门提供的定位测量成果桩位进行角度、距离复测,符合点位限差要求后,采用全站仪坐标测量测设场区控制网,控制网桩点设在基础开挖线以外安全、易保护的地方,作为场区控制网。
d控制网布设完成后,依据基础平面图采用坐标放样的方法测设建筑物主要角点。
e为了便于控制,方便施工,建筑物平面矩形控制网布设成与车库平行的两个即独立又统一的控制网。
5.2基坑降水及支护工程
5.2.1明沟降水工序、 施工流程
基坑土方开挖工程采用明沟降水,其施工顺序为:土方开挖→挖集水井→明沟开挖→人工修坡→垫层施工→基础承台底板施工→撤部分水泵、回填部分明沟集水井→承台上部结构→撤全部水泵→回填土。
挡水坎:基坑外围应做挡水坎以阻挡地表水流入基坑,高度为300㎜,厚度为120㎜,挡水坎外侧应修成泛水坡。
5.2.2集水井,排水沟做法
集水井选择在单体建筑物的边角上,集水井施工完毕后,可以边挖土,边挖排水沟。集水井用直径400㎜陶粒管,井底铺20㎝卵石过滤层,陶粒管四周用卵石填塞,以阻止大的杂质,进入水泵;排水沟机械开挖,开挖宽度为机械开挖所能达到的最小宽度。基槽四周2m范围内禁止行车和堆物。
5.2.3基坑支护
基坑支护本工程采用土钉挂网喷浆施工方案。
根据本工程的特点放坡时,坡面采用φ6.5﹫1000*1000㎜、L=3000㎜插筋,挂钢丝网(1目)并喷射混凝土,其喷射压力为0.3~0.5MPa(混凝土标号为C20,细石混凝土配比为1:2:2),厚为60㎜,细石不大于15㎜。
a施工工艺
基坑开挖后修坡—插筋—挂钢丝网片—喷细石混凝土(养护)
b施工要求及技术措施
在机械开挖后应辅以修整坡面使坡面平整,清除坡面上的尘土。施工插筋时,应尽量垂直于坡面锤击插筋。挂钢丝网时要确保有保护层。施工中若发现地下水溢出,应及时采取堵水口或引流等措施。喷浆混凝土面层。
5.3钢筋工程
5.3.1钢筋进场检验及存放
a钢筋进场需按计划单进场,同时必须出具出厂合格证及试验报告(材质证明)报监理审核。
b钢筋进场时,应按国家现行相关标准的规定抽取试件作力学性能和重量偏差检验,检验结果必须符合有关标准的规定。检查数量:按进场的批次和产品的抽样检验方案确定。检验方法:检查产品合格证、出厂检验报告和进场复验报告。对于每批钢筋的检验数量,应按相关产品标准执行。国家标准《钢筋混凝土用钢 第1 部分:热轧光圆钢筋》(GB 1499.1—2008)和《钢筋混凝土用钢 第 2 部分:热轧带肋钢筋》(GB 1499.2—2007)中规定每批抽取 5 个试件,先进行重量偏差检验,再取其中 2 个试件进行力学性能检验。
c钢筋原材堆放在规划区域,分批、分炉号、分规格、分等级挂牌标识,标识牌注明:名称、规格、型号、数量、产地、进货日期、标识人。存放钢筋的场地要进行平整夯实,表面硬化,以利泄水。堆放时,钢筋下面要垫以垫木,离地面不宜少于20㎝,以防钢筋锈蚀和污染,如有锈蚀需预先进行除锈处理。
5.3.2钢筋加工
a钢筋的配料:钢筋的配料是根据构件配筋图,先绘出各种形状和规格的单根钢筋简图并加以编号,然后分别计算钢筋下料长度和根数,填写配料单。在设计图纸中,钢筋配置的细节问题未有注明时,一般可按构造处理;配料计算时,要考虑钢筋的形状和尺寸在满足设计要求的前提下要有利于加工安装;配料时,还要考虑施工需要的附加钢筋。
b钢筋调直:本工程圆盘条钢筋采用钢筋调直机进行调直;对于圆盘条钢筋,供货厂家在运输过程中应保证钢筋不弯曲、不变形,如果出现弯曲、变形情况,可采用锤直或扳直的方法进行调直。
c钢筋切断:钢筋切断工艺;钢筋切断机刀片安装应牢固,刀口密实;断料时应将同规格钢筋根据不同长度长短搭配统筹排料,先断长料后断短料以减少损耗。断料时宜在工作台上标出尺寸刻度线并设置控制断料尺寸用的挡板;在断料过程中如发现钢筋有劈裂缩头或严重的弯头等必须切除。
5.3.3钢筋连接
钢筋现场制作,绑扎成型,柱及剪力墙竖筋大于或等于Φ14柱竖向钢筋均采用电渣压力焊接接长,小于Φ14的柱竖向钢筋采用绑扎接长。梁纵向受力钢筋采用闪光对焊或搭接焊接,梁下部水平纵筋采用闪光对焊,上部纵筋 ≤φ22mm的水平钢筋采用单面搭接焊。小于Φ14的采用绑扎搭接。所有框架梁>φ22mm的水平粗钢筋采用直螺纹机械连接。
5.3.4机械和搭接接头具体部位
a梁底部钢筋在支座处,上部钢筋在跨中1/3范围内,接头钢筋同一断面不得超过50%(焊接)或25%(绑扎搭接),位置错开Lae。
b柱、剪力墙竖向钢筋每层楼板面上按11G101标准进施工接头,接头位置满足以下规则:
接头位置要求高于Lae,高于柱子长边尺寸,高于1/4层高。
柱子同一截面焊接数量不大于50%,剪力墙不大于25%。同一截面的概念界定同上。
c楼板受力通长钢筋接长底筋在支座处,负钢筋在跨中1/3范围内,其它短钢筋则按设计长度配料制作。
d楼面施工缝处钢筋处理;在施工缝处应增加设置施工插筋,数量为主钢筋面积的30%,长度取3.0m,两端各伸入缝内1.5m。板插筋采用Φ12钢筋,放置于板中部,梁插铁用Φ20的钢筋放于上、下受力钢筋位置。
5.3.5钢筋安装及特殊部位节点的处理
a预见性的提出和处理钢筋有关设计的矛盾问题或施工难处,需核定的要及时与设计院、建设单位联系核定,做到准确认真翻样。所有钢筋下料单及翻样处理均由现场综合技术组、质安组负责校审批准。
b梁、柱节头的钢筋均很密,核心箍不允许遗漏,绑扎确实困难的部位,将箍筋制成两个[型,待绑扎就位后,按搭接10d焊接成封闭箍。
c受力钢筋保护层厚度要按设计要求留足。
d柱的竖筋在楼面的位置加焊一层相同规格的定位箍和定位筋,以预防钢筋偏移。
e楼层负筋等安装配管完毕,再进行绑扎,楼板负筋绑扎应加Φ12钢筋马凳,间距纵横0.8m; 负筋绑扎好后,严禁在上面踩踏,以保证负筋位置的正确。板钢筋除靠近外围两行相交点全部扎牢外,中间部分的相交。

楼面板钢筋网片定位示意图
f当次梁支承在主梁上或次梁相互交叉时,除按设计加梁吊筋外,凡未特殊注明者,一律在梁侧将箍筋各加密三道,直径同主梁箍筋。
g预埋件定位
螺栓定位:在模板和预埋件上钻孔攻丝后,应用φ10或φ12螺栓将预埋件固定在模板上。
焊接固定:预埋件应焊在钢筋上,焊接时,应将预埋件外露面紧贴模板,其锚固筋应与钢筋焊接。如锚筋小或偏短,可另增设附加筋焊接。
5.4模板工程
5.4.1模板选型设计
框架矩形柱、梁采用预组拼15厚胶合板;弧形梁采用木模;楼板采用15厚胶合板。电梯井的剪力墙采用定型胶合板预组拼成大模板。内模采用组合胶合板木模。
5.4.2模板加工
a本工程木模板根据施工图纸、工程洽商进行整体模板配制;
b每块模板严格按尺寸下料,误差控制在示范规定范围内;
c木方与模板接触面先用压刨刨平刨直,然后用手刨刨光,用2m靠尺检查平直度;
d模板下料时先用钢卷尺量好尺寸,弹好墨线后,用手锯下料,模板四条侧边全部用手刨刨平,用2m靠尺检查平直度;
e将模板平铺在操作平台上,从一侧向另一侧弹好纵横龙骨边线;从一侧向另一侧钉木龙骨,钉木龙骨过程中,在模板拼缝处设置木方背楞(防止浇筑混凝土时漏浆)。
f龙骨与面板钉装完毕后,从一侧至另一侧弹出螺栓孔十字线,用电钻钻出螺栓孔。
g制作完毕后,按整体模板制作质量检查标准,由工长、质检员分别检查验收,验收合格后,按照图纸对每块整体模板进行编号后立放在模板支架上。
h按需求均匀涂刷隔离剂,等待吊装。
i模板加工中必须注意的部位:
为确保模板接缝严密不漏浆,并防止模板吸水或受热膨胀产生过大变形,以下部位必须粘贴密封胶条:
墙体整体模板之间的边搭缝;整体模板与阴角模板之间的边搭缝;门窗洞口模板与整体模板之间的接触面;梁模板与柱墙模板之间的搭接面;梁侧模与梁底模之间的接缝;柱阳角模板搭接缝。顶板模板拼装时,不允许贴胶带纸或粘贴密封胶条,必须硬拼严密,可以在背面钉木条。
5.4.3模板安装
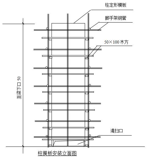
a柱模板:采用组合木模板
安装顺序:单片预组合模板组拼并检查—→第一片安装就位,设临时支撑—→邻侧单片模板安装就位(穿对拉螺栓),两片模板呈“L”形用连接元钉连接—→设临时支撑—→复检模板位移、垂直度和对角线并校正无误—→由下而上安装柱箍—→全面检查安装质量—→固定。
柱模安装的注意事项:柱模与梁模连接处,要作到接槎吻合与方正,以梁底标高为准,梁柱模板分两次支设时,在柱子达到拆模强度,最上一段柱模先保留不拆,以便于梁模连接时,接槎吻合与方正。
模板接缝宽度不大于1.0mm,模板表面清理干净并采取防粘结的措施,粘浆及漏刷累计面积不大于400mm2。

b现浇梁模板安装
安装顺序:复核梁底标高→校正轴线位置→搭设梁模支架→检查预组拼底、侧模尺寸,对角线平直度拼缝等→底模吊装就位固定→侧模吊装就位并与底模连接(≥700的梁中部设对拉螺栓)→检查梁模接口平直→卡梁口卡固定斜撑→转入上层工序流水。
复核梁底标高,校正轴线位置无误后,搭设和调平梁模支架,在支架上铺放上“—”字形梁底模,并使其就位,用扣件与支架连接固定,每根梁底模视其长短固定不少于三点。再分别吊两侧单片预组拼模板与底模拼接,并设斜撑固定,然后按设计要求起拱,在复查梁板位置标高尺寸无误后,再进行下道工序。梁墙节点,主梁和次梁节点采用木定型模板。
调直梁口达到平直。模板支杆纵横方向的水平杆间距为1m~1.5m,用铸铁十字扣件与支杆连接牢固,支杆间距为0.7m~1m,支架搭设要求立杆垂直,纵横成行,扣件拧紧适度。
梁模板安装
(梁下可采用门形脚手架或钢管)
如下图示:

现浇梁板支撑安装图
c现浇楼板模板安装
模板采用10mm厚覆膜胶合板,用100×50木枋作搁栅,间距@200,其两端将梁侧模上口顶紧固牢,竹胶板铺设好后,应检查板面标高,平整度,以及拼缝宽度。必要时可采用双面贴拼缝材料及密封胶进行嵌补。
d内架搭设
内架搭设前地面必须处理平整,支撑系统采用φ48.3×2.8扣件式钢管脚手架,立杆步距1000 ㎜,立杆下端铺垫长度不少于2 跨、厚度不小于50㎜、宽度不小200 ㎜的木垫板。横杆步距1600 ㎜,离地250 ㎜设第一道,以上每隔1200 ㎜设一道,最上部留500~800㎜高操作部位。支架搭设完毕以后,要认真检查板下木楞与支柱连接及支架安装的牢固与稳定,根据给定的水平线,认真调节支模顶托的高度,将木楞找平。
e现浇楼梯模板
楼梯梁模板采用木模板,钢管支撑固定。楼梯板模板采用10mm厚覆膜胶合板,用100×50木枋作搁栅,间距@200,其两端将梁侧模上口顶紧固牢,竹胶板铺设好后,应检查板面标高,平整度,以及拼缝宽度,必要时可采用拼缝材料,用密封胶进行嵌补
f筒体模板施工
本工程电梯筒井部分为剪力墙结构,其模板采用组合胶合板与钢管背杆拼装而成,放线后,采用Ф18钢筋将墙转角点及直段中间部分做上“撑铁”,其作用为墙模拼装后直接靠在“撑铁”上,“撑铁”的端线即为墙边线,这样做保证了墙模下部正确定位,施工时,墙筋扎完后,依照图示尺寸制作模板与钢管组合拼装而成,竖向钢管@500mm一道,横向背双钢管@600mm一道,然后上Ф12对拉螺栓,加钢管支撑,对拉螺栓纵横间距为600mm×600mm。
模板按设计尺寸进行拼装,拼装时要留足连接尺寸,对拉螺栓或对拉片位置要正确,拼装要平整,刚度要好。
模板用人工就位,就位后要用钢管架稳定,模板就位连接后进行校正,上对拉螺栓,模板校正用线锤两面吊正固定,上口拉通线校直,并用钢管锁口稳固。
5.4.4模板拆除
a现浇结构的模板及其支架拆除时的砼强度,应符合设计及规范要求。
b已拆除模板及其支架的结构,在砼强度符合设计砼强度等级的要求后,方可承受全部使用荷载;当施工荷载所产生的效应更为不利时,必须经过核算,加设临时支撑。
c模板的拆除顺序和方法:遵循先支后拆、后支先拆、先非承重部位、后承重部位以及自上而下的原则,拆除跨度较大的梁底模时,应先跨中后两端;拆模时严禁用大锤和撬棍硬撬、硬砸,拆下的模板等配件、严禁抛扔,要按指定地点堆放。用后的模板要及时清理、修理并刷好隔离剂备用。
5.5混凝土工程
5.5.1混凝土的供应
a混凝土供应
本工程均采用商品混凝土,采用泵送商品混凝土浇筑,由商品混凝土公司提供成品商品混凝土。为增强混凝土的可泵性,在混凝土中掺入适量的粉煤灰和减水剂,掺量必须经过实验确定。为保证混凝土的缓凝时间达到4—6小时,能够满足混凝土出机运至现场具有可泵送料条件,在混凝土中掺入适量缓凝剂。严禁在混凝土中加生水。混凝土入泵坍落度控制在180~200mm
b混凝土运输
混凝土从搅拌地点运送至浇筑地点,延续时间尽量缩短,根据气温宜控制在0.5~1h之内。当采用预拌混凝土时,应充分搅拌后再卸车,不允许加水。已初凝的混凝土不得再使用
5.5.2混凝土的浇筑
a浇筑准备
提前签订商品混凝土供货合同,签订时约定具体供应时间、标号、所需车辆数量及其间隔时间。特殊要求:如抗渗、防冻、入模温度、坍落度、水泥及预防混凝土碱集料反应所需提供的资料等;由商品混凝土搅拌站试验室确定配合比及外加剂用量;混凝土浇筑前组织施工作业人员进行技术交底,对重点部位单独交底,设专人负责,做到人人心中有数;提前一天提交书面商品混凝土需用计划,说明供应时间、数量、强度等级、供应速度及其他技术措施;混凝土浇筑前,仔细清理泵管内残留物。确保泵管畅通,仔细检查井字架加固情况等;运送机具:商品砼运输车、吊斗、泵送设备、翻斗车、手推车;混凝土搅拌机(当采用现场自搅拌方案时配备)、自动计量系统或磅秤;手持工具:振捣器、铁锹、铁盘、铁(胶)抹子、铁插尺、铝合金刮尺等;钢筋安装的隐检工作已经完成,并已核实预埋件、线管、孔洞的位置、数量及固定情况无误;模板的预检工作已经完成,模板标高、位置、尺寸准确,符合设计要求,支架稳定,支撑和模板固定可靠,模板拼缝严密,符合规范要求;剪力墙模板预制细石混凝土高强内撑安放成梅花型,间距为400~600mm之间,两边凹槽卡在横向钢筋上绑扎牢固,符合设计、规范要求。
b混凝土垫层浇筑 :
垫层混凝土采用天泵分区浇筑,采用平板振捣器振捣,表面抹平压光;基槽(基坑)清底完成后,钉控制桩(间距根据实际情况而定),用商砼车泵进行混凝土浇筑。混凝土振捣采用平板式振捣器振捣,混凝土振捣密实后,以钢筋棍上标高及水平标高线为准检查平整度,高的铲掉,凹的补平,用水平刮尺刮平,表面再用木抹子搓平,最后用铁抹子压光。
c混凝土基础浇筑 :
人工挖孔桩混凝土浇筑:
成孔验收合格后,用钢管脚手架吊起钢筋笼放入孔内,钢筋笼外侧固定预制的水泥砂浆垫块,以保证保护层的厚度。再安放柱子插筋,最后安装串通准备浇筑混凝土。灌注桩的塌落度控制在4-8CM,自由下落高度控制在2M,采用连续分层浇筑,每层厚不超过1.5M。浇筑的混凝土用插入式振捣器进行振捣。混凝土浇筑完12h内进行湿水养护。
管桩承台基础或独立柱基础:
可按台阶分层一次性浇筑完成,也可以按台阶分层浇筑,但不允许留设施工缝。即顺序先浇柱基的第一层混凝土,待混凝土能承受而第一层混凝土不流动时,再往返回依次第阶层混凝土。用水平刮尺刮平,表面再用木抹子搓平,最后用铁抹子压光。
条形基础或板式基础:
条形基础应根据其厚度分段分层浇筑,每段长度宜控制在2~3m距离,各层各段应相互衔接,逐层逐段呈阶梯形沿条形基础长度方向向后连续浇筑。不得先把下层全部浇筑完后再浇上一层。连续的条形基础,宜一次性浇筑完,不得留施工缝。
板式基础的混凝土浇筑应从板的短方向开始沿板长的方向,由一端向另一端浇筑;也可以分两个小组从中间开始向两端进行浇筑。
d柱、剪力墙混凝土浇筑:
柱、墙混凝土浇筑前,要先在柱、墙底部接槎处先浇筑3~5cm厚与柱、墙混凝土同配比减石子砂浆;柱、墙混凝土分层浇筑、振捣,每次浇筑厚度根据现场使用振捣棒(50棒或30棒)而定,为其有效长度的1.25倍(50棒应为43.75cm,取40cm厚;30棒应为33.75cm,取30cm厚),浇筑厚度采用尺杆配手把灯加以控制;墙洞口两侧混凝土高度保持一致,必须同时下灰,同时振捣,以防止洞口变形,大洞口下部模板开口补充振捣,后封闭洞口留设透气孔。振捣棒不得触动钢筋和预埋件,除上面振捣外下面要有人随时敲打模板检查是否漏振。墙体浇筑时振捣棒每隔6m放一台,不得来回搬动。;柱、墙分层浇筑时,在浇筑上一层混凝土前,如果遇到先留设的施工缝接头时,必须用无齿锯将施工缝边缘用切割以保证施工缝顺直,切割时严格控制切割深度,不得触动钢筋。废渣应清理干净,以免影响接槎混凝土浇筑质量。;高低标号砼分隔片安装及施工缝留设要按梁、柱、板、墙高低标号混凝土分隔施工操作工艺标准(含施工缝留设要求)实施执行。
e梁、板混凝土浇筑:
混凝土浇筑采用泵送混凝土方式浇筑;梁按框架格顺序浇筑,每个框架格先将梁根据高度分层浇筑成阶梯形,当达到板底位置时即与板的混凝土在一起浇筑,随着阶梯形的不断延展,则可连续向前推进,倾倒混凝土方向与浇筑方向相反;梁侧及梁底部位要用φ30或φ50插入式振捣棒振捣密实,振捣时不得触动钢筋和预埋件。梁、柱节点钢筋较密时要用小直径振捣棒振捣,并加密棒点。;振捣:楼板厚度<120mm可用平板振捣器振捣。振捣棒平放、插点要均匀排列,可采用“行列式”或“交错式”的移动,不应混乱。见图5-1;混凝土振捣随浇筑方向进行,随浇筑随振捣,要保证不漏振;浇筑混凝土板的混凝土虚铺厚度要略大于板厚,振捣完毕后用1.5~4m刮杠刮平,用木抹子抹平,并拉线检查板面平标高,严格控制平整度,尤其墙、柱根部;顶板混凝土用铁插尺检查混凝土厚度,振捣完毕后用3m长刮杠根据标高线刮平,然后拉通线用抹子抹。靠墙两侧100mm范围内严格找平、压光,以保证上部墙体模板下口严密;为防止混凝土顶板产生收缩裂缝,应进行二次压面,二次压面的时间控制在混凝土终凝之前进行;混凝土浇筑完毕及浇筑过程中设专人清理落地灰及污染在成品上的混凝土颗粒垃圾(配水管接消防立管)。

图5-1
f楼梯混凝土浇筑:
楼梯混凝土自下而上浇筑,先振实底板混凝土,达到踏步位置后再与踏步混凝土一起浇筑,不断连续向上推进,并随时用木抹子将踏步上表面抹平。
5.5.3混凝土的处理注意事项(含施工缝处理)
a墙体烂根:混凝土楼板浇筑后靠墙两侧100mm范围内严格找平、压光,以保证上部墙体模板下口严密。在距墙皮线外3~5mm处贴宽度≥30mm的海绵条,保证模板下口严密。粘贴海绵条距模板线2mm,使其模板压住后海绵条与线齐平,防止海绵条浇入混凝土内。墙体混凝土浇筑前,在底部接槎处先浇筑30~50mm厚与墙体混凝土配合比相同的减石子砂浆。砂浆用铁锹均匀入模,不可用吊斗或泵管直接灌入模内。混凝土塌落度要严格控制,防止混凝土离析,底部振捣应加密操作。
b洞口移位变形:浇筑时混凝土冲击洞口模板。洞口两侧混凝土应对称均匀进行浇筑、振捣。洞口模板两侧应采用钢筋或铁埋件顶紧,穿墙螺栓应紧固可靠。
c墙面气泡过多:采用高频振捣棒,每层混凝土均要振捣至泛浆,不再冒气泡,不再下沉为止。
d混凝土与模板粘连:注意清理模板,拆模不能过早,隔离剂涂刷均匀。
e低温期或冬施期间,应延长养护时间,过早拆模易发生粘连、掉角和混凝土受冻。
f施工缝的施工应符合下列规定:水平施工缝浇灌混凝土前,应将其表面浮浆和杂物清除,先铺净浆,再铺50㎜厚的1:1水泥砂浆或涂刷混凝土界面处理剂,并及时浇灌混凝土。
5.5.4混凝土的养护
a水平构件采用覆盖塑料布浇水养护的方法,竖向墙体采用浇水养护的方法。浇水次数应能保持混凝土处于湿润状态,覆盖塑料布时,要保证塑料布内有凝结水。
b混凝土表面不便浇水时,应采用涂刷养护剂的方法养护。
c混凝土浇筑完毕后,应在12h内加以覆盖并保湿养护。普通硅酸盐水泥或矿渣硅酸盐水泥拌制的混凝土养护时间不得少于7d,掺加外加剂或有抗渗要求的混凝土养护时间不得少于14d
5.6脚手架工程
结合本工程特点,外脚手架采用落地式钢管脚手架。
a安全防护外架
主体1层外围四周设双排防护外架,随一层主体上升,1层以上搭设采用专业外脚手架。
b搭设顺序
本工程采用双排外防护架,离墙距离0.200 m,跨距1.500 m,步距为1.800 m。按规定设置剪刀撑;第一排大横杆→外立杆→扫地杆→第一步纵向水平杆→第一层连墙杆→第二~七步纵向大横杆→拦杆→剪刀撑→铺脚手板→安档脚板→挂2000密目安全网→连接安全网缝隙封闭→检查验收→投入使用。
6、 工期、质量、安全保证措施
6.1工期保证措施
a实行项目经理负责制,对工程行使计划、组织、指挥、协调、实施、监督六项基本职能,确保指令畅通、令行禁止、重信誉、守合同。
b确保劳动力数量、机械配置情况和材料进场情况满足现场施工要求,为工期进度提供保障。
6.2质量保证措施
6.2.1 质量标准
质量标准达到合格,确保竣工一次交验合格率100%;达到《建筑工程施工质量验收统一标准》(GB50300-2001)的合格标准;满足合同规定的质量要求;严格实施“过程精品”,把该工程建设成为让业主完全满意的精品工程。
6.2.2 质量管理体系
建立以总工程师为首的质量管理体系,全面控制施工项目的工程质量。为了充分发挥质量管理体系的作用,保证工程质量优良,协调公司部门与项目经理部的关系,成立公司领导、项目有关人员参加的本工程施工质量控制小组控制本工程的质量。

工程质量保证体系
6.3安全保证措施
6.3.1安全管理目标
实现五无目标(一无因工伤亡、重伤和重大机械设备事故;二无火灾事故;三无重大违法犯罪案件;四无环境污染和噪音扰民;五无施工料具浪费现象)。设置专职安全员,负责日常的安全检查、安全巡视和安全教育。严格执行各分项工程的安全技术交底在前,实施操作在后。建立进场工人安全教育制度,凡进场参加本工程施工的人员,必须经过安全和治安教育方能上岗。创建宜宾市安全文明施工工地。
6.3.2 安全保证体系
按照安全管理体系建立相应的安全责任制(见项目安全管理职责系统图)

项目安全管理职责体系
6.3.3安全生产责任制
a项目经理是项目安全生产的第一责任人,对整个工程项目的安全生产负责;
b项目技术负责人负责主持整个项目的安全技术措施、脚手架的搭设及拆除、大型机械设备的安装及拆卸、季节性安全施工措施的编制、审核工作;
c项目各部门经理具体负责安全生产的计划和组织落实;
d项目各专业工长是其工作区域安全生产的直接责任人,对其工作区域的安全生产负直接责任;
e专职安全员负责对分管的施工现场,对所属各专业分包队伍的安全生产负监督检查、督促整改的责任。
6.3.4安全管理制度
认真贯彻《中华人民共和国安全生产法》,各部门要认真遵守、落实,国家、上级、本企业的有关规定,贯彻“安全第一,预防为主”的安全生产方针,履行安全生产职责,做好安全生产的预防工作。 公司总监负责全面领导工作,安全事务部经理负责分管企业的安全生产工作。安全事务部作为安全生产工作常设机构负有管理职责。各生产相关部门主要负责人为安全生产第一责任人,对本部门安全生产全面负责。职工有依法获得安全生产保障的权利,并应当依法履行安全生产义务。
7、 工程施工资料管理
凡与本工程有关的所有施工技术资料,均应为完整的书面资料,做到全面收集、顺序编号、装订成册、集中保管。主要有以下几方面资料:
a勘察实际资料:地质勘察报告、设计施工图纸、图纸会审记录、设计修改通知书、设计变更通知书、技术核定单等。
b工程项目资料:工程招标投标资料、中标通知书、工程合同书、经业主及监理工程师批准的《施工组织设计》、《施工方案》、工程施工许可证及其有关批文、许可资料等。
c业主、监理工程师方来的资料:业主的特殊要求、监理工程师的有关决定、通知、质量安全事故调查报告、处理决定等工程(量)变更决(结)算核签资料、索赔依据原始等有关资料,施工材料、设备双方交接签字原始资料等。
d工程施工资料:工程开工报告、工程竣工报告、工程定位测量记录、验槽记录、技术交底单、隐蔽工程验收记录、砂浆和砼配合比通知单及试块式压报告单、钢筋翻样单、沉降观测记录、工程列会记录、工程竣工图等。
e工程质量资料:
各项质量管理制度、措施,工程质量分析讲评会记录。;各种原材料的产品说明书、质保书、检验记录及复验记录等;各分项工程、分部工程施工质量评定表及有关质量验收记录等;QC小组活动情况、成果情况记录;有关“四新”应用情况的试验报告、应用记录等;质量检查记录、质量事故调查报告、处理结论等;材料进场验收、签字原始、产品出厂合格证、材质证明书等。
f安全生产资料:各项安全生产制度、措施、安全交底、安全生产检查记录、安全隐患整改通知书、安全生产会议记录、安全事故调查报告、处理结论、损失评估等。
g工程决(结)算资料:工程预(结)算书、工程索赔原始资料、索赔意向通知书、索赔报告、索赔计算书及索赔准可资料等。
h经济核算资料:有关经济核算制度、措施、工程统计资料、成本核算资料、材料、设备收发资料、工资奖金发放资料。
i施工日记:完整的逐日记录,包括:天气预报、施工内容、数量、质量、安全等方面的情况、原材料进、出库情况、抽检情况,以及有关领导视察工地后的指示、谈话情况记录等。
j贯彻执行公司ISO9001:2000质量管理体系文件的相关资料。
k监理单位、质量监督机关、施工单位工作往来原始资料等。
参考文献
[1]刘建荣:《房屋建筑学》武汉大学出版社,1991年版
[2]徐有邻:《混凝土结构工程施工质量验收规范》- GB50204-2002中国建筑工业出版社,2002年版
[3]桂业琨:《建筑地基基础工程施工质量验收规范》- GB50202-2002中国计划出版社,2002年版
[4]《混凝土质量控制标准》- GB50164-2011中国建筑工业出版社,2011年版
[5]吴松勤:《建筑工程施工质量验收统一标准》- GB50300-2001中国建筑工业出版社,2001年版
[6]丁士昭:《全国二级建造师执业资格考试用书》中国建筑工业出版社,第四版