【装修小区】美的城
【装修面积】110㎡
【装修 费用 】10万
【装修风格】现代简约
【设计理念】现代风格是比较流行的一种风格,追求时尚与潮流,非常注重居室空间的布局与使用功能的完美结合。简洁、实用的个性化空间 由于线条简单、装饰元素少,现代风格家具需要完美的软装配合,才能显示出美感。例如沙发需要靠垫、餐桌需要餐桌布、床需要窗帘和床单陪衬,软装到位是现代简约风格家具装饰的关键。一张沙发一个茶几一个电视柜,简单的线条,简单的组合,再加入超现实主义的无框画,金属灯罩、个性抱枕以及玻璃杯等简单的元素,就构成一个舒适简单的客厅空间。

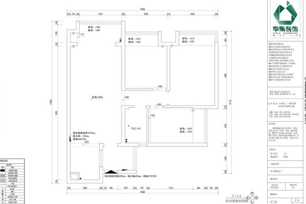
原始结构图

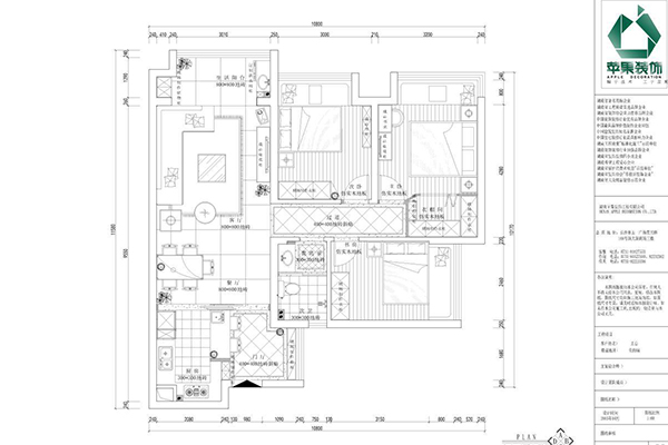
平面设计图

户型解析
① 入户处设计了两组鞋柜,方便实用,增加收纳空间;
② 主卧靠墙一侧设计了一个小型衣帽间,飘窗旁定制了成品书桌,休闲与办公两不误;
③ 厨房由原来的平开门,改成了推拉门,增加了空间的利用率。
客厅
黄色的硬包电视背景墙搭配现代软装沙发简单而大方、加上镜面玻璃扩宽了空间,显得客厅宽敞,大气。

卧室
以象牙白色调为主,硬包床头背景与山水画相称,精致的软装、简单的电视柜显得卧室简单而温馨。

设计师介绍

设计师姓名:高级设计师吴彬
擅长风格:中式风格、欧式风格、美式风格、简约风格、
从业时间:3年
设计理念:设计是一种对生活的见证和总结,见证故事,总结生活。也是一种生活态度。