Linksys EA7500 V2支持移动端对路由器进行管理,用户通过手机即可对家中的网络进行远程管理、控制。首次连接需要接通电源、连接网线,手机端通过官网*载下**Smart Wi-Fi APP,安装、注册、登录,经过简单几步即可轻松设置路由器相关选项,这里就不再啰嗦。

APP登录之后,主页面是路由器的控制面板,采用图形化显示当前路由的在线状态、WiFI网络的状态、以及已连接的设备台数等,同时主页面还可以进行访客网络的开启、家长控制功能的管理。

右滑可调出APP的菜单页面,可对路由器的相应功能进行管理,包括设备、WiFi设定、访客网络、家长控制功能、设备优先级别设置、路由器管理、以及高级设定等,点击即可进入相应的详细页面,比如设备页面,可列表显示当前已连接的终端。

随机选择MEIZU-PRO-6手机进行管理,可对其优先级别、家长控制功能细项进行管理。

家长控制功能可直接关闭该设备的联网权限、也可指定具体网络进行阻止,家里有熊孩子的话可屏蔽一些不良的网站,给孩子一个健康的上网环境。

路由器的WiFi设置页面,可对2.4GHz以及5GHz无线网络SSID、以及密码进行维护,而访客网络操作也比较简单,一键即可开启、系统默认允许5名来宾进行访问,当然你也可以设定多一些,但多的话会影响到总体的带宽。

路由器的高级设置页面,可以对路由器的端口进行转发、访问WiFI设备的Mac低至进行过滤,一般不玩NAS、服务器的话基本用不到这些东西,保持默认即可。

管理,PC端配置解析
地址栏输入192.168.1.1或者Linksyssmartwifi.com即可进入后台配置,上面已经在移动端对路由器进行了账号、联网设置,所以可直接登录。

首页布局较为整齐,配色也比OpenWRT好看多了,左侧是菜单列、右侧是信息框采用Windows磁贴卡片设计,信息量还蛮大的,有些眼花缭乱的感觉,第一次上手的话需要慢慢熟悉,主要涵盖了网络地图,访客访问,家长控制功能,媒体优先次序,速度测试,外部存储,连接,故障排除,无线,安全等10个功能。

网络地图
采用图形化显示当前的网络结构、以及连接到路由的各个上网设备,以及过滤地图选项,你也可以添加设备,也可以查看访客访问,较为直观,点击相应的上网设备可显示该设备的具体情况、并可对其进行管理。

访客访问
与APP端的访客设定较为相似,可以设置访客访问WiFi的SSID、密码、以及访客的人数。

家长控制功能
PC端可以为家长开启更多的控制功能,比如除了设定孩子可以访问的网站之外,还可以限制孩子的上网时间、可具体到每一天和一个时间段以内,只需要选择孩子的上网设备的名称进行阻止即可,较为实用。

速度测试
该页面可以测试当前的网络的上行带宽和下行带宽,一键可操作。

连接设定
包括基本设置、外网连接设置、本地网络设置、高级路由设置、VLAN、以及其他设置管理,对于家庭用户来讲,只需要进行基本设置以及外网设置即可,包括WIFI密码修改、SSID维护、拨号方式、账号、密码等。


故障排除
该页面可查看设备的状态、诊断故障、以及详细的日志记录,以了解故障原因。 目前未曾遇到故障,故还未做体验。

无线网络
主要是对WIFI的相关设定,包括基本的WIFI SSID、密码维护、Mac低至过滤、以及WIFI开关的预先安排等。

安全选项
可对包括防火墙、DMZ、端口管理等内容进行设定,作为一款兼具商业用途的路由来讲,防火墙以及VPN是必须的,但不建议开启DMZ主机暴露于外网就相当于把门摆到了黑客的面前,至于端口管理如果玩NAS、游戏、远程控制的话还是比较实用的。

性能
作为一款高端旗舰路由器,且不论颜值高低,信号好才是衡量一款好路由的重要标准,Linksys EA7500 V2 采用双核ARM处理器MT7621AT + 2个协处理器,支持4个千兆LAN口、支持最新一代802.11ac Wave 2无线标准,搭载128MB NAND Flash + 256MB DDR3 RAM ,与SPI闪存芯片相比,NAND闪存的速度更快,确保系统的启动速度和程序响应速度,256M的运行内存可保证多任务数据流并行处理的稳定性,让我们一起看下它的实际表现如何。

实测,无线信号强度
测试终端说明
-
测试软件:Chariot_Endpoint、WirelessMon专业版、WIFI分析仪
-
终端平台(手机端): OPPO R9s
-
SSID:Linksys_2.4G、Linksys_5G
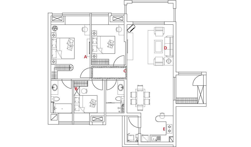
家里在用的是ASUS千兆路由,3跟高增益天线效果也是杠杠的,下面就一起来看下Linksys EA7500 V2 与ASUS千兆路由的实际信号表现,通过WIFI信号分析工具进行比对,路由放置在A点,在B点、C点、D点、E点分别使用wifi分析仪进行2.4G、5G两个频段上进行信号测量,取得稳定值,测试前将无线状态保持默认出厂状态。

测试环境示意图

由于测试选取家庭应用场景,无线信号干扰较多,存在很多不确定的因素,因此测得的数据也会存在一定差异,测试所得数据仅供参考。
A点实测

B点实测

C点实测

D点实测

E点实测

A点距离路由器最近,信号强度两台都不错,B点在C点两台路由的信号都有衰减,相差不大,2.4G信号两台都能稳定在-50dB左右,但5G信号Linksys EA7500 V2明显要好一些,比ASUS千兆路由高处8dB左右,此时连接Linksys EA7500 V2路由器上网、网络视频、网络游戏基本无压力,王者荣耀延迟约60ms左右。

而在D点、E点由于隔着2堵墙,两台路由器的信号都有所衰减,2.4G信号基本能维持在-60dB左右,而5G信号衰减较大,Linksys EA7500 V2维持在-80db左右,而ASUS千兆路由大约在-90dB左右,穿墙方面Linksys EA7500 V2略胜一筹。
实测,千兆网络数据传输
Linksys EA7500 V2的千兆网络传输性能如何呢?下面结合NAS来实际看下。
NAS是自己DIY的一台小主机+Win7,华硕E35MPRO主板,支持SATA*5 + + eSATA*1 + USB3.0*2 + 4G内存 + 海盗船的ATX 430W 电源 + 立人D5小机箱。

为排除其他干扰,NAS与笔记本直接通过千兆网线接入Linksys EA7500 V2路由器,从NAS直接拷贝高清电影文件来测试读写速度,实际拷贝2.8G的《疯狂72小时》。

经实际测试,从NAS读取速度为约为96.1MB/s,写入速度大约85.7MB/s,基本是满带宽传输,千兆转发性能比较出色。


实测,USB外挂硬盘传输
Linksys EA7500 V2外置USB3.0 + USB2.0接口,外接一块移动硬盘可以很方便当作一台家庭媒体服务器,但如果读写速度过慢的话,看高清电影时很可能会卡顿,下面就通过SAMBA共享读写外挂SSD移动硬盘的数据传输进行测试,很遗憾SSD搭载的是一台USB2.0的硬盘盒,所以接到路由器的3.0口和2.0口速度都是一样的,实际读写速度如下,大家感受一下。

读写速度差不多都在86MB/s左右,与专业NAS速度差不多了,总体来说Linksys EA7500 V2的接口读写能力让人比较满意,硬件性能较为出色。
总结
作为一款定位中端市场的智能路由器,Linksys EA7500 V2不仅配置出色,性能也同样可圈可点,每天都会用到的无线传输性能方面,已远远超越同价位的AC1900、直逼AC2600,实测110平米家庭环境可轻松覆盖、信号强度也没有问题,有效解决无线网络缓慢的问题,让家里的小水管也有大流量的体验,而799元的售价,可谓是好用不贵、物所超值,该产品目前在京东众筹中,价格更实惠,有需求的朋友不妨关注一下。


