深圳龙岗智慧家园位于龙岗区宝龙科技城核心区域,作为龙岗区重点打造的战略性新兴产业园区,是龙岗26个创新产业系列园区之一,定位为产、学、研一体化的公共技术及创新平台、产城融合示范基地和东部技术创新中心。智慧家园以打造开放式、智能化、生态型新型园区为目标,通过立体交通、复合功能、生态节能、趣味公共四个设计思路切入,实践立体城市的构想,打造集办公研发、商务、人才公寓及完善服务于一体的生态智城。

整体鸟瞰
深圳龙岗智慧家园主要功能为厂房建筑及配套设施(办公、宿舍及食堂)。项目在设计过程中充分体现可持续发展的设计理念,结合城市产业结构,将厂房单元模块化,设计标准模块的尺度,并配以办公、宿舍及食堂等多种功能复合的产业配套,可根据功能面积的需求,通过模块之间的衔接,形成不同面积的模块组合,使其可以满足当下及未来不同需求的轻型厂房办公条件。
虽然处在城市的新兴区域,项目仍面临自身区位带来的诸多问题,既是挑战也是机遇,建筑师在各种制约中,找到了项目的最优解决方案,将高密度建筑与多层次的公共空间有机地结合,增加配套设置,增强园区的公共性,营造活力街区。

中心庭院
龙岗区正在开发以及规划中的产业园区面积巨大,智慧家园项目占地面积约3.7万平方米,在容积率高达6.0的限制下,如何合理配置总面积30万平方米的高层与多层建筑,实现分期开发,并结合城市设计原则,创造层次丰富的天际线,是设计解决的首要难题。项目整体采用塔楼点式布局,减少对视,错落排列,使得分期开发(西侧为一期,东侧为二期)中建筑群各具独立性和地标性。
其次,项目所在的龙宝大道,街道界面被围墙和绿化封闭,缺少丰富有趣的步行氛围。针对这一不足的解决方案是,将建筑体量线性设置,形成了平行于龙宝大道的第二条步行道,引入商业,提供“穿行”与“绕路”的乐趣,丰富街道界面,提升社区活力。

园区鸟瞰
同样的设计理念也延伸到了整个园区:一、二期之间建筑塔楼可通过空中连廊连接,增加步行可达性。建筑底层部分架空,设置下沉式庭院,建筑边界设置骑楼,沿公共交通轴线形成尺度舒适的人行街道空间,并布置有食堂、大堂、配套办公等多个公共开放空间,建立起立体化的办公商业配套系统,既满足园区内的需求,也可服务于周边,弥补所在区域的不足。
整体高低错落的建筑布局,以向内围合方式,勾画出中间丰富的围合庭院与屋顶花园空间,创造开放性、渗透性、人性化的办公环境。景观沿地块沿线以及中央下沉式庭院、屋顶花园进行综合布局,步移景异,形成多层次的立体花园,丰富步行体验和绿化效果。

空中连廊及街道露台

架空大堂
建筑外立面单元板块外侧设置了大量不同类型的遮阳 构建 ,其相互组配形成矩形或Z型装饰效果,统一了园区的建筑形象,并减轻了高密度园区巨大建筑体量的压迫感,使建筑整体充满了现代感及动态感。夜间照明设计和部分室内设计也采用了同样的主题,使建筑设计连贯而统一。

建筑立面细节
建筑东西向相连处,设计“切口”式天井,用狭窄的空间实现“自遮阳”。建筑外立面采用双层中空Low-E玻璃,具备高透、隔热、隔音等特性,不同朝向的建筑外立面采用不同的设计,南向采用水平垂直双向遮阳,东西向垂直百叶旋转角度,综合解决遮阳问题。同层设置高低开启窗,低进高出,形成对流导热,充分体现生态节能,降低建筑能耗。

室内大堂
项目建成以来,一期已入驻企业超25家,其中研发办公空间约6.6万平方米。二期研发办公空间约8万平方米,轻型厂房约4.4万平方米,并配套240套公寓,为企业员工量身打造有2.2万平方米的多元商业配套。项目以国际高端技术产业发展、教育科研成果转化为导向,重点强化公共服务、商务配套及创新平台功能,引入龙头企业,打造深圳东部站位国际高度、辐射深莞惠的产、学、研一体化的智慧园区。
技术图纸

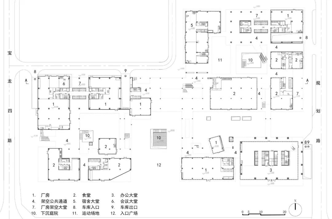
首层平面图

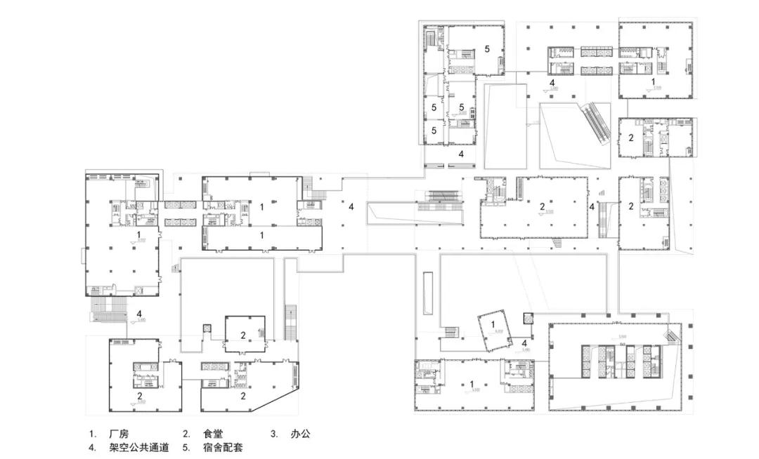
二层平面图

A-A剖面图
项目档案
项目地点:广东·深圳·龙岗区
客户:深圳市龙岗城市建设投资集团有限公司
设计单位:深圳市欧博工程设计顾问有限公司
设计范围:设计总包(建筑|景观|结构|机电|室内)
主要功能:办公|产业配套
总用地面积:37015.98 ㎡
总建筑面积:291617 ㎡
设计|竣工年份:2013|2019
摄影师:张超