要闻速递
9月20日,广州发布《关于消费贷管理、防范信贷资金违规流入房地产市场》的通知:严禁个人消费*款贷**资金用于生产经营、投资及支付购房首付款或偿还首付款借款等行为,不得发放无指定用途消费贷;个人综合消费贷最高额度不准超过100万元,最长*款贷**期限不得超过10年,消费贷将被彻底收紧。
点评:全面收紧
9月20日,国土部、住建部联合发布《关于房屋交易与不动产登记衔接有关问题的通知》称,不动产登记机构和房屋交易管理部门要加强配合,防止小产权房通过不动产登记合法化。
点评:问题多多
9月20日上午,南京市网拍形式出让7幅地块,包括雨花台区2幅,江宁区1幅、建邺区1幅,*合六**区3幅,其中涉宅用地占据4幅。7宗土地总出让面积32.1万平方米,7宗地块共收金约89.41亿元。
点评:迅速放量
9月20日,长沙市正式对外公告《长沙市住宅用地“限房价、竞地价”试点操纵规则》,意味着长沙土拍市场正式进入“熔断+摇号”时代,土地交易的最高限价按不高于土地挂牌起始价的150%综合拟定。
点评:已经不低

克而瑞数据显示,2017年1-8月,北科建泰禾丽春湖院子以成交289套、成交总金额46.8亿的业绩,夺得了北京商品住宅排行榜和全国别墅项目排行榜双料冠军。
丽春湖院子位于昌平沙河,仅从地理位置来说并不算十分优越,周边的商业配套也相对匮乏,而且从开盘至今经历了两次调控节点。
项目能取得如此热销,只能说明大家更看中的是项目本身。出众的产品力无疑是重要原因。
1
低密度合院,纯别墅社区
得益于地块1.05容积率以及地块无需配建政策房,丽春湖院子能够将项目打造近年来市场上为数不多的纯粹低密别墅社区。
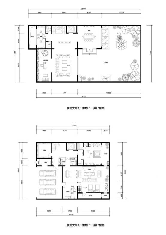
项目首期主力产品为面积区间段440-568平方米(建筑面积)的合院产品,每套空间都分为地上三层加地下二层。
丽春湖院子所有的产品均为独门独院独户设计,而且是精装院落交付。
合院分前庭院、内庭院和上庭院三重精装院落,在确保居住功能分区的情况下,又能让每层都有不同景观。而且项目经过反复论证,将围墙高度定在3米,既在一定程度上保证了住户的私密性,又不妨碍地上、地下采光及观景。

2
11.8米大面宽,270度采光
丽春湖院子合院产品最大面宽达11.8米,最大程度地实现了室内采光,增强了室内的空间尺度感,而且可以保证站在窗口尽览院内外的风景。全四室设计,加强了住宅的功能属性,家庭成员可以各自实现功能归属和分区,并且有居住的尺度感。

此外,合院产品同时赠送双车位,定制匾额和精装门头也是该产品的亮点之一。
值得一提的是,丽春湖院子后期主推的景观大院产品是项目产品力最强的一个。项目产品面积区间为755-888平米(建筑面积),也是地上三层、地下二层,双首层双花园;采用前三后四形制,赠送南北双庭院、三车位,整个院子被7米院墙围合,而且观景大院附有290-1000㎡超大私家庭院。

整个景观大院呈坐北朝南的仪制,而且每栋建筑都采用超大型窗体,地上实现四居,其中三居南向,在提升空间利用率的同时,部分空间得到了270度采光;在景观大院的地下两层,设计了南北两个采光井,使地下的两层空间也能够受到阳光照射,整个产品不仅显得通透明亮,而且观景效果明显,室内日照时间非常充分。
3
五重定制领域,创新主题园林
丽春湖院子景观大院在设计室内格局空间是,将家庭成员成长周期考虑在内,因此预留了各类空间,并对室内空间进行了五重定制规划,来满足业主家庭成员在不同时期的生活需求。
五重定制领域分别为分别规划孝亲层、亲子层、主人层、宴宾层、私享层五重定制领域,各重领域分工不同,“孝亲层”有中西双厨可满足一家三代在用餐时的顺畅交流;“亲子层”全套房设计,卧室和活动区可实现切换;“主人层”有南北双向露台,观景功能较强;“宴宾层”酒吧、茶轩、书房、家庭厅等一应俱全,兼具多种功能;“私享层”则具备储物间、娱乐区、活动室等多重属性。

作为泰禾院子系的新一代产品,丽春湖院子不仅继承了院子系的精髓和必要元素,而且实现了别墅项目主题化的创新,形成了项目自身IP。

为打造北方最具江南风韵的院子产品,丽春湖院子特意归纳了匠心十二则例。这十二则例分别是三进门第、五坊八巷、丽春五景、院落围合、中式漏窗、三重庭院、精装门头、定制匾额、曲阳抱鼓、匠刻雕工、青瓦立铺、花街铺地,其中五坊八巷、丽春五景最为人知。

丽春湖院子的五坊八巷、丽春五景之所以为人们津津乐道,是因为两者将最具江南风韵的事物和元素呈现出来,并且巧妙地根植于了北方院子之中。
以五坊为例,项目坊名取自江南最具代表性的风物“红菱、锦鲤、碧荷、紫笋、青梅”,而且每一个风物所形成的坊都是这个元素所组成,
如果是锦鲤坊,那么这坊间的一切包括坊门、护柱石、墙雕、漏窗等也都会跟锦鲤有关。
丽春湖院子引入江南主题的意义重大,不仅让项目产品的设计和打造有了明确的方向,还让项目自身拥有了独特的产品特色,又形成了与其他别墅产品的差异化。对北京的高端市场而言,丽春湖院子带来了新的打造方法和思路,这无疑是一次成功的进步。
责任编辑 房君
/ END /