
这套案例的业主是一对90后的小夫妻,一眼望去,北欧风的清新感扑面而来,再一眼却又品出了一些不一样的感觉。设计师将“烟火气”融入整个设计中,*翻推**了北欧风固有的设定,少了些寡淡,多了点热闹,用烟火气玩出了北欧风的高级感。
【案例信息】
建筑面积:95㎡
房型结构:2+2+1
设计风格:北欧
设计施工:朗观装饰设计机构
设计团队:王峰团队

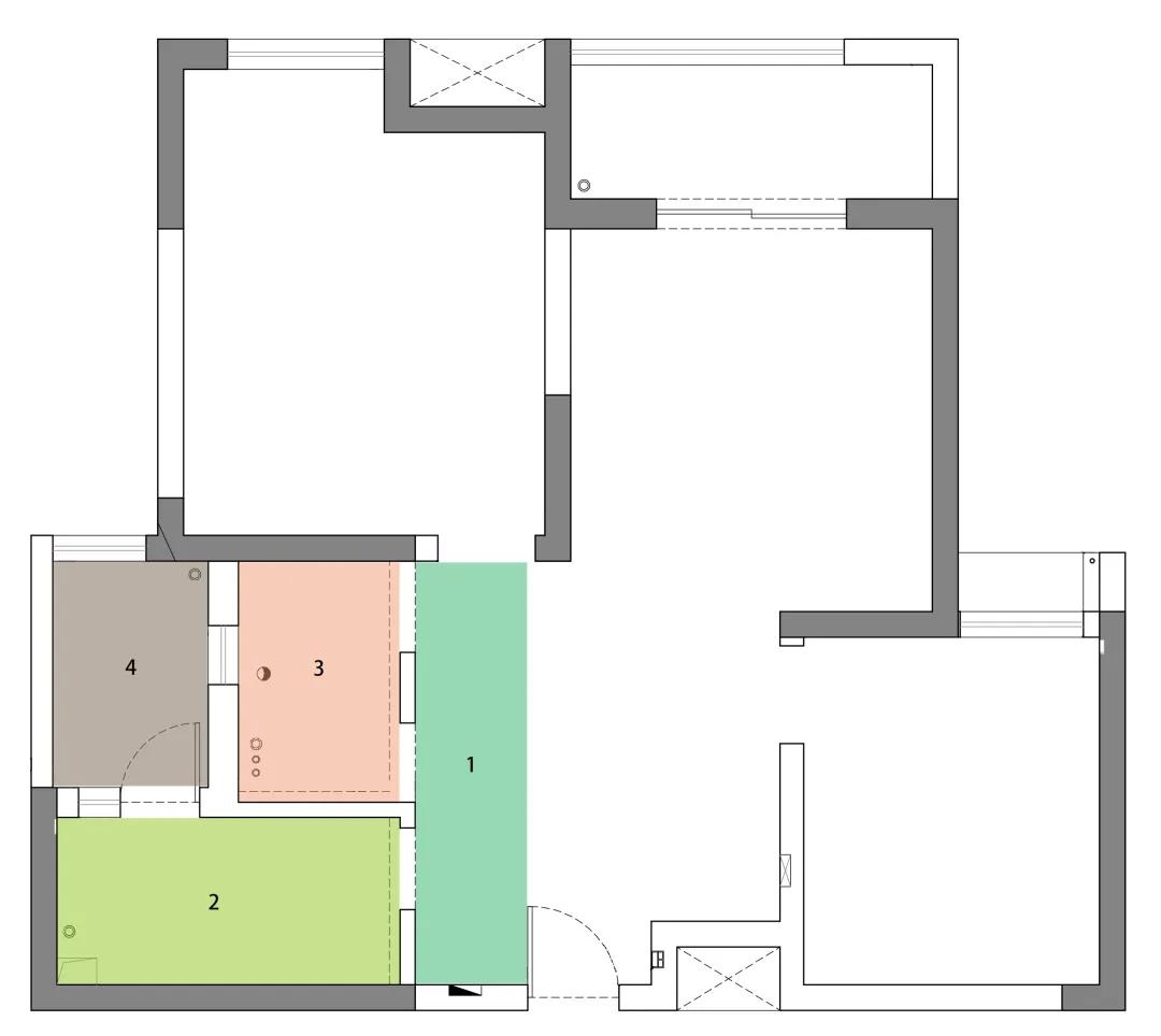
原始结构比较方正,由于套内面积有限且承重墙较多,设计师将合理利用空间面积作为重心,并将厨卫区域作为改造重点:
1、进户门可以看见主卧门,并且过道面积存在浪费问题,需要改善;
2、业主想要开放式厨房,原有封闭式厨房面积较小;
3、现有卫生间面积较小,不满足业主三分离卫生间的需求;
4、北阳台较为鸡肋,后期可以加以利用。

原始户型图
设计师将厨卫区域格局打破,重新划分区域,改造亮点:
1、充分利用过道面积,打造开放式厨房,并利用隐形门,解决进户门正对主卧门的问题;
2、餐厨一体化设计,动线合理;
3、将北阳台纳入卫生间,并进行三分离设计,打造干湿分离的卫浴空间。

彩平图

/客厅/
Living Room 设计
客厅墙体采用沉稳的浅灰色作主色调,搭配蓝色的功能性沙发,轻巧的木质家具,简约的装饰物,以简单的样貌给人一种舒适自由的感觉。


根据业主需求,以投影仪取代电视,以开放式木制储物架替代传统的储物柜,美观又实用,搭配绿植葱翠,空间更显生机活力。



/餐厅/
Dining Room 设计
餐厅面积小,设计师没有过多的装饰,一套木质餐椅与客厅的木质家具相呼应,保证空间整体性。同时靠墙部分用长条凳解决空间问题,满足用餐的仪式感。


墙面的强电箱和弱电箱影响美观,所以用了“小松鼠捡松子”两幅相呼应的装饰画做掩饰,简简单单的两幅画增加空间的灵动性和趣味性。



/厨房/
Kitchen 设计
餐厨位于同一区域,整洁干净的厨房为用餐提供了一个理想的环境,将烹饪和用餐两个场景捏合在一起,营造出其乐融融的家居氛围,烟火气十足。


厨房选用小白砖和木质橱柜的组合,与吧台形成天然的U型结构,不仅可以增加厨房的操作面积,还可以进行简单的用餐,开放式的空间,很适合小夫妻的婚后生活哦~


/卧室/
Bedroom 设计
主卧:在厨房的对面,由于进户门正对主卧门,所以设计师利用隐形门解决这一问题,同时背景墙采用了木饰面增加空间质感。

主卧背景墙的墨绿色,是业主和设计师斟酌好久才定下来的,颜色新颖,质感十足。卧室的布置突显舒适和功能性,搭配柔和的灯光设计,营造良好的入睡环境。



考虑到实用性,衣柜选择了推拉式柜门,不会占用衣柜内部空间,同时也不影响床头柜的使用,是一种有效节约空间的做法。


书房:延续了主卧的格调,同样用墨绿色做主色调,一张简单的书桌,时尚静谧的书房便脱颖而出。



/卫生间/
Toilet 设计
卫生间是这次设计中最大的亮点,干区、湿区、马桶间三分离设计,功能完善,空间互不干涉。

为保持空间的整体格调,干区延续了厨房的风格,墙面六边形瓷砖搭配圆形镜,时尚感十足。

干区的左右两侧分别是独立的淋浴间和马桶间,淋浴房应业主要求,增加了小坐缸,空间也不会太挤;马桶间虽然空间不大,但旁边的窗户又增加了空间感。

/细节/
Detail 设计








家的温馨之处,就在于设计让它有了故事和情感。不将就,才是最好的人生,带着烟火气的家,才是最难得的幸福。