每一次的设计任务都是解决问题,寻找答案的旅程。室内设计是理性过程创造感性结果,每次设计我们都有一些已知的“依据”,通过解析这些“依据”我们距离合理的答案会更近一步,但是每个设计师的知识深度和广度是不同的,所以答案也是不同的。
接下来,分享一个空间的设计过程,为大家带来一些思考与启发。
酒店公寓户型案例
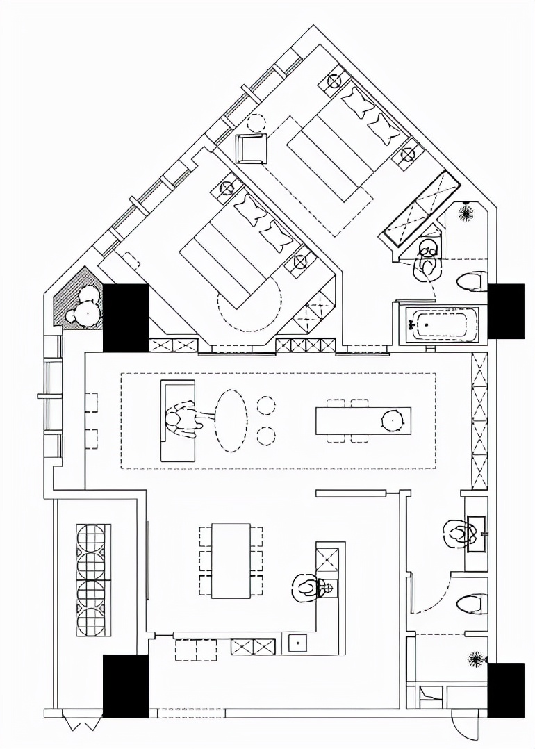
这是酒店公寓其中一个户型方案,我们将从以下3个方面进行分析:从 图1到图3的设计过程分析 、 如何避免图2的设计 ,最后 分析图2与图3的差别 。
▼ 图1


▲ 图2
▼ 图3

项目基本信息依据:
1、项目性质:酒店公寓
2、项目概况:一栋有点异型的建筑,共13层,每层10个户型,每层约计1100㎡

沙利文说:形式追随功能!
什么决定功能呢?首要的绝不是所谓甲方的“需求”,这个太浅显和初级,我个人比较倾向 “本质”,“拨开云雾见天日”事物本来的样子,这个空间本来就应该是这样的。
什么是“酒店公寓”?
首先酒店公寓是中短期租赁为主,面向的群体虽然比较多样化,但还是以外国友人居多,比如欧美/东亚/东南亚等企业高管,其他商务/旅行/留学等等,当然也有国内客户,比如作家/异地商务人士/高考生等等,明显以上群体“不缺钱”,群体的消费能力决定着甲方资金投入。
酒店公寓的性质是什么?
酒店公寓是一个“短期的家”。它不是酒店的临时“客房”,它也不是以办公为主,居住为辅的SOHO空间。它不是真正的长期的“家”,这个家的主人可能几个月就会换一次,他们有不同的喜好、学识、品味、文化背景、宗教信仰等,所以我们定位“现代空间”还是很合理的。
“现代空间”能有效地避免一些问题,让这些拥有不同背景的消费群体和空间更有契合感,但是在整体设计基调定位上我想加入一些“中国范儿”,原因很简单,这里是中国,让短期的主人们感受到东方文化的魅力,打造一个“现代禅境空间” 。

酒店公寓和家装住宅/酒店/SOHO有什么不同?
酒店公寓的功能看似和家庭住宅/酒店/SOHO类似,但功能尺度因为使用群体的不同而不同。比如厨房的形式和尺度,亦或者对于储藏的需求,所以酒店公寓和以上空间的不同点在于——有一些功能是要强化,反之有些功能是要弱化的。
主要功能分区:卧室/起居室/卫生间/西厨/餐厅/水吧/工作区/门厅
我们可以根据总面积合理的计算出配套功能面积和房间数量。
配套项目:餐厅/酒吧/游泳中心/健身房/按摩SPA(正规的)/洗理中心/日常购物超市/等等。
这些配套功能需要3层,其余作为公寓,房间数量约计为100间。这无论对于设计层面、施工层面、采购物料、后期维护环节都是一个考验,所以公寓房间需要“元素高度统一性”。
通过简单的分析我们得出:
1、以现代为主,辅以东方元素的空间格调,更适合主要消费群体
2、房间功能区的定位(面积比例与其他空间的区别)
3、配套空间与客房区的面积比例
平面方案规划
现在来看一下其中一个户型,从空间本身与上述分析结果结合进行平面方案规划,从“点”开始寻找答案:

▲ 图4
“建筑的形式/质感/材料/光影/色彩,当这些要素汇聚在一起就能够表达空间的品质和精神。建筑的品质决定于设计师运用和综合处理这些要素的能力,室内空间和建筑外部都是如此。
——培根 (城市设计)
建筑或室内设计是一个三维度甚至多维度的空间,作为一个设计师要处理如此之多的复杂要素,我个人更倾向于从一维度和二维度开始再到三维度空间。那就是点/线/面/体,点线面体是概念性的元素,它们看不到摸不到,但我们的脑子可以感知到,当这些概念性的元素在三维度的空间被我们赋予材料/质感/色彩/光影,就变成了可见的!所以在室内设计的过程中我们首先要感知和识别这些概念性的点/线/面/体。
图4 中的点和虚线是感知到的(当然还可以感知到更多),这些被感知的到点线面可以转换成无数的空间组合可能性这个图中会有多少种可能?在转换的过程中我们一定是有限制条件的。
主要功能分区:卧室、起居室、卫生间、西厨、餐厅、水吧、工作区、门厅。
要把以上功能分区合理的放置在空间中,所以我个人感知到这样一个空间组合(粗略的区块功能),绿色区域作为卧室空间/ 紫色为起居室和水吧区 /黄色为西厨和餐区/ 蓝色为卫生间 。

那么,怎么去验证这种组合是否是合理的呢?
无非就是空间的通风采光、功能区比例、动线、施工可能性等方面。
深化细节最终版平面格局

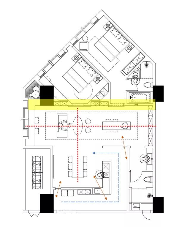
两版方案的差别
说一千道一万,前端的分析与梳理很重要,但无论多么的精彩,最终都要体现在方案细节上,让我们来对比一下两版方案的差别。

图2方案——平面布置只能叫“图”而不能称之为“方案”,致命伤太多:
1、空间公共区域几乎没有采光;
2、功能区面积比例非常不合理(类似大头儿子小头爸爸一样的设计);
3、空间动线凌乱,没有很好地切割与串联功能区。

图3方案——优化之后的方案改进了原来的一些缺点:
1、所有空间具有良好的采光(包括进门都有二次采光的渗透);
2、公共区域采用“纵横轴”布局,让空间规整严谨,不凌乱,使空间在视觉与心理上更“大”;
3、刻意延长进门动线,让空间有“曲径通幽”之意,尽头“豁然开朗”之感,橘黄色双箭头处,增加内外空间的互动性;
4、黄色区域的墙体比较“碎”,所以门体设计成“画”与展示柜体结合,力求空间的完整与协调,让构件不仅承担功能的作用,在形式上也发挥出最大的潜力。
工作中有人会经常问到一个问题:为什么我们做助理设计师,特别用心,做的工作是最多的,量房,做图,跑工地,加班等等,而设计师很轻松,几乎什么都没做,就是与甲方沟通,给我们指挥一下,却拿走了大部分的收益呢?
提出这个问题意味着发问者没有明白:室内设计的底层逻辑是什么?
如果这事儿没搞明白,那意味着在将来的工作中,成长为一个优秀的设计师概率会特别低。
室内设计与艺术的不同
在审美和理念上两者有重叠和交叉的地方,但 艺术 是人与灵魂的对话,是人性深层次的一种需求,所以艺术是唯心的、主观的、小众的、虚幻的,甚至是不被理解和接纳的。
室内设计 是以人为本、以人为尺度,它是“ 真实的“,所以它的底层逻辑是“解决问题”,解决人与人、人与环境、人与社会的问题。解决问题的核心不是“我很用心”“ 我有态度”“ 我真辛苦”“我怎样怎样或付出了什么 ”。
核心是扎实的文化底蕴,全面的知识系统,理性的逻辑分析,这几个维度的综合运用,把问题解决。也就是: 助理只是方案的制作呈现者,所做的东西不具备核心价值,并没有为解决问题提供思路与方法,而设计师提供了,知道为何而做,是解决问题方案的创造者,所以利益分配不会平均。