最进公司又包小区了,北湾新城的业主有木有要装修的,赶快联系我啊,私聊,私信,关注私信我
这些天我都是在工地,很忙,今天抽空上来给你们分享。
感谢索尼装饰
感谢设计师:祁女士 提供的设计案例
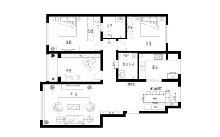
小区:伟峰东樾
面积:150
风格:地中海
喜爱人群:25-35左右。

1:复古吊灯,叠级背景墙,蓝白格子窗帘,复古地砖,米黄色墙面,典型地中海风格表现。


2:蓝白条的沙发背景墙,强烈的体现的大海蓝天白云的感觉






喜欢的,关注公众号,索尼亚装饰吧,谢谢
我是长春装修小达人张春旭。
最进公司又包小区了,北湾新城的业主有木有要装修的,赶快联系我啊,私聊,私信,关注私信我
这些天我都是在工地,很忙,今天抽空上来给你们分享。
小区:伟峰东樾
面积:150
风格:地中海
喜爱人群:25-35左右。

1:复古吊灯,叠级背景墙,蓝白格子窗帘,复古地砖,米黄色墙面,典型地中海风格表现。


2:蓝白条的沙发背景墙,强烈的体现的大海蓝天白云的感觉






喜欢的,关注公众号,索尼亚装饰吧,谢谢
我是长春装修小达人张春旭。