想买大平层?请留意最新趋势。
如今,长沙土豪们钟爱的大平层豪宅不单单满足于“从小到大”,而是已经演变为“从大到好”。
Part 1
大平层“从大到好”的革新
还应考量“空间格局”和“居住价值”
显然,这种变化是有因可寻。
而且伴随着各种政策、环境因素的持续发酵,这种变化还将越来越明显,“从大到好”的革新大平层,将有更大的市场空间。
- 一是,长沙是出了名的Z严调控城市,在限购限售的大环境下,房票重于钞票,一步到位的改善置业,成为购房者的首选。而且大平层总价通常都在400-800万之间,花高价买的豪宅,如果居住体验不佳,想要再次置业,不仅短期内没有购房资格,还要增加后期置换成本;
- 二是,二胎家庭普及化,三代同堂对多房的要求就显得非常迫切,三房升级为四房或五房也是一大趋势。如果遇到大而不好的房源,即便能降低你的换房成本,但也很难实现换房愿望;
- 三是,疫情之后,购房者对室内空间的舒适度,有了更高的要求,更进一步明确了“房子是用来住”的功能属性。家的宽阔尺度和品质人居,成为后疫情时代的置业准则,更能打动人心。
市面一些功能单一的大平层,其“大”只是纯粹面积大,进而拉高总价。
相比这些大而无用的大户型,那些真正拔尖的“大而好”的大平层产品,在空间格局和居住价值上做了很多加法。
是的,这个刷新大家对豪宅认识的突破者之一,正是运达锦绣广场!

(运达锦绣广场项目效果图)
高于市面的豪华装修、阳光大草坪、高端会所、全明车库、星级物业服务……成就了运达锦绣广场无可争议的标杆形象。
极具“华为品质”的硬核产品力,也代表了本土房企——运达集团,不断刷新人居高度的积极姿态。
Part 2
风头横扫长沙楼市的大平层
单月狂销2.31亿,问鼎长沙县销冠
运达锦绣广场,从去年下半年入市,目前仅剩最后一栋大平层将推,及少量建面约112-152平小户型在清售,很快就要卖完了。
在最近一次开盘,64套285平的大平层,单价接近14000元/平,直接秒光!
悉数 那些傲人的成绩:从首开前夜购房者深夜排队买房,到每次开盘现场众人争抢,再到上个月平销期狂卖2.31亿问鼎长沙县销冠,运达锦绣广场创造了不少楼市热销传奇。
扎实的数据和惊艳的市场表现,再一次印证了:运达出品,必属精品!


(来源:克而瑞长沙)
运达集团,是长沙高端豪宅的先行者,对于产品力的研磨,在长沙无出其右。
毫不夸张的说,长沙爆款D豪的基因,运达锦绣广场几乎统统具备。
到底有多震撼?以下悦君来带你逐一揭秘,运达锦绣广场是如何实现“从大到好”的革新:
好社区:全新升级
革新,意味着升级,意味着更好。
运达锦绣广场“由大到好”的升级,不仅落实到产品本身,更是渗透于项目公区、样板示范区、甚至是容易被忽略的地下车库,对于每一个细节的把控无不让人折服。

(运达锦绣广场营销中心实景图)
与市面上众多项目不同,运达锦绣广场做到了配套先行。
住宅还未售,超2000平高端会所就已建好(涵盖健身、游泳、餐饮、阅读、茶吧等功能于一体),运达旗下的喜厨餐厅也同步开业,提前兑现了对业主美好生活的承诺。
也正因为如此,使得运达锦绣广场未开先火,营销中心一度成为行业人士集体打卡学习的网红点。

(运达锦绣广场会所实景图)
在园林打造上,近6万方阳光草坪,超宽楼间距,约800平游乐场,约1000米光跑道……为空间赋予宜居价值。
其中,6万方阳光草坪,以运达中央广场为蓝本,欲打造2.0版,未来住宅小区里,就如同住宅公园里,且看四季常青。


(运达中央广场园林实景图)
在地下车库打造上,更为让人惊叹。因为,越是看不见的地方,越是考验功力。
运达锦绣广场,为了缓解南方阴雨天气带来的潮湿影响,把车库建在阳光照的到的地方,创新性的打造“阳光停车场”,引领长沙楼市新方向。

(运达锦绣广场阳光车库效果图)
整体来看,运达锦绣广场,不断做增配,追求更好的社区环境,能一举征服改善买家,也在情理之中。毕竟像这样无可挑剔的住区,谁不爱呢?
好户型:“由大到好”
在说产品之前,还想重提一下运达这些年的耀眼履历:运达中央广场的二手房在长沙一度领涨,且一房难求;去年单套最低总价1600万元起步的运达摩天公寓创下2019年楼市公寓销冠……
热销背后,是对运达品牌的认可,也是对产品本身的认可。

(运达摩天公寓效果图)
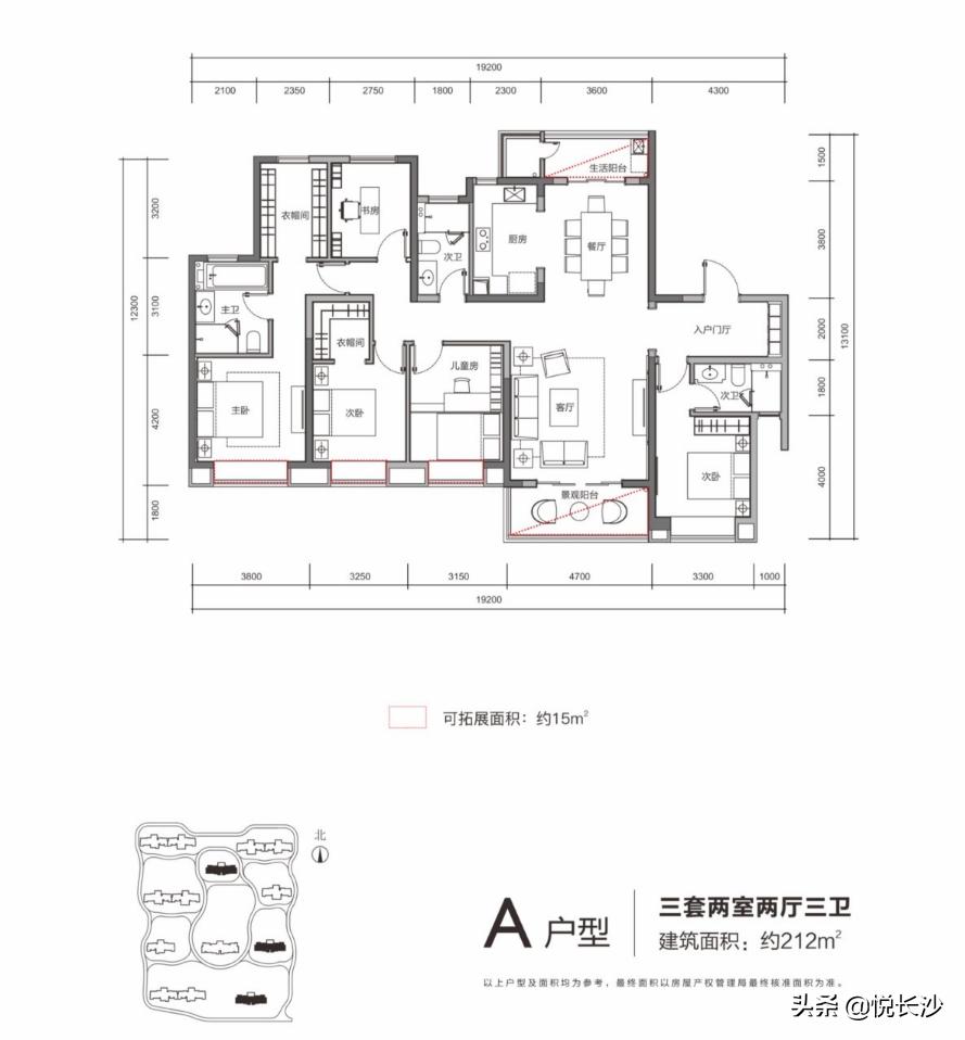
即将入市的为212平米大平层,杜绝大而无用,讲究“空间格局”和“居住价值”的双重塑造,追求“从大到好”的极致改善。
212平米大平层,做到了南向五开间,三套房设计,配置南北双向大阳台,入户超级玄关,人生拥有这样一套大平层,生活足以!

(建面约212平户型图,供参考)
①南向5房:典型的“大面宽、短进深”,超奢面宽约19.2米,惊喜的做到了南向5房,采光效果绝佳;
②南北通透:南北双向大阳台,连通餐客厅与厨房,不仅使得室内的空间感得以延伸,空气对流也更为顺畅; ③三套房:南向三套房,均带有飘窗,其中主卧和老人房,配置了独立卫生间,方便业主和家里老人共同生活,且独立性和私密性也能得到很好的保障,能真正实现三代同堂;
就当前来看,改善品质突出的大平层,其实不单只是具备居住属性,还具有隐藏的社交属性,日常接待亲朋好友,从面积超8平米的玄关入市,到阔绰精致客厅闲谈,再到连接着阳台的餐厅就餐,无不体现尊贵感和仪式感。

(运达锦绣广场样板间实景图)
好品质:延续优势
精装品质和服务品质,同样是项目的两大“杀手锏”。
运达锦绣广场延续一贯精品打造,精选高档、环保用材,秉承“鲁班奖”工艺要求,从设计、建筑、采购、装修、售后维护,随时监控。
同时,配置进口品牌中央空调、新风系统、卫浴洁具,高档品牌橱柜、鞋柜、指纹密码锁等舒适人居标准。
看过运达锦绣广场的装修,基本上很难再看上别的房子了。
【样板间视频 ↓↓↓ 】
而且,住在运达锦绣广场,也能享受到如运达国际广场、运达中央广场般标准的物业服务。
运达旗下高端物业水清木华,为业主提供全天候私人管家服务,物业服务品质可见一斑。
尤其是在经过2020年这场突如其来的疫情后,大家普遍意识到好的物业的重要性。
即使今后自己不住了,转手卖掉,有如此产品力和服务实力加持,未来房子的升值价值几何,不言而喻。

(运达锦绣广场物业示意图)
小结:
在长沙,运达物业,已可以用“屈指可数”来形容。
10余年间,只精工打造了运达国际广场、运达中央广场、运达锦绣广场3个项目,数量虽少,却皆为豪宅标杆。
所以在运达锦绣广场去年8月刚入市的时候,不少人惊叹:心心念念的运达终于要来了。
现在,最后一栋即将入市的房源,仅62套,数量有限,错过了最后的机会,要等到下次买运达的房子,不知为何时?!
今天是项目认筹的最后一天,明日(9月19日)即将开盘,感兴趣的改善买家要抓紧了!