水电工程是房子装修里的隐蔽工程,所以在做水电的时候一定要做好充分的准备与规划,避免后期装修好了再想要更改就无能为力了,对于水电的安装,设计姐家的改造在前段时间也是完成了水电工程,今天给大家聊聊关于水电工程的那些事!
一、准备工作
水电工程是家装中重要的基础工程,因此在开工做水电之前,需要做好充足的准备,下面是一些基础的准备工作。
1.
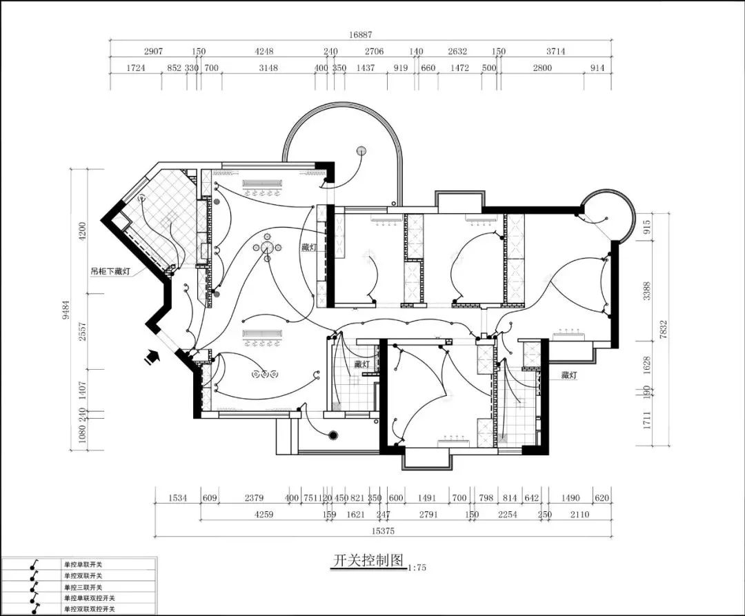
水电图
这个图纸是规划装修后的开关、插座、水龙头等位置的设计图,一般有请设计师做装修方案的话都会有这样的设计图,如果没请设计师的话,就要自己在开工之前计划好家具的摆放布置,再根据这个布置来定位设计水电的位置了。

2.
定位开槽
根据水电图的尺寸与位置,在现场与水电工人定位开关插座与水的位置,并用粉笔在现场的墙上画好,后期工人再根据现场定的位置来开槽布管。

3.
辅材准备
定好水电位置后,就可以准备水电的材料了,若是工作较忙可以交由水电工去购买,也可以问工人需要多少材料列个清单自己去购买,尽量就让工人购买比较方便。

二、水电注意事项
水电工程是装修的基础,需要注意的细节也很多,下面是设计姐装修的心得体会与经验总结。
1.
布线建议走活线
关于水电走活线的问题,在设计姐2018年的文章就已经有详细聊过,各位可以查阅《水电改造里的套路——横平竖直》,走活线的好处就是后期万一电线坏了还能抽出来更换,不需要大动干戈。

另外还尽量别在墙面开横槽,一是不安全,二是怕后期打钉容易打到。
2.
地砖完成面
在布管的时候需要注意地砖的完成面高度,确定好贴砖完成面的高度再布管,管道交叉处需要地面开槽,尤其是6分水管这样比较大的水管不可避免的交叉点处,要用过过桥弯来避开。

3.
线槽需挂网批荡
线管埋入墙体后,在封线槽批荡时也建议挂网,避免后期开裂。

4.
开关插座的位置
关于开关插座的高度,开关高度一般只要不被家具挡到都没问题,但是插座的位置,很多人由于在装修的时候没考虑好插座的位置问题,导致后期插座被家具挡住的尴尬,特别是电视墙的插座,设计姐家的都差点搞错了,因为我家的电视墙设计的是壁挂式电视机,原本考虑的是把插座藏在电视机后方,采用伸缩支架来壁挂电视机的设计。

之前没提前选好壁挂支架,设计是电视机尺寸为参考对象,后来在选支架的时候发现安装底架与电视机连接件的尺寸还不是一样的,所以赶紧到现场让电工把电位改矮了点,否则安装支架的底座与插座交叉了。所以各位在装插座的时候,一定考虑好插座位置与家具电器安装尺寸。

5.
双控开关
开关能用双控就用双控的,能为生活提供很多便利,比如说卧室灯的开关,如果是单控的话,到冬天被子都捂热了还要起床关灯,如果床头两侧各一个、卧室门旁一个,灯具装3个以上的开关,要用到多控开关。

6.
插座尽量多
插座不够用的痛苦,相信不用我多说了,所以在设计插座的时候,千万不要嫌多,因为入住后的电器,只会越来越多,插座不够用的话就要用排插了,不仅丑还怕不安全。

7.
网线与弱电
随着智能家居的发展与普及,以后家里要联网的设备会越来越多,所以在布弱电网线的时候也要长远考虑,关于网线布线,我也是请教了专门做网络工程的朋友,下面是他给的一些建议:
一是电脑、电视机位尽量用网络线比较稳定快速,选择网线的时候也要选用更快的六类线;网线是容易被业主忽略的,优劣质网线的性能及价格差别很大,一定要选好点的,可以考虑大唐、罗格朗、德特威勒的网线。
二是网络弱电箱的尺寸,选用合适尺寸规格的弱电箱,网络箱如果太小了,路由器放不进去还要外露。
三是路由器的信号问题,一般路由器都说自己是“穿墙”的,然而用起来的时候才发现走到卧室或上个厕所网速却卡得一笔,所以我让做网络工程的朋友做了个简单的网线布线方案,如下:

这里需要提一点是AP插座,我选择的是罗格朗的wifi+AP面板的无线套装(包括了弱电箱、POE供电模块与AP面板),这也是做网络工程的朋友推荐的,这个设备的好处是无需强电,弱电箱带有POE供电,只要布线的时候用六类线即可。

8.
开关插座的风格搭配
开关插座的设计位置是决定生活的舒适便利程度,而开关插座面板的风格,也要考虑与装修风格的搭配,这点很多业主在这个阶段容易忽略,后期再换就麻烦了。我在看罗格朗网络设备时,发现罗格朗还有开关插座,了解到罗格朗的开关插座是国际大品牌,且逸远-素月白系列的开关插座跟我家风格还比较符合,准备入手。考虑到开关外观以及个性功能更符合需求,所以从底盒开始即选用这个品牌,以保证后期安装匹配。刚好还凑个满减优惠,省了600多元,心里舒坦多了。


9.
智能家居的考虑
一般在装修好后再添设智能家居的话,电线就要外接,这样不仅影响美观还有安全隐患;所以准备装智能家居的朋友,建议在装修前期就选好智能家居品牌,然后根据方案做好相应的设计方案,预留好相应的线路。我选的是欧瑞博的智能家居,下图就是设计姐家的智能家居方案图。

智能窗帘装到主卧里的,除了我还有谁?卧室窗帘遮光太好,有时周末睡到天亮了还以为是半夜,必须要装个智能窗帘,让它定时拉开窗帘。

10.
厨房水电图
在做水电前还要确定好橱柜的设计方案,并做好厨房的水电图。这个点很多没装修经验的朋友很容易忽略,导致后期安装橱柜的时候被水电位置限制,或是水电开工了才匆匆忙忙去找橱柜定制公司。

11.
拍照留档
在水电完工后,还应该把现场每个空间的走线都拍照下来传到网盘备份,以备后期不时之需。

关于水电工程的那些事,以上是设计姐的一些总结,各位老师傅有什么补充的,也欢迎评论区留言。
下期预告:
《卫生间防水,二次排水工艺介绍》
《地面贴砖注意事项与工艺参考》

→贴砖→木工→刷墙面漆→热水器安装→厨卫吊顶→橱柜安装→烟机灶安装→木门安装→地板安装→铺贴壁纸→开关插座安装→灯具安装→五金洁具安装→窗帘杆安装→拓荒保洁→家具进场→家电安装→家居配饰→进宅大吉!
买了房找装修灵感,欢迎加微信公众号:shejiguan_cn