
一座位于中国南方,以医疗、科研和教学为复合功能的大型建筑,在建筑表皮没有任何“艺术处理”、完全尊重流线配置和正交体系的前提下,依然做出极度差异化的空间形态,会是怎样的挑战?
01、项目背景

实体模型:建筑与校园环境的关系
汕头大学新医学院由李嘉诚先生出资赞助,意在营造一座集医疗与科研教育为一体的新建筑。瑞士著名的赫尔佐格和德梅隆建筑事务所被邀请作为建筑方案设计的提供机构,具备超过20年医疗建筑设计经验的CCDI悉地国际被委托为建筑/结构/机电全专业设计主体。这样的组合从一开始就注定了挑战“规则”的可能性。

建筑表皮的横向加密线条形成了层叠的观感
建筑位于汕头大学主校区内,基地东侧与中央公园直接相接并延续至西南侧的规划校区,在空间上是连接现有校区与规划校区的重要位置。在老校园建筑群、中央公园以及规划校区之间,新医学院起到了一种标志性的转换节点作用,它以独特、巨大的中空形式展现出开放的内在精神,并与邻近的新图书馆和校区自然环境隔空对话。
为了优化日照条件,建筑与地理南北轴线形成10°夹角。建筑朝向、楼面进深和自然通风提升了建筑的可持续性,回应着基于中国南方地理环境的适应性设计原则。

建筑与临近的图书馆及湖面隔空对话
02、功能构成

建筑竖向功能分布图
建筑本体的功能配置非常复杂。设计没有采用传统的“水平+竖向”功能空间组合模式,而是围绕着医疗这一核心,将临床科研、实验室、医技、培训、医疗教学、数据中心等空间,在竖向上环绕一个中央开放空间进行堆叠,形成“医疗之环”,创造性地解决了复杂功能之间的分区与组合、流程与流线问题。
遮阴避雨且通风良好的开放环状空间是学术活动的中心,也是充满活力的校园生活主广场,更是连接全部设施及功能的重要枢纽。它使教学、实验等不同功能区之间形成视觉连贯性,又将视野向外部的校园景观进行延伸。

开放的中庭形成了极具穿透感的景观连接
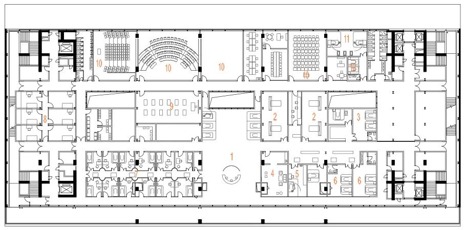
建筑的地下1层是设备间、停尸间、解剖室;底层是大中型报告厅,所有房间均可以直接对室外疏散;2层包括了人体科学馆、解剖室、办公室;3-9层的南楼为实验室,北楼为医学教室和办公室;10层为模拟医院(临床技能培训中心),能模拟真实的医院场景,并设有门诊大厅、门诊部、急诊部、住院部、手术区、教学区六大区域,符合医疗工艺流程,满足医疗设备的空间使用需求。

▲十层平面图:1.临床技能培训中心(教学模拟医院) 2.模拟ICU 3.模拟儿科病房 4.家属休息室(VIP) 5.模拟护士治疗室 6.模拟普通病房 7.模拟诊室 8.开放训练室 9.模拟心肺听诊训练房 10.教室 11.模拟分娩室 12.模拟待产室
建筑师在各功能组群之间设置开放式平台,促进空气流通,并提供多元化的自然采光途径,开阔景观视野。南侧平台位于较高楼层,最大限度地减少南侧城市道路的噪音影响,并且为中庭引入阳光。北侧平台的教学及办公区部分采用间接采光方式,为工作和学习提供理想环境。两侧的架空公共平台改善了中庭内的自然光环境,并对建筑内自然通风的微气候产生了积极的影响。

入口设置于建筑端部,逐层上台的阶梯让人逐渐浸入学术氛围中
03、概念演绎

建筑的轮廓回应着脑干结构的沟壑感
这座建筑造型独特,起伏与立面的沟壑灵感源自“人类脑干系统”,表达出某种探索未知的意向,也是一种与仿生学有关的创意。功能组团的环形集合方式形成了医学的循环路线,并且界定了公共平台的位置。这些平台将医学研究与日常生活进行了融合。

山形的医学院与校园的树林和草坪形成景观上的层次关系
在原生概念下,建筑体形的不规则、平面扭转和侧向刚度不规则、楼板和竖向构件的不连续,成了结构工程上的技术挑战。ARUP和CCDI的结构工程师采用了两个不同的计算模型进行优化,并且设计和施工相互协作,将结构建造成本控制在普通医疗科教项目的合理范畴,这座建筑才得以顺利建成。CCDI的机电团队也巧妙地化解了环形建筑在复杂管线、管井设计上的挑战。

朴素简洁的空中外廊

室内空间一角
不论出于历史经验还是对当下的观察,建筑学似乎都在告诉我们:医疗建筑是种缺乏造型想象力的实践类型。它们有着流线至上的第一原则和成本控制的理性依据,经过百年进化,由功能所决定的保守、实用形式才是正确选择。然而我们也必须承认:越是在范式稳定的类型上取得突破,设计的效果往往越是令人惊叹!
Credits
项目名称:汕头大学新医学院
开发单位:汕头大学
方案设计:赫尔佐格和德梅隆建筑事务所
建筑/结构/机电全程设计:CCDI悉地国际
项目负责人:覃宣
结构顾问:奥雅纳工程顾问公司
用地面积:49000㎡
建筑面积:39200㎡
建筑层数:11层(地下1层,地上10层)
设计/竣工:2012 / 2017
本文资料来自:CCDI悉地国际,本文作者:覃宣、艾侠,版权归原作者所有,如有侵权,请联系我们