装修想要不留遗憾,就得多参考别人的案例,扬长避短。今天小编给大家推荐一套设计特别成功的案例,本案例位于名门华府小区,室内面积为57平米,户型为一居室,设计风格为北欧。整套房子设计全包下来总共花费6万。接下来,我们一起看看这套房子是怎么设计的!
装修公司:晨报靓家装饰公司
预算:6万
风格:北欧
案例套数:5028更多
作为单身公寓,或是小夫妻的二人世界,亦或者是作为过渡的房子的小小户型,在现代社会其实很常见,可能由于很多种原因,我们会买一个面积不那么大、空间并不充足的房子,但是房子虽小,也要住的舒服。
客厅是家庭住宅的核心区域,现代住宅中,客厅的面积最大,空间也是开放性的,地位也最高,它的风格基调往往是家居格调的主脉,把握着整个居室的风格。因此确定好客厅的装修风格十分重要。可以根据自己的喜好选择传统风格现代、北欧风格、风格、中式风格或西式风格等等。

沙发背景墙处设计成储物柜,且预留出沙发的存放空间,此处可谓是全房的收纳中心,极大的解决了家居的收纳问题,且设计感十足。

客厅主色调为白色和浅灰,沙发选用深灰色加以协调,这样的色调搭配增加了室内的通透感,并且拉伸了空间的层次,也能在视觉上营造宽敞的感觉。

这个户型偏小,且预留了阳台空间,所以室内的空间较拥挤。但整体户型方正,功能分区明显。
卧室的装修并非只是摆设一张床这么简单的事情,在卧室装修中,有很多需要注意的地方。现在的卧室,室内功能越来越完善,舒适度也越来越高,基本可以满足主人的任何生活需求。

卧室背景墙依照业主的喜好选择了浅蓝色,且在卧室靠墙的一侧设计了一排衣柜,增强储物空间。
卫生间空间的平面布局与气候、经济条件,文化、生活习惯,家庭人员构成,设备大小、形式有很大关系。装修卫生间一定要把这些方面都考虑全方可进行。

卫生间则是经典的北欧风设计,简单的黑白色调。
厨房装修,是居家装修中一个重要的环节,同时也是最让人头疼的一个环节。厨房装修设计不仅仅是橱柜、厨具、电器的简单叠加,而是整个厨房环境的有机组合,是一项整体规划的系统工程。

开放式的厨房设计,也在一定程度上使空间看起来更大,视觉感更强。
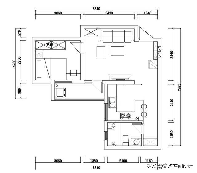
以下就是本套名门华府小区57平米一居室房子的户型图。

回归到入户进门处,谁会想到,这样一个一室一厅的小户型,麻雀虽小,却五脏俱全呢?
57平米的一居室在设计北欧风格的时候,要考虑各个功能区的配色,这样才能保证家装的整体协调,名士华府小区的这个装修案例,很简单大方,也是现在年轻人喜欢的北欧风格。这间房子全包花了6万,其实在整体的基础装修中是很划算的,所以大家可以参考这户装修进行自己的家装!