设计师:王祥
地点:石家庄蓝爵国际
项目名称:三宅小区
设计风格:现代前卫
建筑面积:150平米
总计造价:9万元

本案位于石家庄蓝爵国际,由石家庄壹米晶工时尚室内设计师王祥所做,现代前卫风格是现代社会中比较流行的适合大多数家庭运用的一种装修风格,接下来,我们就一起欣赏这套案例。

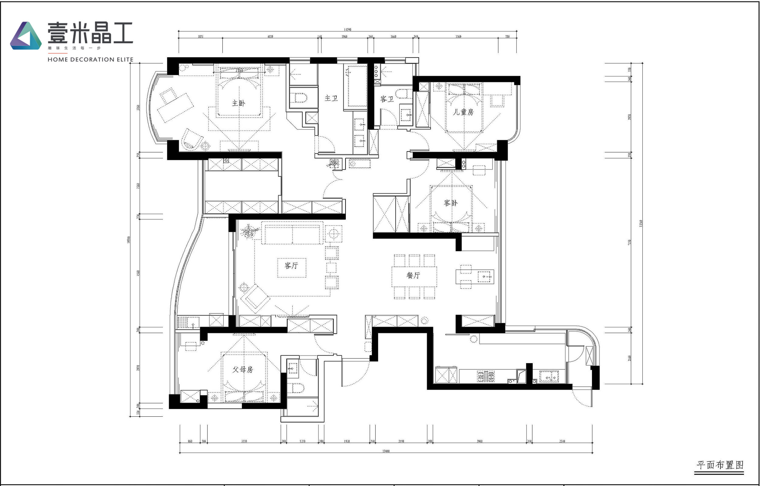
户型图
本案中家具多选用木色,接近大自然,墙面大多数选用白色调,更加突出整体的干净、整洁,同时又能体现出空间线条的简洁大方,不失奢华,空间的色调采用暖色系让人更加舒服。

餐厅

餐厅

客厅

餐厅与客厅衔接处

餐桌

卧室

卧室

卫生间一角
石家庄周边的朋友可以联系小壹获得更多家装案例与专业设计咨询报价(微信:18031862739),对了,新房下来我们免费验房哦!壹米晶工,雕琢生活每一步。