基于此,业主她在原有的户型格局下,将沙发墙和走廊等空间利用到极致,如此使用效率得到了极大的提升!其中,业主对后者走廊的利用尤为重要,仅仅只是做了一个小改动,不仅提高了利用率,结果还多出间房,如此两房变三房,太实用了!基于此就忍不住晒晒。当然,整个空间的装修也是简洁大方的,有需要的不妨参考一下!
原始结构图

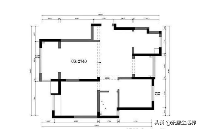
平面布局图

这个改造前后的平面图,可以看到原始结构只是普通的两房,而且餐厅前后的走廊空间利用率不高,在这样的情况下,业主她做了一个小改动,将其一分为二成两个空间,即餐厅和榻榻米多功能房,如此更实用。至于具体细节和亮点,我们还是通过实景来逐一展示。

这个是入户玄关,可以看到右边定制的柜子,为封顶式结构,然后中间和底部留空,这样不仅储物空间大,而且设计很人性化,比如一些小件的东西以及鞋子等等,都能得到很好的收纳!

来到餐厅。一般来说,这里不需要占用太多的空间,只要准备好餐桌椅就搞定了,像这里就利用小巧的原木家具,如此其效果不仅自然大方,而且显得空间灵活!另外,左边可以看到餐厅背景墙,仅仅只做了一块置物隔板虽然显得简洁大方美观些,不过定制一面餐柜会更实用!

另一面,为了保持空间通透,墙面安装了一大块玻璃,如此采光非常好。

厨房。这里是业主满意的地方之一,根据其结构设为U型布局,这样利用率可以做到最大化!
而装修方面,以白色的橱柜为主搭配灰色的墙砖,效果非常的简洁美观不压抑,完美!而且左边还塞下了冰箱,很实用!

来到客厅。其实装修方面真的很简洁,比如电视墙不造型不装饰,这样反而耐看!当然,色调也搭配得不错,基本为浅灰色和白色等等,如此在空间基调上有利于营造一个轻松舒适的氛围,这样更为适合居家过日子。

另一面是沙发墙,直接定制为一整面墙的柜子,也算将空间利用到了极致,就像眼前的效果一样,作为书架或者展示架以及收纳各种东西等等,都会非常的实用。

其它的则是家具,以灰色的布艺沙发为主,搭配细腿结构的原木茶几等等,这其实也算是很经典的搭配了,至少看着舒服,加上质地柔软舒适,使用体验好!

梳理一下,这个是客厅全景,整个空间敞亮大方,还是很迷人的,且对面带有一个阳台,这样采光视野都很好。

换一个角度可以看到对面的榻榻米书房,且位置刚好与客厅形成对流,完美。

来看具体效果,榻榻米床不仅可以睡人休息,还在中间安装了升降台,如此待客品茶都可以轻松搞定。而其它空出来的地方,还可以准备好书桌书柜用来办公学习,可以说很实用的设计了。

除了挤出的一间房外,还有另外两间房,这个是第一间房,背景墙以素雅的壁纸为主,如此显得温馨大方,再结合原木家具和灰色床品等等,空间质感非常不错,喜欢。

最后这个就是卫生间了,整个空间简洁大方,加上洗漱台、马桶和淋浴房等该有的功能一个不落且美观,完美!好了,以上差不多就是业主她家装修的新房了,整个效果不说有多么的漂亮上档次,但至少也是那种看着很舒服很耐看的,加上沙发墙和走廊等空间利用到极致,以及两房改三房等,非常实用,希望大家喜欢,谢谢啦!