户型: 别墅会所
风格: 混搭
套餐: 基础装修
面积: 350平方
造价: 120万
设计师: 谢璐
这是一套350平的别墅效果,客户选择的是混搭风格,整体效果非常的不错,利用了北欧与美式相结合,让整体看起来更加的稳重与自然,效果也相当的漂亮美观!

▲走廊效果图

▲入户玄关样板间

▲电视背景墙样板间

▲沙发背景墙效果图

▲厨房样板间

▲餐厅效果图

▲卫浴间效果图

▲卫浴间二效果图

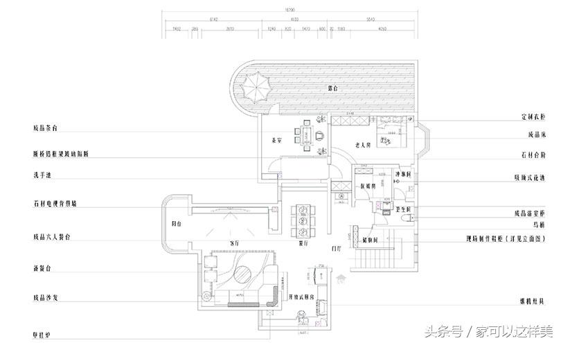
▲户型布局方案

▲卧室效果图
设计:谢璐(macongwork)
户型: 别墅会所
风格: 混搭
套餐: 基础装修
面积: 350平方
造价: 120万
设计师: 谢璐
这是一套350平的别墅效果,客户选择的是混搭风格,整体效果非常的不错,利用了北欧与美式相结合,让整体看起来更加的稳重与自然,效果也相当的漂亮美观!

▲走廊效果图

▲入户玄关样板间

▲电视背景墙样板间

▲沙发背景墙效果图

▲厨房样板间

▲餐厅效果图

▲卫浴间效果图

▲卫浴间二效果图

▲户型布局方案

▲卧室效果图
设计:谢璐(macongwork)