本作者可为买房粉丝争取到最低价格和优惠
「华润紫樾润府」抢先入市,无疑给项目隔壁「天健和悦府」形成很大的压力,天健这个项目一直说快入市了也启动了中介三级市场的联动,结果被华润抢先一步入市。华润的入市,还会给在售的「新城燕澜和鸣」形成竞争。
「华润紫樾润府」「天健和悦府」「新城燕澜和鸣」这三个项目怎么选,各有什么优缺点?往下看
深圳中学是深圳最好的学校,这点应该是毋庸置疑的。目前深圳中学集团的成员除了罗湖的本部外,还在其他区域开设了“分校”。
深圳中学龙岗学校、深圳中学南山创新学校、 深圳中学坪山创新学校 、深圳中学梅香学校、深圳中学光明科学城学校、深圳中学龙华学校、深圳中学大鹏学校。

其中「深中坪山创新学校」,学校总占地面积3.16万平方米,总建筑面积11.82万平方米,是由坪山区委区政府强力打造的一所区属九年一贯制公办学校,办学规模54个班。2021年8月27日,深中坪山揭牌,正式办学,迎来首届一年级、七年级学生。

根据教育部门的公布的深中坪山招生范围(如下),主要在燕子湖片区,二手商品住宅小区有豪方菁园、盈富家园、富润乐庭(限售中)。以及在售的新房 「新城燕澜和鸣」和即将入市的「天健和悦府」、「华润紫樾润府」 。

最近不少刚需在关注「新城燕澜和鸣」、「天健和悦府」、「华润紫樾润府」三个项目,它们同属一个片区,相距不到100米,产品同质、竞争激烈,对于怎么选,不少人产生了疑问。刚好头几天我把这三个盘都仔细看了一遍,从七个维度说说我的感受,仅供大家参考。
1.开发商
「华润紫樾润府」是由华润&招商,双央企共同打造的项目,2022年8月4日当年第二轮土拍中竞得,商品房限价3.75万。
「天健和悦府」是深圳市国企天健集团开发的项目,2022年4月29日土拍中以25.76亿竞得,商品房限价3.75万/平。
「新城燕澜和鸣」是由于总部位于上海的新城控股开发的项目,前期这个项目和佳兆业联合开发的。
从开发商的品牌度看,华润在深圳的影响力对于很多人来说就是金字招牌。
2.楼盘的体量
「华润紫樾润府」建面约8.06万平、容积率4.9,共967套
「天健和悦府」建面约32.84万平、容积率4.77,共2833套
「新城燕澜和鸣」建面约23万平、容积率4.52,共1739套
从楼盘体量看,华润紫悦润府是一个小盘,新城燕澜和鸣与天健和悦府是大盘,一般来说大盘今后居住氛围更好,社区商业有机会做起来。
3.教育资源
三个盘都是深圳中学坪山创新学校的招生范围,即都是学区房。这样只能对比谁去学校的距离更近,「新城燕澜和鸣」距离学校大概50米左右,可以实现目送式上学,「天健和悦府」、「华润紫樾润府」距离学校约100-200米。
4.地铁距离
三个盘都是16号线的地铁物业。这样只能对比谁去地块口的距离更近,「新城燕澜和鸣」、「华润紫樾润府」距离地铁口石井站约300米,「天健和悦府」距离石井站地铁口近100米左右,地铁更加便利。
5.户型产品
「华润紫樾润府」69平两房、79平三房一卫、90平三房两卫,整体的使用率比较一般,90平的有两个房间较小。
「天健和悦府」75/76平三房、88平三房两卫、99平3+1房,75平三房南北通这个户型相当的牛逼。
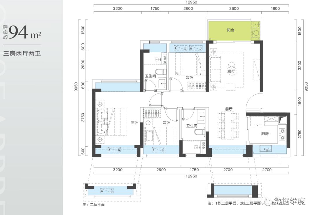
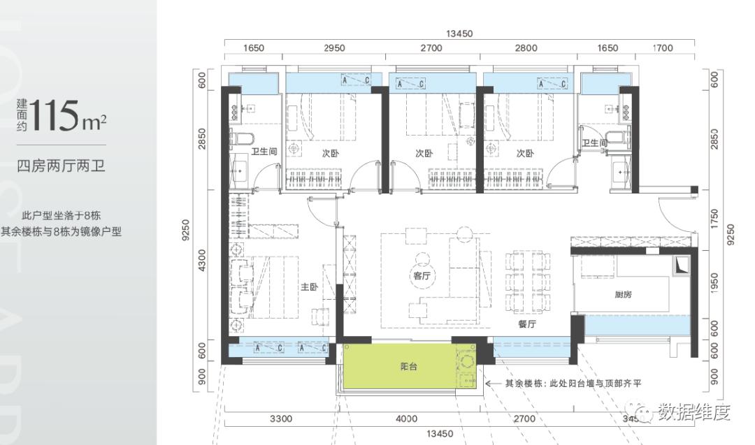
「新城燕澜和鸣」78平三房、88平三房两卫、94平三房两卫、115平四房两卫。
从我的感受来说,新城燕澜和鸣的户型使用率最高,天健和悦府的户型产品做得比较牛逼、格局收纳设计很有优势,华润紫樾润府户型相对一般。
6.价格对比
「华润紫樾润府」商品房限价3.75万/平,最小户型66平折后下来预计200万出头,即可买入深中的学区房。
「天健和悦府」商品房3.75万/平,最小户型75平,折扣下来预计260-270万可以买到一个南北通的三房。
「新城燕澜和鸣」备案均价4万左右,目前处于尾盘状态,78平三房折扣下来290万左右。
单价上三个盘相差不大,但是用同样的钱,天健和悦府的三房总价最低;如果单纯考虑学区房华润紫樾润府的66平无疑是最低的门槛。
7.交房时间
新城燕澜和鸣,预计今年底明年一季度精装交房,对于着急入住和着急用学位的人来说,这个项目算是一个准现房,可以实现所见即所得。
华润紫樾润府、天健和悦府两个项目计划入市,计划是两年后(2025年交房)。
最后说我总体的感受,三个项目都是不错的刚需上车盘。刚需三宝(地铁、学校、商业)已经满足两个(学校+地铁),他们最大的卖点就是深圳中学坪山创新学区,而且还是家门口的学校,不论未来怎么划分都不用担心学位变化(就近入学原则)。
其次,三个项目就是真正的地铁口物业,距离在100-300米,正常人步行大概5分钟,而且地铁是已经开通的。郊区的楼盘有地铁和没有地铁简直是天差地别,在郊区如果没有地铁出行是非常困难的,买的人也会很少。
但是,目前三个项目都有一个缺点,周边没有大型的商业综合体,购物娱乐需要乘坐地铁到坪山的中心片区。
如果非要我说三个项目哪个好?做一个排序
1.「天健和悦府」大型社区,未来居住氛围更好,开发商也是国企交房不用担心,距离地铁口、学校都很近,未来社区商业有机会做起来满足日常生活。产品牛逼,75平三房通透户型堪称一绝,总价预计260-270万就能买到一个三房,资金有限的刚需可以一步到位。
2.「新城燕澜和鸣」算是一个准现房,所见即所得,目前折扣较大,78平的三房290万左右,如果考虑急用学位、着急入住,不用白白月供两年,就能享受这个房子,而且它的户型使用率最高,样板房床没有搭在飘窗上。
3.「华润紫樾润府」是一个小型楼盘,除了华润这个牌子外,66平200多万上车深圳中学坪山创新学校,两个优点外,暂时看不到其他的亮点了。
如果大家打算去那边买房,最好建议把这三个项目都看一遍。
天健和悦府 户型图




新城燕澜和鸣 户型图




上下滚动查看户型图
华润紫樾润府 户型图


