点上方蓝字可关注 微信号:装修33天

建筑面积110平,总造价36万,改造后的住宅融合北欧风格与现代风格,采用对比色软装以增加空间活泼性

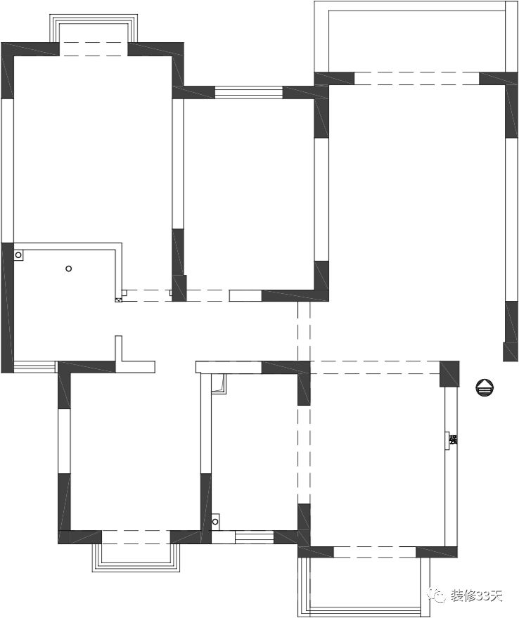
平面结构图

平面布置图

入户,雾霾蓝鞋柜分隔出独立玄关区,中部开小口增强光线渗透

空间南北通透,以白色墙顶面、木质地板与木质家具为基调,整体简约舒适

将客厅与多功能室的隔墙用玻璃窗代替,成为整屋的点睛之笔

灰色布艺沙发搭配浅绿色懒人沙发,绿植带来清新自然气息

整墙电视柜作背景,半开半合设计,丰富空间层次与柜体使用功能,灰+木色柜体平衡视觉

南阳台作为休闲阳台,设置趣味猫爬架,在悠闲的午后边看风景边吸猫

客厅望向餐厅视角

餐厅,墨绿色餐桌搭配橙灰色餐椅,极简顶面点缀长条形吊灯与猴子挂件

半开放式厨房将餐厨空间最大程度融合,动线流畅并增进互动氛围

餐厅一侧设置成品玻璃餐边柜,可作装饰与收纳机能

厨房,以黑白灰为基调,整体干净利落,隐形把手设计,现代感十足

北阳台作生活阳台,满足日常衣物洗烘需求

公领域望向私领域空间,艺术感强烈的《戴珍珠耳环的少女》装饰画削弱过道的纵深感

多功能房,定制储物榻榻米加双人位书桌设计,兼具书房与客卧功能

玻璃隔墙设计,使空间通透明亮,增设竖百叶不影响空间私密性

次卧,大面积玻璃窗引入自然风景,选用简约朴素的家具与床品,给人舒适的感觉

主卧,延续灰白基调,床尾设计大面积白色定制柜,使空间更加整体

床头线性吊灯与点光源满足空间照明,落地镜配大面积衣柜可充当衣帽间的功能

卫生间,浅色空间加入黑色线形把手点缀,镜柜与抽拉龙头方便实用,黑框玻璃移门划分出淋浴空间
设计 | 云行空间建筑设计(南京)
电话/微信:15805152076
公众号:unixdesign
后台回复「云行」可以看更多作品
媒体转载请注明装修33天并保留设计师联系方式
欢迎业主、设计师、装修公司免费投稿照片
装修33天商务合作微信:king194316
松爷店铺掌柜微信:yejia1702
云行空间建筑设计其他作品推荐,点击下图查看112平现代北欧三室 超长综合定制柜
装修33天
实用装修指南
关注
装修33天 实用装修指南
喜欢我们的文章就随手转发到您朋友圈吧