
Zhongguancun IC Design Park / MoChen Architects & Engineers由专筑网王沛儒,小R编译来自建筑事务所的描述。中关村集成电路设计园的诞生得益于国家集成电路发展战略,旨在建设一个集成电路产业生态集成创新产业园。客户希望建设可以成为吸引全球集成电路资源的世界级专业园区,缔造全生命周期的园区环境。在园区内营造人文氛围,使其具有适合高科技创新主体力量交流的形象。Text description provided by the architects. The birth of the IC PARK benefits from the national integrated circuit development strategy, which aims to build an integrated innovation industrial park of IC industry ecology. The owners expect the industrial park to be built in such a way that it will become a world-class professional park attracting global integrated circuit resources, to create a park environment with a full life cycle. In addition, a humanistic atmosphere should be created in the park with an image that is suitable for the interchange of the main forces of hi-tech innovation.

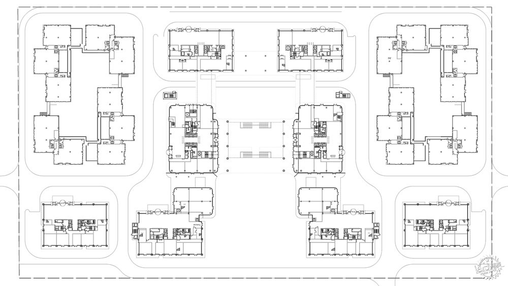
设计分析 项目位于中关村国家示范区的中心。在项目区域中部,将预留一条60米宽、800米长的城市绿带。在充分尊重城市设计导则的同时,项目设计还需要考虑以下三个特点:大型开放空间、对称的中轴线规划布局、两侧的高中低天际线。另外,为了给高新技术创新的主力创造沟通交流的地方,建筑师最终提出了一种“多维互动”空间模式,将园区内的交流环境可以按照层次和属性分开,使其能够呈现互动、不受干扰的三维空间。
Analysis of the DesignThe project is located at the center of The Zhongguancun National Demonstration Zone. In the center of the project area, a 60 m wide and 800 m long urban greenbelt will be reserved. In addition to fully respecting the guidelines for urban design, the project design also needs to take into account the following three characteristics: large-scale open space, symmetrical axis planning layout, high in the middle and low on both sides of the skyline. Besides, to create communication places for hi-tech innovative main force, the designer finally proposed to adopt a new spatial model of "multi-dimensional interaction," which allows the communication environment of the park to be divided into levels and attributes, so that it can present a three-dimensional space that is interactive and undisturbed.


总体规划 项目总体布局采用一个中心、两个园区、三个轴线、三个广场的规划布局特点。高层办公区将位于园区的中心位置,而花园式的单户式办公区将位于高层建筑的两侧,作为单独的建筑体量。园区商务区主要位于与高层建筑底层相连的核心云台区域。 Master Plan The overall layout of the project adopts the planning layout characteristics of one center, two park zones, three axes and three squares. The high-rise office zone will be located in the central position of the park zones, while the garden-style single-family office zone will be located on both sides of the high-rise, which will be built as a group independently. The Business District of the park zone is mainly located in the core cloud terrace zone connected to the bottom of the high-rise building.

一个中心:有凝聚力的核心位置 连接一楼架空走廊、屋顶花园和两座高层建筑之间的下沉广场,形成集成电路设计园的核心场所。云台区还设有图书馆、文化活动中心、咖啡厅等场所,提供各种社会功能配套设施。云台上的屋顶花园区域分为健身跑道、休闲区、智能互动区等,使整个屋顶花园的运动线条更加自由、动感。下沉的庭院位于云台的下方。该区域的设计得天独厚,采用小规模丰富的庭院布局进行设计。
One Center: Cohesive Core Place Connecting the first-floor overhead corridor, roof garden and sinking square between two high-rise buildings, the core place of an IC design park forms. Libraries, cultural activity centers, cafes and other places are also arranged in the cloud platform zone, to provide the various social function supporting facilities. The roof garden area on the cloud platform can be arranged into fitness runway, leisure zone, intelligent interactive zone and so on, which makes the movement lines of the whole roof garden freer and more dynamic. The sinking courtyard is situated below the cloud platform. This zone is designed with the pleasant small-scale and rich courtyard layout.

两个园区:让办公需求充满多样化 结合园区内50米宽的绿地,建筑师设计了两组具有围合感的小型办公区域,主要面向中小型企业。 Two Park Zones: Making Office Requirements Full of Variety Combined with the 50m wide greenbelt inside the park, two groups of small office zones with a sense of enclosure are designed, which are mainly for medium-sized enterprises.

三轴:构建城市网络 它采用架空层,形成贯穿整个公园的三轴,将公园的主要空间串联起来。 Three Axis: Constructing the Network of the City It adopts the overhead layer to form three axes running through the whole park, which connects the main spaces of the park in series.

城市轴线:60米宽的绿地轴线构成大型开放空间。 视觉廊道:贯穿园区主要功能线,引导交通。 公园绿地轴线:这条轴线是连接东西单户办公区的桥梁。 City Axis: The 60 m wide greenbelt axis is designed as a large-scale open space. Visual corridor: It runs through the main function line of the park, guiding the traffic. Greenbelt Axis of the Park: This axis is a bridge connecting the East and West single-family office zones.

三个广场:完善功能场所 创业广场,园区的精神堡垒;创客园作为园区活力核心区,由云台和活力谷组成;创新空间,作为园区的后院。 Three Squares: Perfecting Functional Places The Startup Square, as the spiritual fortress of the park zones;The Makers Park, as the park vigorous core zone, consisting of the Cloud Platform and Vigorous Valley;The Innovation Space, as the Backyard of the park.

建筑设计 在立面设计中,建筑师引入了“芯片”的技术美学。采用透光率较高的玻璃幕墙系统,局部采用米色石材进行部分装饰。此外,还需要透过层层铺砌的材料,突显集成电路产业的科技感,从而使架空平台的水平线可以呈现出漂浮的景象。 ArchitecturalDesign The technology aesthetics of "chip" should be introduced into the façade design. Besides, the glass curtain wall system with higher transmittance should be adopted , and partially the beige stone be embellished. In addition, it is also necessary to highlight the sense of science and technology in the IC industry through tiling row upon row of materials, thus the continuous horizontal lines of an overhead podium showing a scene of floating through.

绿色设计 在生态环境而言,项目整体设计以人为本,充分尊重自然环境。此外,在设计中也考虑了可持续发展,建筑师从节能、节水、节地、节材等方面进行了精心设计。目前,园区已获得绿色建筑双星级、三星级及“LEED CS”金奖认证。 Green Design In terms of ecological environment, the overall design of the project is people-oriented, which fully respects the natural environment. In addition, sustainable development is also taken into account in the design. It is carefully designed from the aspects of energy-saving, water-saving, land-saving and materials-saving. At present, the park has already been awarded with the Green Building Two-Star, Three-Star and "LEED CS" Gold Certifications.

集成电路园以其“根植城市、定位轴线、科技汇聚、互联共享、绿色低碳”为特色,以成熟的姿态受到世界的瞩目。With the characteristics of: rooted in the city, located axis, technology collection, interconnection and sharing, green and low-carbon, the IC Park is being gazed by the world with a mature attitude.









建筑设计:墨臣建筑设计事务所地点:中国,北京类型:办公面积:217300平方米年份:2018年摄影:3x2 Studio单位:m2首席建筑师:Xiaodong Xu设计团队:Zhang Cheng, Shuang Zhang, Zhuan Wang, Zhenzhen Li, Zhikai Ren, Yong Wu, Juncheng Liang, Borong Wang, Jinsheng Yang, Rui Tian, Xiao Zhang, Bo Li, Ziyuan Wang, Zhe Wang, Xin Yu, Haiguang Xin, Meng Yang, Lei Tang, Haixia Liu, Shiwei Yuan, Rui Yu, Yiqiang Zhao, Yafei Nie, Xiaojing Jia, Zhigang Zhang, Liu Wen, Yan Li, Yinghao Wang, Bo Zhou, Xinya Wang, Xihu Zhang, Hui Wang, Guangqing Liu, Yuehong Dong, Defu Yin, Guangming Ye, Fei Qiao客户:ZGC Development Group, Capital Group 工程设计:墨臣建筑设计事务所景观设计:ECOLANDArchitects: MoChen Architects & EngineersArea: 217300.0 m2Project Year: 2018Photographs: 3x2 StudioUnit: m2Lead Archtiects: Xiaodong XuDesign Team: Zhang Cheng, Shuang Zhang, Zhuan Wang, Zhenzhen Li, Zhikai Ren, Yong Wu, Juncheng Liang, Borong Wang, Jinsheng Yang, Rui Tian, Xiao Zhang, Bo Li, Ziyuan Wang, Zhe Wang, Xin Yu, Haiguang Xin, Meng Yang, Lei Tang, Haixia Liu, Shiwei Yuan, Rui Yu, Yiqiang Zhao, Yafei Nie, Xiaojing Jia, Zhigang Zhang, Liu Wen, Yan Li, Yinghao Wang, Bo Zhou, Xinya Wang, Xihu Zhang, Hui Wang, Guangqing Liu, Yuehong Dong, Defu Yin, Guangming Ye, Fei QiaoClients: ZGC Development Group, Capital GroupEngineering: MoChen Architects & EngineersLandscape: ECOLANDOFFICES
【专筑网版权与免责声明】:本网站注明“来源:专筑网”的所有内容版权属专筑网所有,如需转载,请注明出处