最近,居住公寓的话题很热——现在很多楼盘都有居住公寓,它们的日照时间不能满足住宅标准,常常成为各楼盘营销的“低价噱头”。
但济南最近惊现一个神奇的楼盘:整个小区的两栋高楼全部是居住公寓!
它在本周开盘,销售情况居然还不错。在这萧瑟的楼市寒冬里,让人惊掉下巴。
那么,这个神奇的居住公寓到底是什么情况?
1st
东城核心地段两栋“美宅”
全部是居住公寓?
近日,很多小伙伴向我们咨询:“逸家公馆”怎么样?它的两栋高楼都是居住公寓!能买吗?
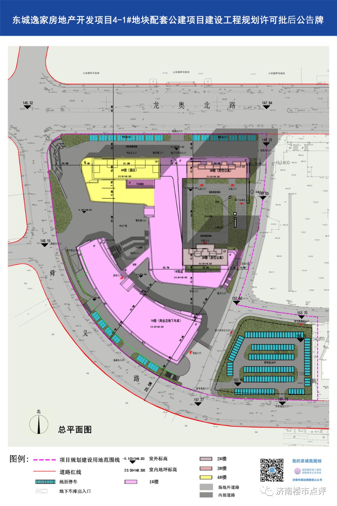
“逸家公馆”,从名称上我们也可以看出来,它有与东城逸家存在着千丝万缕的联系。没错,它们的开发商都是济南城投置业。“逸家公馆”位于东城逸家项目的西北角,与山东省*草烟**专卖局隔着龙奥北路相望,与奥体不远。

从产品信息看,该项目规划两栋高层,同时还有酒店、商业等产品。

根据开发商的宣传,这是两栋“精装美宅”可“拎包入住”,还能享“东城逸家幼小初12年一贯制优质教育”!
但让人感到惊奇的是,它的两栋高层(2号楼、3号楼)全部是居住公寓!居住公寓!看图:

2nd
此居住公寓非彼居住公寓
两栋楼全部是居住公寓? 这是什么鬼?
我们以前聊过,所谓的居住公寓,是盖在住宅用地上、但因为它的日照时间无法满足住宅标准,而被定义为“公寓”的产品。
这种房子,大寒日满窗日照时间低于2小时,甚至低于1小时!而由于大寒日并不是一年中日照时间最短的一天,如果大寒日的日照时间低于1小时或者2小时,那么它在冬季里将只能享受很少很少的日照,甚至可以说将几乎看不到太阳。
不过,逸家公馆这两栋楼都是居住公寓,是因为他们的日照时间不满吗?
我们看了一些逸家公馆周边的卫星图:它的东侧是东城逸家中学,南侧距离东城逸家、中海奥龙观邸等住宅产品也比较远。
虽然这里的地势是南高北低,但周边整体较为开阔,这两栋楼的采光是没有问题的。

但它们为什么会是“居住公寓”呢?
据置业顾问介绍,这片土地在拿地时,是作为整个东城逸家项目配套来规划的,当时明确要求需配建一定数量的居住公寓,所以也就有了今天的“逸家公馆”。
而且,该项目的土地性质为居住用地,使用年限也是70年,同样适用于济南购房政策,*款贷**政策也与普通住宅无异,也可以使用公积金。
如果总结一下,除了名字叫做“居住公寓”,它与普通的住宅在性质上没有任何区别,这跟我们常见的居住公寓很是不同。
3rd
卖得很火? 能不能入手?
据置业顾问介绍,逸家公馆2#楼在售。
它在周五中午启动认筹,周一晚上七点开盘摇号,当天边户的120户型就全部销售完毕,目前仅剩下中间90户型。3#楼何时开盘不确定,大概率年后发售。
看这个销售进度,逸家公馆卖得很火!
卖得火的最主要的原因,主要是它的价格:均价1.8万/平米,周边东城逸家住宅二手房价格在2.3万/平米左右,两者之间有五六千块的差价。
那么,逸家公馆这个“居住公寓”,到底能不能买?除了“居住公寓”这个名字,它还有什么利弊吗?
首先提醒大家,逸家公馆毕竟是东城逸家的配套公建,除了居住公寓,它其他产品是商业、酒店和配建的停车场等。

紧邻舜义路的商业楼总高5层,未来商业布局包括有明火的餐饮、早教、培训类,环绕2#、3#楼的业态主要为无明火作业的百货、教育类商业分布。4#楼已经签约某四星品牌的酒店配套了。项目东南角则有一个停车场。
也就是说,这周边未来将会比较热闹,生活可能会有些吵。
该项目的另一个很大的痛点是它的户型。
逸家公馆2号楼为3梯6户,3号楼为4梯8户,每个电梯之间通过连廊连接。其中,2号楼的平面图的是这样的:

两边是两个120平的户型,中间4个是90平的。
3号楼跟这个差不多,只不过中间90平的户型总共有6个。
这个密度有点大。
由于整体排布较密,它南侧的采光面就比较窄。
所以我们看到,它的120平米的3室产品,客厅不朝南,只有两个卧室朝南,整个户型就是个长条形,这样的差户型在济南住宅市场已经基本绝迹了:

90平的两室户型也很一般,从入户门到客厅也是很狭长,也不通透。而且,两室户型目前市场接受度整体也不高。

另外,逸家公馆公摊率比较高,达到29%以上。90平米的房子,实际居住面积只有60多平米。
还有一个小细节,该项目每隔3层就会有一条腰线。

这条腰线可能会影响下层采光,购买时尽量避开腰线下楼层。
当然,逸家公馆的优点还是很多的。
它位于济南东城核心区域,距离市政府不到一公里,距离东荷体育场约700米。周围学校配套齐全,在此买房子女能在附近就近读书,价格也比较划算。
对于那些想在周边低价入手一套房子供子女读书的家长来说,选择这个项目还是很不错的。
不过,由于“居住公寓”这个敏感的因素,再加上户型较差,居住密度高,项目整体品质并不高,未来整体价格走势未必能跑赢周边楼盘,投资客建议谨慎购买。