消息来源:工业建筑
作者:韦拉 刘伯英
单位:北京华清安地建筑设计有限公司
清华大学 建筑学院
来源:韦拉, 刘伯英. 从"一汽""一拖"看苏联向中国工业住宅区标准设计的技术转移[J]. 工业建筑, 2019,49(7):30-39.
我国工业住宅区的大规模建设始于“一五”工业化建设期间,为了配套建国初期的大规模工业建设而展开。在苏联大规模援助及相关政策、原则的影响下,通过技术转移,苏联居住区的标准设计方法开始广泛应用于我国的工业住宅建设中。这一时期形成的规划设计方法与技术规范为我国工业住宅区的发展奠定了基础,对城市住宅区的发展产生了深远的影响,是中国现代城市集合住宅发展史的原点。本研究在苏联对我国技术转移背景的语境下,追溯建国以来我国工业住宅区历史渊源和发展脉络,建立从苏联到我国工业住宅区标准化设计之间技术转移的路径。
01、苏联工业化住宅标准设计的发展概况
苏联很早就开始了对工业化住宅的相关研究。20世纪50年代初,标准化设计已成为苏联住宅建筑设计的主要方法。标准设计促进了住宅建筑施工的标准化,在降低造价的同时,有利于提升住宅建筑技术及艺术水平,大大提高了设计文件的编制效率,并且创造了在建筑工地上不断提高装配速度的广阔前景。
20世纪20年代中期,苏联开始运用高层(5层以上)住宅建筑标准单元。苏联建筑师不间断地进行着标准设计工作,到20世纪20年代末期,关于住宅综合体及标准单元的研究取得了重大进展,随后于1938年成立的苏联建设委员会与建筑科学院制定并改善了高层建筑的标准单元。
“二战”前苏联的住宅建筑以高层为主,战后重建时期修建了大量的低层住宅,客观上迫切要求设计的标准化。20世纪30年代末期,建筑人民委员部才制定了首批通用的低层(1~3层)住宅标准设计,并于1944年首次提出了住宅成套标准设计方法,即根据标准化的要求编制出组合一段街道或者一个完整建筑群所需各种标准平面、立面和拼接单元。苏联当时主要的低层住宅建设中,深入而广泛地推行了这种标准设计方法。
20世纪40年代末期,随着建筑工业化基础的巩固扩大,莫斯科等城市开始转向了4~5层住宅的建设,1950年逐步推出4~5层的成套标准设计,走向大规模工业化施工建造的条件逐渐成熟。正是在这个背景下,苏联的住宅标准设计方法“输入”到了中国(图1)。

图1 苏联城市主要街道采用成套标准设计的4~5层住宅
Fig.1 4 or 5 storey residential buildings with standard design in the Soviet Union
02、技术转移下中国工业住宅区的发展概况
2.1 工业住宅区建设的历史背景
我国工人住宅以新中国成立为节点可分为半封建半殖民地时代、民国及日伪时期的劳工住宅区和解放后大批兴建的工业住宅区。解放前早期的工人住宅大多没有经过规划,条件简陋,没有形成一定的规模。解放后,正是在“一五”期间苏联援建背景下,大规模标准化建设的工业住宅区为我国工业住宅的发展奠定了基础。工业住宅区的形成有着深厚的历史因素,是特殊时期所建设的居住建筑形式,是那个时代居住建筑的典范与见证。
新中国成立初期,我国设计单位和建筑知识严重匮乏,而“二战”结束后苏联在城市重建和住宅建设方面已经积累了一定的经验,因此苏联工业化建设的成熟模式成为当时我国学习最好的范本。“一五”时期苏联的援建彻底拉开了我国大规模工业建设的帷幕,技术转移之下,苏联住宅标准设计的方法也开始广泛应用于我国的住宅建设。工业住宅区的大规模出现,解决了工人住房紧缺的问题,完善了城市基础设施。正是在这个时期奠定了新中国城市住宅发展的两个基础:服务于工业化的城市住宅建设基本政策和学习苏联城市住宅建设的方针。在大规模的技术转移中,苏联专家为中国工业住宅区带来了苏联的住宅标准设计和街坊式住宅区规划方法,奠定了中国城市住宅发展建设的基础。
2.2 建国初期工业住宅区标准设计的实践
“一五”计划开始后,技术转移下中国工业住宅区建设发展迅速,苏联的住宅标准设计方法被广泛采用。1955年以来,国家建设委员会委托建筑工程部和城市建设部分别制定工业与民用建筑标准设计,按照东北、华北、西北、西南、中南、华东六个地区分区编制。这一时期涌现出了众多规模庞大、配套设施齐全、显现苏联风格的工业居住区,如著名的沈阳铁西工人村、长春第一汽车制造厂住宅区、洛阳涧西工业住宅区等。
东北地区最先引进了住宅标准设计方法。沈阳铁西工人村是在苏联专家帮助下中国第一个采用标准化设计建造的住宅区。于1952年9月按照苏联设计的“三层起脊闷顶式”住宅图纸开始了建设,形成占地面积73万平方米规模庞大的建筑群(图2)。

a—鸟瞰;b—总平面布局。
图2 沈阳市西铁工人村鸟瞰及总平面布局
Fig.2 Aerial view and general layout of Xitie Workers Village in Shenyang
长春第一汽车制造厂是苏联援建的“156项重点工程”之一,苏联建筑工程部城市建筑设计院运用苏联标准化设计和街坊式规划方法,负责一汽生活区的设计。按照苏方的规划,建筑设计由我国设计院承担,有鲜明的技术转移的印记(图3)。

a—鸟瞰;b—总平面布局。
图3 长春一汽生活区鸟瞰及总平面布局
Fig.3 Aerial view and general layout of the First Automobile Factory residential areas
洛阳第一拖拉机厂同属苏联援建的156项重点工程,所属的洛阳涧西区也是我国工业住宅区的典型案例。其空间规划基本源于苏联专家的指导,采用标准化设计,故与苏联住宅区的规划风格类似(图4)。

图4 洛阳“一拖”生活区鸟瞰
Fig.4 Aerial view of the First Tractor Manufacturing Factory residential areas
“一五”期间,我国工业住宅区的建设达到了高潮。据统计,建国初期国家主要建设城市共修建职工住宅8100万平方米,投资总额为44亿元。迅速建成的工业住宅区规模宏大,特征鲜明,在城市空间形态中一度占据了重要的地位,成为这个时期城市住宅发展的一个主要方向。可以说,建国初期的工业住宅区见证了历史的变迁,凝固了新中国工业发展和城市建设的记忆,被看作是一个时代的象征。
03、苏联、中国重点工业住宅区的比较研究
研究重点选取了以“一汽”“一拖”生活区为代表的中国典型工业住宅区,通过规划布局、规划结构以及建筑形态、户型平面等方面与苏联工业标准化住宅的对比分析,探索从苏联到中国工业住宅区标准设计的技术转移路径。
3.1 规划组织的技术转移
3.1.1 规划结构
20世纪20年代初期,苏联大规模兴建的住宅区采取了标准化设计的周边式布局,也称为周边式街坊。这种住宅区是在城市道路网格中规划建设的,构图上强调几何对称,有明确的轴线,将建筑沿道路布置,在街坊内外空间之间形成一道清晰的分界线,具有强烈的向心性。这种设计手法很大程度上是对俄国古典主义城市肌理的继承,这个时期的居住区规划设计中,纪念性构图的重要性远远大于实际生活的需要。20世纪30年代至20世纪50年代期间,斯大林“社会主义、现实主义”时期的城市建设强调街道的仪式感,在此背景下,前苏联提出了“扩大的街坊”的概念,将几个街坊合在一起进行规划建设,也就是将几个街坊组合成一个街坊。由于规模扩大了,布局上取得更强的秩序等级,成为了住宅区的主流规划方式(图5)。

图5 苏联基辅贝奇大街的街坊式布局
Fig.5 General layout of the Kiev Becky Street in the USSR
受苏联住宅规划理论与实践的影响,“一五”期间周边式街坊思想引进我国并广泛应用,盛行一时(图6)。这一时期建成的住区具有明显的苏联标准居住区模式的影子,强调轴对称的“周边式”布局结构,布局呈现出清晰的轴线格局,建筑环绕公共建筑或绿地布置,形成围合的院落空间格局,具有很强的空间整体性(图7)。街坊式的布局使工业住宅区以一种更加完整的面貌出现在世人面前,这种手法成为我国“一五”时期工业住宅区规划最鲜明的特点,被认为是新中国社会主义城市居住区的象征。

图6 长春一汽建厂初期住宅区总平面布局
Fig.6 General layout of the First Automobile Factory residential areas in initial stage

a—苏联标准住宅街坊A;b—苏联标准住宅街坊B;c—中国洛阳涧西工业住宅区;d—中国长春一汽住宅区。
图7 苏联、中国典型工业住宅区规划结构分析
Fig.7 Planning structure analysis of the typical industrial residential areas in the Soviet Union and China
3.1.2 功能布局
1)居住区与工业区的布局。苏联工业住宅区大多拥有完整的格局,注重与工业区形成良好的功能分区。在规划布局中,大部分工业住宅区在空间上与工业区联系紧密,并通过宽阔的绿化隔离带将居住区与工业区分离。这是一种科学、合理、经济的规划布局方式,在城市规划上避免了无序发展带来的干扰,也减少了对城市大交通的压力,方便了职工生活。这样的布局模式也通过苏联的援建向中国转移。“一汽”和“一拖”布局同样将工业区和居住区通过防护绿带隔离,功能划分明确,有特定时代下技术转移的鲜明印记(图8)。

a—苏联哈尔科夫拖拉机厂;b—中国长春第一汽车制造厂;c—中国洛阳第一拖拉机制造厂。
图8 苏联、中国典型工业住宅区功能布局分析
Fig.8 Functional layout analysis of the typical industrial residential areas in the Soviet Union and China
2)公共服务设施的布局。工业住宅区良好的功能布局还体现在解决居民的日常生活需求上。《苏联标准模式的住宅区建筑设计方法》指出,住宅区必须设有具有社会性、生活性和公共性的服务建筑,如俱乐部、电影院、商店、学校、儿童设施、医院、澡堂和照相馆等。因此住区的规划设计中,形成了复合功能的院落空间特征,即除围合的居住建筑外,公共配套服务设施被居住建筑围合于院落中间。如此大大提高了院落空间的服务效率,使院落的生活多元化。
这种模式在我国工业住宅区也有着很好的体现,“一汽”“一拖”住宅区中散布着大量公共服务建筑,形成规模可观的复合功能院落空间(图9),便于企业照顾职工生活的方方面面,从精神文化生活到衣食住行,解决多方面问题。

a—苏联标准住宅街坊A;b—苏联标准住宅街坊B;c—中国洛阳涧西工业住宅区;d—中国长春“一汽”住宅区。
图9 苏联、中国典型工业住宅区复合功能院落空间
Fig.9 Compound function courtyard space of the typical industrial residential areas in the Soviet Union and China
3.1.3 道路交通系统
街坊住区的交通环境是反映居民生活水平的重要特征。苏联住区内的道路交通系统有着主次分明的秩序,除住区相邻城市道路外,道路层级分为街坊主干道和宅间道路两级(图10)。各层级道路相互垂直,呈网状分布,街坊主干道承担主要交通,而街坊内宅间路服务于行人,使交通空间和生活空间很好地过渡。

a—城市道路断面;b—街坊主干道断面;c—宅间路断面。
图10 苏联工业住宅区道路层级示意
Fig.10 Roads classification of Soviet industrial residential areas in the Soviet Union
我国工业住宅区交通系统与苏联相似,采用了网格式的道路系统来划分和连接组团(图11)。这样的交通系统不仅可以提高街坊内部道路空间的使用率,也可以为居民提供在围合空间内交往、休憩的空间。同时,这种道路规划模式带来了更多的出入口和节点,具有良好的空间渗透性和公共性。

a—苏联标准住宅街坊A;b—苏联标准住宅街坊B;c—中国洛阳涧西工业住宅区11号街坊;d—中国洛阳涧西工业住宅区12号街坊。
图11 苏联、中国典型工业住宅区道路系统分析
Fig.11 Road system analysis of the typical industrial residential areas in the Soviet Union and China
3.1.4 绿地与户外活动空间
苏联标准住宅规范指出:住区内必须设置绿化和户外活动空间,使其能够全面服务于居民。公共绿化和活动场地可分为住区级和组团级两个层级,由带状的绿化构成骨架,由绿化轴线划分出若干面状绿化区域。
这样的模式通过技术转移传入中国,绿化和户外活动作为工业住宅区设计必须要考虑的因素,体现了对工人阶级的关怀。“一汽”“一拖”生活区与苏联标准住宅区相似,住区级公共绿化和活动场地往往布置于住区的中心或入口处,而组团级绿化和活动场地布置在各组团庭院内部,形成了良好的空间过渡。这种周边式街坊的绿地、活动场所都是由建筑实体围合而成,具有完整的实体边界(图12)。

a—苏联标准住宅街坊A;b—苏联标准住宅街坊B;c—中国洛阳涧西工业住宅区;d—中国长春“一汽”住宅区。
图12 苏联、中国典型工业住宅区绿地活动空间分析
Fig.12 Green land and activity venue of the typical industrial residential areas in the Soviet Union and China
3.2 建筑设计的技术转移
标准化设计的技术转移不仅体现了工业住宅区的组织规划,也影响着住宅建筑设计的各个方面。
3.2.1 平面户型
标准单元是住宅标准设计的核心部分,苏联标准住宅设计拟定了两室、三室和四室的户型需求。两室的户型中,居住面积有25~35平方米不等,采用套间的形式减少交通空间,从而大幅度降低房屋造价。大户型则在扩大居住面积的同时相应扩大辅助房间,并取消小户型采用的套间和混合卫生间的形式(图13)。


a—两室户型;b—三室户型;c—四室户型。
图13 苏联典型标准户型平面分类
Fig.13 Classification of typical standard apartment plan layout in the Soviet Union
苏联住宅标准设计具备在面积及户型方面多样化的平面类型,在建筑预制构件工业化的前提下,将标准户型平面进行重复、对称、变形等排列组合,形成不同形态的住宅结构单元和建筑单体,可供大规模住区建设使用。伴随“一五”时期苏联对我国的技术转移,来自苏联的标准设计方法也在我国的工业住宅建设上开始被广泛应用(图14),并延伸形成我国工业住宅标准设计的原则:“按照标准构件和模数原则设计标准单元,通过标准单元的组合变化形成不同的住宅建筑,最终形成居住区多样化的群体。”

a—苏联228号标准设计单元拼合的L型住宅房屋平面;b—洛阳涧西工业住宅区12号街坊L型平面;c—长春一汽住宅区6、7号街坊L型平面。
图14 苏联、中国典型住宅区标准单元组合示意
Fig.14 Standard unit combination of typical residential areas in the Soviet Union and China
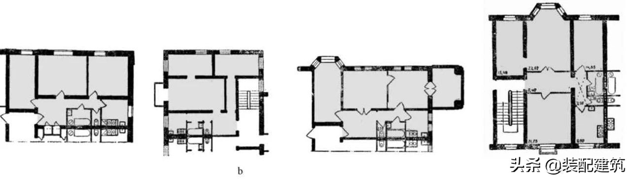
参考苏联标准住宅设计,我国的设计标准也拟定了两室、三室和四室住户的户型(图15)。两室户型在“一五”初期的工业住宅区中占有一定的比例, 1953 年及以前主要采用的是由两室户型构成的一梯两户单元。1954 年住宅标准设计大量出现了三室户和四室户,东北、华北地区住宅全套标准单元开始采用一梯三户单元,其中三室、四室户型居多。与苏联为了提高居住标准的出发点不同,其中非常重要的原因是为结合实际的建设情况,提高辅助房间及楼梯的服务效率。
故技术转移的过程中,结合我国当前的经济背景,标准户型也出现了一定的演变。“一五”初期工业住宅区在建设时采用了“先生产、后生活”的理念,规定的人均居住面积只有3~4平方米,这种“苏联模式”下的高规格住宅必须由几个家庭合住。大家共用厨房、卫生间以及户内走廊,使人均居住面积大大减低,也带来了家庭之间的相互干扰。此外,苏联模式大进深时采用套间的情况,在我国也由于合住的原因没有被延续使用。



a—两室户型;b—三室户型;c—四室户型。1—长春一汽住宅区;2—沈阳铁西工人新村;3—洛阳涧西工业住宅区。
图15 中国典型工业住宅区标准户型平面分类
Fig.15 Classification of China typical standard apartment plan layout
3.2.2 建筑标准构件
苏联住宅区的标准化设计不仅反映在居住单元,在住宅建筑的预制构件上也有很好的体现。早在1949年苏联就有了预制建筑构件的设想,按照住宅建筑的规格标准将预制构件标准化,可以实现预制构件在气候方面、使用方面及地域条件上的多样性,有利于大规模建筑施工的展开。住宅建筑标准化的规模越大、运用越广,其建筑技术方面的优势则越显著,故标准化的预制构件不仅运用于工业化住宅的标准立面、装饰构件(图16),甚至在装配式楼梯、楼板构件、基础砌块等方面也得以广泛应用(图17)。

图16 苏联使用预制构件建成的标准住宅立面局部
Fig.16 Part of standard residential façade built with prefabricated components in the Soviet Union

a—装配式钢筋混凝土基础砌块;b—楼板构件;c—钢筋混凝土构件楼梯。
图17 苏联标准化预制构件的运用
Fig.17 Application of standardized prefabricated components in the Soviet Union

a—小阳台;b—门上部装饰;c—窗装饰。
图18 中国典型工业住宅区预制构件的运用
Fig.18 Application of prefabricated components in typical industrial residential areas in China
苏联工业化住宅采用预制构件装饰立面的方法也开辟了新道路。这一做法伴随着技术转移传入中国后,住宅区建筑构件以标准化的形式开始了工业化的批量生产,成为了此后几十年来我国住宅区建筑装饰的重要元素(图18)。
3.2.3 建筑立面特征
在苏联工业化住宅建筑立面的设计中,也运用了建筑预制构件。截段设计法是苏联住宅建筑立面最重要的设计方法,通过组织有限的建筑预制构件和装饰构件,实现立面造型的多样性。在标准设计中,门窗均采用同一尺寸,可相互替换,并且能够根据需求放置于立面任意处(图19)。这样组合出来的立面丰富多变,灵活性高,是一种非常经济的方法。

a—立面细节;b—住宅组团。
图19 苏联标准住宅用截段设计法组合成的立面
Fig.19 Elevation of Soviet standard residential buildings built by Section Design Method
在“一五”初期,我国工业住宅区在建筑立面的设计上谨遵苏联标准住宅设计的截段设计法,也表现为三段式构图(图20)。立面门窗大小相同,整齐划一,摒弃了立面上的线脚,贯彻了苏联建筑构件工业化的特点,可实现大批量生产,大大缩短施工周期。

a—长春第一汽车厂住宅区;b—洛阳涧西区工业住宅区。
图20 “一汽”“一拖”住宅区街坊建筑立面
Fig.20 Elevation of residential buildings in the First Automobile Factory and the First Tractor Manufacturing Factory
除相同点之外,建筑立面在苏联模式的基础上也做了简化。在苏联住宅的立面设计中,有意在各个单体建筑之间产生联系,通过嵌接单元将建筑群进行组织(图21)。我国工业住宅的立面设计中并没有运用嵌接单元,居住建筑之间互不相连,均以独立的单体形式呈现。

图21 苏联住宅标准设计立面的嵌接组合
Fig.21 Connection combination of residential buildings in the Soviet Union
3.2.4 建筑外观及风貌
斯大林时代的苏联建筑外观及风貌是由“古典主义、民族主义与地方主义”所构成的民族形式主义。“民族形式”的建筑带有古典的柱廊,追求纪念性和象征性,是一种在当时占主导地位的设计方法,在苏联住宅的设计实践中有很好的体现(图22)。

图22 苏联工业住宅区建筑外观
Fig.22 Exterior of industrial residential buildings in the Soviet Union
建国初期我国工业住宅区在苏联建筑风格的影响下,结合中国传统建筑的背景,又有了进一步的发展。长春一汽工业住宅区是这种建筑风貌的典型代表,采用了庑殿式大屋顶做法,具有民族主义形式的华丽特征。外观设计参照了苏联的标准设计形式,而细节装饰着简化的中国传统样式——在立面上分布了批量制造的古代构件,以及密集的檐下装饰混凝土斗拱,强调了民族形式的特征(图23)。此后在时代背景下,工业住宅区的外观从“形式主义”向“简约现代主义过渡”,建筑风格也成为了民族主义在解放后探索的见证。

a—洛阳涧西区工业住宅区;b—长春第一汽车厂住宅区。
图23 “一汽”“一拖”住宅区建筑外观
Fig.23 Exterior of residential buildings in the First Automobile Factory and the First Tractor Manufacturing Factory
3.2.5 材料颜色、装饰细部
在苏联工业化住宅建筑设计中,除了对体量、开窗比例的控制,住宅区建筑在色彩、材料等方面也风格统一、风貌协调。建国初期的工业住宅区材料和色彩方面大多借鉴了苏联住宅的形式和技术。建筑屋顶形式以两坡或四坡为主,立面材质多为以红砖作为铺贴材料,整体形成以红色调为主的色彩体系。
在住宅建筑工业化的前提下,这个时期的住宅建筑在细部上的处理很有特点,外观上往往附带着很多具有民族主义纹样的装饰(图24)。建筑细部上随处可见丰富的檐口处理、水泥砂浆纹案、三角形山花、圆拱形门的浮雕装饰,以及入口处木质的垂花门,既有古典主义装饰,也有民族主义的纹案,具有明显的时代特征。

a—山墙纹样细部;b—细部装饰大样;c—入口花饰大样;d—宝顶细部;e—入口雨篷大样;f—阳台细部;g—山墙纹样;h—纹样细部。
图24 洛阳涧西区工业住宅区建筑细部
Fig.24 Details of industrial residential buildings in Jianxi District of Luoyang
苏联在对我国工业区住宅进行大范围的技术转移的同时,由于缺乏对其生成条件的客观分析,也迎来了建筑理论界对这一时期工业住宅区形式主义的严厉批评;附加的装饰构件造成了资金过度的浪费,在贫困的经济背景下尤为刺目。但不可否认,技术转移在这个过程中为我国工业住宅区的发展起到了极其关键的推动作用,这一时期的工业居住区成为了新中国社会主义城市居住区的象征,对我国现代城市住宅的发展做出了伟大的贡献。
04、结束语
“一五”期间,苏联对我国工业住宅设计的技术转移留下了深刻的印记,不仅体现在规划结构、功能布局、道路系统的转移,也包括了从住宅标准户型、预制构件到建筑风貌、装饰细部等各个方面。在这一时期形成的标准设计方法与技术规范为我国工业住宅区的发展奠定了基础,更是成为了中国现代城市集合住宅的原点。
在技术转移的移植模式下,所引进的住宅标准设计方法加速了我国工业居住区建设的进程,并影响到了二十世纪五六十年代乃至七十年代初期的一些住宅区的建设,为我国工业住宅区乃至城市住宅区的发展产生了深远的影响。而随着技术的转移,也出现了技术的演变,促进了苏联住宅标准设计中国化的过程。
技术转移下诞生的工业住宅区是构成新中国工业遗产完整性的重要组成部分,面对这些承载辉煌记忆、见证城市变迁的工业遗存,更应该唤起对它们的重视和保护,让其不被时代所遗忘。