在广州街头,有这么一家湘菜餐厅,自开业来从未做过推广,却始终占据着该区大众点评湘菜排行榜的第一名。许多餐饮人都带着团队慕名而去,他们想知道这家餐厅到底是怎样通过高效打造和运营,能够在开业短短几个月,就刷新了人们对湘菜作为江湖菜的固有认知,并成就日日门庭若市的繁荣。
01、塑 造
一场稻田的盛宴
这是一家名叫“湘颂”的湘菜馆。

湘颂是萍缘餐饮创始人*国强贺**在2018年创立的高端湘菜品牌,萍缘餐饮从2001年开始立足广州,一路跟随着客户的需求不断地成长,到今天已经做出了五大品牌十多家门店,年营业额达到1亿以上。
作为土生土长的湖南人,*国强贺**一直坚持在广州经营着家乡菜。而湘颂的由来,源于他儿时的一段回忆。

一天,在与同乡把酒畅谈时,他忽然怀念起了儿时在稻田里农耕劳作的场景,想象着能像儿时一样,在稻田里举行一场飧餐,抛却烦恼,短暂逃离城市喧嚣。
这个在他脑海中挥之不去的场景,让*国强贺**决定要把它搬进广州繁华的CBD中,为都市人提供一个追寻田园梦的地方。

就这样,他带领着团队,用了3个月,踏遍湖南每一处地方了解潇湘文化,寻找湘文化的根与湘菜的魂。行走万里后,又用了5个月,将湖南14个地区的特色融入空间设计和菜式中,最终打造出了这一场稻田里的盛宴。

——将美食从稻田带入都市,传载湘菜的地道本味,“湘颂·一场稻田里的盛宴”因此而诞生。
湘颂,不仅是“对湖南的歌颂与赞美”,更是传播湖湘文化与湖湘饮食的一个载体。
02、渲 染
“土”色之下皆是美
走进湘颂,目光所到之处除了“土”,还是“土”。“回归乡土文化”的设计和装修,与外面钢筋水泥、车水马龙的景象形成了强烈的反差。
但这一片土色,却无碍于它的美好与雅致,反倒把湘菜的灵魂,用现代美学的方式呈现了出来,让食客充分感受到了扎根于厚重文化的湘菜品牌。
无论是餐厅氛围,还是菜品独特的装盘设计和仪式感,都让人体验到湘颂的品味与湘菜的真正美妙之处。
>>>>湘土之美景

大门之外,充满阵列感的铺陈营建秩序,模拟稻草的视觉效果,予人从繁华都市到金黄稻田的场景切换。

餐厅内的稻田错落分布,将餐桌环绕其中,举目望去宛若置身秋日丰收现场,充满自然美感。稻穗的形态与质感栩栩如生,唤醒了人们心中对本土生活的记忆与想象。

农耕形象的夯土墙,扎实地竖立着;餐厅的米粒吊灯,彰显湘土文化的生活美学;而名为“春秧、夏谷、秋收、冬藏”的包厢,则取意潇湘田间的四时风貌,在此四季流转,依时而动。
>>>>湘菜之美味

注重传承传统湖湘美食文化的湘颂,致力于将民间匠心美食进行挖掘,甚至将一些濒临失传的老菜,也费尽心思地呈现到食客面前。坚持选用优质食材,遵循原味传统工艺,餐厅里的招牌菜都是源自湖湘地域,地地道道的湘菜。

匠心、美味、原生态,成为了湘颂菜品的关键词。这才是盛宴该有的样子。
>>>>湘人之美情

湘颂的员工都经过严格的酒店式培训,微笑服务,热情待客,紧紧传递湘颂品质湘菜的理念。因此,湘颂也在大众点评的好评榜上取得了湘菜品类有史以来最高分的成绩,并一直保持5星好评。
那么,湘颂这整店霸屏、落到每处细节的美,究竟是如何打造出来的呢?浓厚的场景体验感之外,留住食客的究竟还有啥?
03、盛 放
源全之花,让餐厅美出新高度
原来,早在2015年,*国强贺**就与汉源源全学院结下了不解之缘。持续的门店环境管理的学习与落地,以及源全为其另一品牌“湘约时光”的成功运作,更让他放心地把湘颂的门店精益化改造交到源全团队的手中。

从前厅到后厨,湘颂在一次次改变中,不断美出新高度。


巧用灯光。利用灯光效果,与环境的有机结合,让稻田文化体现地淋漓尽致。厨房一米一黄的灯光,也更加突出菜品的本色。

增设扬谷场。入门左手边的全透明玻璃房,宛如一座博物馆。增设已逐渐退出人们视线的怀旧扬谷机、盛放稻谷的粗布麻袋、老灯具、竹篾盛器等四处搜罗的老物件,营造满满场景感。

增设外带区。充分利用门店环境,不仅营造了果实丰收的应景氛围,更增加了提高营业额的渠道。

增设小电饭锅。在保证安全的前提下,增设别致小巧的电饭锅,保证米饭在10分钟之内,以最好的口感呈现在顾客面前。

细节美化。冰箱顶部增加的镜子方便对顶部隐蔽地方的卫生进行监控观察,方便随时观测进行清洁卫生;入口增加防滑条有利于减少人员滑倒这样的安全事故发生;将暂时不用的插座用保护套保护起来防止进水,从而降低用电安全事故的发生。

存放美化。改用双通碗柜,在保证食品安全的同时,通过双通设计,减少运输流程的浪费;而抽屉式调料台的使用在方便操作的同时也可以有效的减少空间利用的浪费。悬空式砧板架的设置节约了空间的同时,又方便当区人员的拿取,同时塑胶砧板能够有效防止细菌滋生。
这样处处力求细节的完美呈现,也让湘颂在2018年底,以87分成为全国首家最品质湘菜源全示范单位。源全学会会长谭淑玲这样评价湘颂:“湘颂的成功,是因为湘颂的环境、菜品,以及服务,都给人以有品质、有追求、有情怀的触动。”
同时,湘颂门店更荣获了多项国际设计大奖,奠定了其作为品质餐厅的大众认知。

04、收 获
改变没有止境,只会越来越好
如果说,湘颂收获超高人气和口碑的秘诀在于整个环节和细节的打造上,那么,前置性的规划与定期的复盘追踪,则助力其实现了循环的资源增值与可持续盈利。
在源全管理系统的加持下,湘颂交出了尤为漂亮的成绩单:
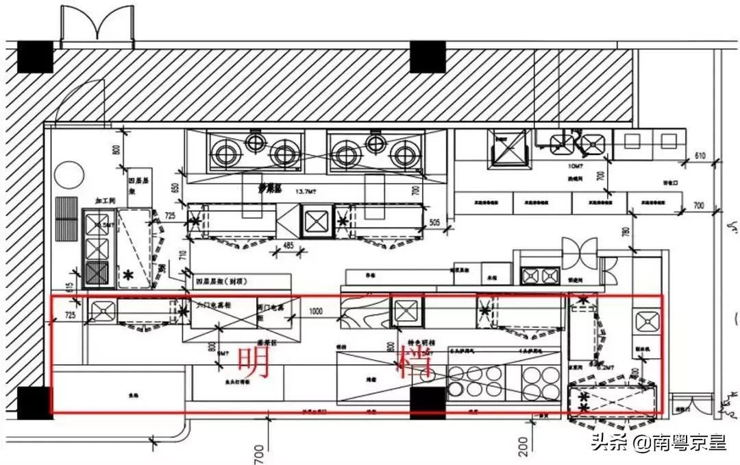
门店面积+14%:根据源全新店设计理念,并通过对原有品牌及高端品牌的数据研究,湘颂重新设计了门店的平面图,适当将4人、6人桌的比例加大,并从动线、位置的角度,将厨房的位置放在路程及动线最优位置,而4人、6人桌则分布在离厨房最近的位置。同时,厨房为经营让面积,面积缩减到14%。

人均产值+24%:除了不断优化厨房设备工具简化员工操作,门店内的全部原材料及物品均存放在岗位设备上,动线流畅,全部岗位均可做到三步不离岗;实行兼岗并岗后,更通过削减员工数量有效减少了人工成本。

人员兼岗并岗排班表
月营业额+21%:按源全以销定产-以产定人-以人定物-以物定环的理念,湘颂团队每个月都对同心圆模式进行数据分析,不断调整优化;更通过门店的无处不营销,花式吸客,无形中大大增加了营业额。

湘颂能迅速在餐饮市场上打开一片天,与其独到的经营理念、运营创意和极强的用户体验感等众多因素都分不开,而能让其长盛不衰的理由,却只有一个,那就是“用心经营,不断精进”。
餐饮业发展到最后,无论是怎样的品牌,怎样的品类,要思考的就是:如何保持长久的口碑与盈利能力。在品牌精进的路上,意识永远比能力更重要。
本图文由南粤京皇&色香色游摄影编辑发布