今天我们探讨的内容为16G101-1P65。柱箍筋加密构造。
一、柱箍筋加密区范围:
1、一般情况:通常情况下柱箍筋加密区范围就等同于柱纵筋非连接区域范围,除柱纵筋连接采用搭接方式时,柱箍筋加密区范围还要增加搭接区。

图一

图二
(1)、在不同配置要求箍筋区域分界处应设置一道分界箍筋,分界箍筋应按相邻区域配置要求较高的箍筋配置。
(2)、柱净高范围最下一组箍筋距底部梁顶50mm,最上一组箍筋距顶部梁底50mm。节点区最下、最上一组箍筋距节点区梁底、梁顶不大于50;当顶层柱顶与梁顶标高相同时,节点区最上一组箍筋距梁顶不大于150mm。(详见图一)
(3)、当受压钢筋直径大于25时,尚应在搭接接头两个断面外100范围内各设置两道箍筋。
(4)、搭接区内的箍筋直径不小于d/4(d为搭接钢筋的最大直径),间距不应大于100mm及5d (d为钢筋的最小直径)。
(5)、纵筋搭接区范围内的补充箍筋可采用开口箍或封闭箍,封闭箍的弯钩设置同框架柱箍筋,开口箍的开口方向不应设在纵筋的搭接位置处。
(6)、当柱在某楼层各向均无梁且无板连接时,计算箍筋加密范围采用的Hn按该跃层柱的总净高取用。
2、当框架柱X或Y向无梁且无板时:箍筋加密区范围如下图所示:

图三

图四
(1)、柱的上下端箍筋加密范围应按跃层柱总净高的1/6计算。
(2)、因中间层单方向有框架梁,所以该处的柱端箍筋加密范围按各自层柱净高的1/6计算。
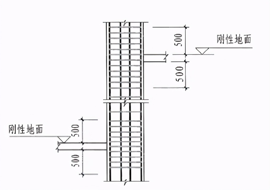
3、柱在刚性地面上下各500mm范围内箍筋加密:
(1)、刚性地面平面内的刚度比较大,在水平力作用下,平面内变形很小,对柱根有较大的侧向约束作用。通常现浇混凝土地面会对砼柱产生约束,其他硬质地面达到一定厚度也属于刚性地面。如石材地面、沥青砼地面及有一定基层厚度的地砖地面等。

图五

图六
(2)、在刚性地面上下各500mm范围内设置箍筋加密,其箍筋直径和间距按柱端箍筋加密区的要求。当柱两侧刚性地面标高相同或当柱仅一侧有刚性地面时见图七;当柱两侧刚性地面标高不一致时,加密范围取各自上下的500mm,见图八、图九。

图七

图八

图九
4、短柱:短柱延性较差,易产生脆性剪切破坏,设计中应避免使用短柱,当必须采用时,柱应全高度箍筋加密,并宜采用螺旋箍或井字复合箍。这一点往往是工程人容易忽视的地方,通过下面地震后短柱与长柱破坏情况对比,其箍筋加密重要性一目了然。因此要对短柱引起高度重视。




当框架结构中的框架柱的反弯点在柱层高范围之内时,可认为:柱净高Hn与柱截面长边尺寸h(圆柱为截面直径)的比值Hn/h≤4时为短柱。容易形成短柱的情况如下:
(1)结构错层部位由于错层标高差较小容易形成短柱;
(2)、层高较小的设备层由于层高限制,容易形成短柱;
(3)、高层建筑的底层由于轴压比限制,柱截面尺寸比较大,容易形成短柱;
(4)、因砌体填充墙与柱刚性连接等形成柱净高与柱截面高度之比值不大于4的柱,也应按短柱采取抗震构造措施。
(5)、框架结构楼梯间的中间休息平台梁,将框架柱分为上下两段,应分别考虑,也容易形成短柱。
二、框架柱节点核心区水平箍筋配置太密集,且梁钢筋要通过,施工不便的处理。

(1)、柱节点核心区中水平箍筋,应按施工图设计文件中的要求配置,不得随意减少。
框架结构的节点核心区受力状态是很复杂的,为了使梁、柱纵向受力钢筋有可靠的锚固条件,框架梁柱节点核心区的混凝土有良好的约束能力,节点核心区的水平箍筋起到关键作用。
我国的抗震设计中,需要保证“强柱弱梁,节点更强”的设计理念。因此,我国相关标准对节点核心区的配箍特征值、柱端箍筋加密区体积配箍率以及箍筋的直径、间距等都有明确的要求。
(2)、处理方法:在实际施工中,当节点核心区的复合箍筋肢数太多时,为方便施工。经设计确认后,中间部分的箍筋可用符合抗震构造要求的拉筋或封闭箍筋加拉筋的复合箍替代。最外侧的矩形、菱形或多边形箍筋不能变,必须为封闭的箍筋。如下图所示:

未完待续,下次我们将探讨KZ边柱和角柱顶纵向钢筋构造,敬请关注。