近日,南京规划和自然资源局发布燕子矶新城观音门中学项目规划设计方案,燕子矶滨江商务区的18班中学亮相。

燕子矶新城观音门中学项目位于栖霞区燕子矶新城,南临珠江路,北临黄山路,西临黄山路,东临现状小区仁恒公园世纪。

▲项目区位示意图
项目总用地面积约2.20万平方米,用地性质为A33b初中用地(100%),容积率≤1.2,建筑高度≤24 米,建筑密度≤35%,绿地率≥30%,建设规模为6轨18班。

▲项目总平面图
项目拟建建筑总建筑面积约2.38万平方米。其中:地上四层,主要功能为教室、图书室、食堂、风雨操场、办公室、会议室等;地下一层,主要功能为停车场及设备用房等。



▲项目效果示意图

▲西北向鸟瞰效果图

▲西北向透视图

▲东立面透视图
在此之前,观音门小学及幼儿园规划也已正式出炉。作为南京重点建设的滨江宜居新城,燕子矶的教育资源配套一直在加快稳步的推进中。


▲燕子矶新城观音门中学、小学、幼儿园示意图
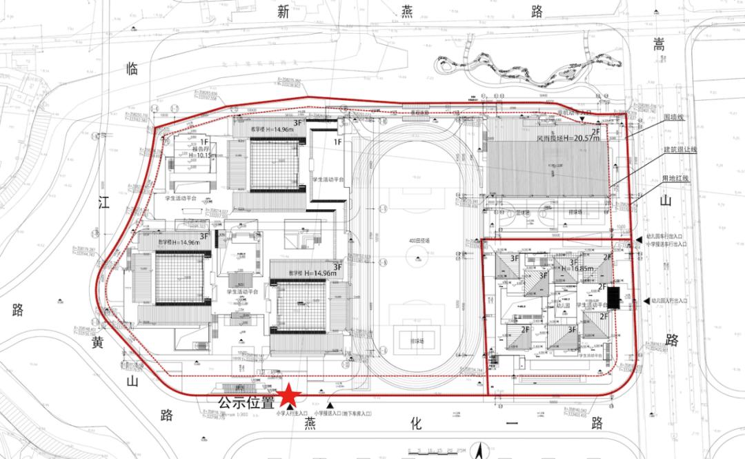
燕子矶新城观音门小学、幼儿园地块位于燕子矶新城,东临嵩山路,南临燕化一路,西临黄山路和临江北路,北至新燕路(具体范围以用地红线为准),共由A、B两个分区组成。

▲项目区位示意图
A分区为规划36班小学用地,用地面积31964.8平方米,总建筑面积近5万平方米。
小学部分分为地上和地下两部分,地上包括教学楼、操场、食堂及报告厅等;地下包括学生活动用房、停车场以及设备用房等。
B分区为规划15班幼托用地,用地面积6059.26平方米,总建筑面积约1万平方米。
幼儿园部分也分为地上和地下,主要功能为生活用房、活动用房、多功能活动室及办公用房配套设施等。

▲项目总平面图
从公布的效果图可以看出,学校建筑风格上偏中式风,兼具现代艺术抽象设计,既不失古韵,又辉映现代都市新城,未来必将成为燕子矶滨江的一道亮丽风景线。



▲燕子矶新城观音门小学、幼儿园效果示意图
近年来,南师附中燕子矶新城学校、南外仙林燕子矶校区、南京时代双语学校等一大批优质的教育资源先后在燕子矶落地,新城的教育水平也有了翻天覆地的变化。
取得累累硕果的燕子矶新城依旧在砥砺前行,为推动教育事业的高质量发展而努力着,如今,新的篇章还在谱写,让我们共同期待这座新城的美好明天。
来源:栖霞视点